ChangeOfUse Igangsettingstillatelse Offentlig

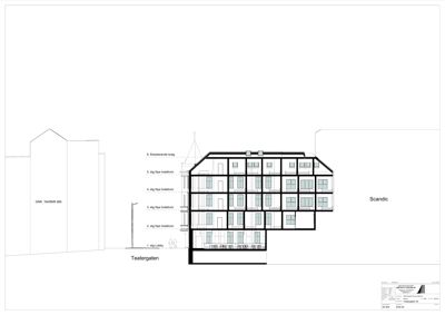
Bruksendring og fasadeendring til hotell i Håkonsgaten 3, Bergen

📍 Teatergaten 34 , 5010 BERGEN

Nøkkelinfo

Sakstype
Bruksendring
Bygningstype
Offentlig
Bruksareal
5,606 m²
Kommune
Bergen
Fylke
Vestland
Gnr / Bnr
164 / 766
Saksnummer
BYGG-2025/11406
Fase
Igangsettingstillatelse

Om byggesaken

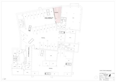
Ombygging av eksisterende kontor- og forretningsbygg til hotell i Håkonsgaten 3, Bergen. Bygget består av flere etasjer med totalt areal på ca. 5600 m². Tiltaket inkluderer bruksendring, innvendig ombygging med etablering av hotellrom, nye brann- og lydskiller, våtrom, samt fasadeendringer som nye takvinduer og ny inngangsdør. Det utføres også rivingsarbeid og miljøsanering. Bygget har betong- og teglkonstruksjoner med bevarte fasader, og tiltaket tilpasses eksisterende bygningsmasse og kulturmiljø. Prosjektet omfatter også tekniske installasjoner som ventilasjon, sanitær, sprinkleranlegg og brannalarmanlegg. Det er søkt dispensasjon fra reguleringsplanens arealformål og byggegrenser mot vei. Totalt areal for tiltaket er ca. 5600 m², med flere etasjer og omfattende romfordeling.

Produkter og materialer

Tømrer Innvendig ombygging

🧱 Treverk, gips, isolasjon

Innvendig ombygging for hotellrom, våtrom, brann- og lydskiller

Tømrerarbeid for ombygging til hotell

Riving Rivingsarbeid og miljøsanering

Riving av deler av bygget, miljøkartlegging og sanering av helse- og miljøfarlige stoffer

Rivingsarbeid og miljøsanering i forbindelse med ombygging

Betong Grunnarbeid og fundamentering

🧱 Betong

Ingen nybygg, men rivings- og ombyggingsarbeid i eksisterende betongkonstruksjoner

Grunnarbeid og fundamentering for ombygging

Elektro Brannalarmanlegg

Montering og prosjektering av brannalarmanlegg

Brannalarmanlegg for hotell

Dører Ny inngangsdør for hotell

Antall: 1

Ny inngangsdør på tverrhjørnet, tilbakeføring av tidligere inngang

Ny hovedinngangsdør for hotellbruk

Gulv Gulvbelegg og fliser

Nye gulvbelegg og fliser i hotellrom og fellesarealer

Gulvbelegg og flislegging

VVS Sanitærinstallasjoner

Stenging, plugging og fjerning av eksisterende rør, nye sanitærinstallasjoner

Sanitærarbeid i forbindelse med ombygging

Maling Innvendig og utvendig maling

Maling av fasader og innvendige flater etter ombygging

Maling og overflatebehandling

Vinduer Takvinduer

Antall: 10

Nye takvinduer i 5. etasje, tilpasning av antall og plassering

Takvinduer for ny takfasade i 5. etasje

VVS Varmeinstallasjoner

Prosjektering og utførelse av varmeinstallasjoner

Varmeinstallasjoner for nytt hotell

Ventilasjon Ventilasjon- og klimainstallasjoner

Prosjektering og utførelse av ventilasjon og klima

Ventilasjon og klimainstallasjoner for hotell

Annet Miljøsanering og avfallshåndtering

Sanering av helse- og miljøfarlige stoffer som asbest, PCB, bly, ftalater, mm.

Miljøsanering i forbindelse med riving og ombygging

Isolasjon Isolasjon i vegger og tak

Isolasjon i forbindelse med ombygging og fasadeendringer

Isolasjon for varme og lyd

Elektro Ledesystem og nødlys

Montering av ledesystem og nødlys i forbindelse med rivingsarbeid

Ledesystem og nødlys for sikkerhet

Fasade Fasadeendringer

🧱 Mur og glass

Tilpasninger i fasade med nye takvinduer og ny inngangsdør, bevaring av eksisterende fasader

Fasadeendringer med tilbakeføring og tilpasning av takfasade

Fasader

Scandic

Teatergaten
Vinduer
0
Dører
0
Synlige etasjer
6

Eksisterende bygg

Vest
Materiale
Mur
Taktype
Saltak
Vinduer
28
Dører
1
Balkonger
1
Synlige etasjer
4

Hovedbygg

Øst
Materiale
Glass
Taktype
Flatt tak
Vinduer
48
Dører
2
Synlige etasjer
6

Hendelser

10.04.2026 Teatergaten 34 Søknad om igangsettingstillatelse 164/766
30.03.2026 Fakturagrunnlag
30.03.2026 Ubw ordre 20693056/IG
25.03.2026 Utsendelse av IG
20.03.2026 Igangsettingstillatelse (2), 164/766, Håkonsgaten 3, 5
16.03.2026 Teatergaten 34 Søknad om igangsettingstillatelse 164/766
19.01.2026 Søknad om ferdigattest avvises, 164/766, Håkonsgaten 3, 5,
12.01.2026 Håkonsgaten 3, 5 Søknad om ferdigattest 164/766
22.12.2025 Kopi. Vi innvilger søknaden om samtykke etter automatisk saksbehandling - 164/766/0/0 Håkonsgaten 3, 5, bruksendring fra kontor/forretning til hotell
07.08.2025 Igangsettingstillatelse (1), 164/766, Håkonsgaten 3, 5
05.08.2025 Håkonsgaten 3, 5 Søknad om igangsettingstillatelse 164/766
14.07.2025 Fakturagrunnlag
14.07.2025 Ubw ordre 20673961 Bruksendring, ombygging, fasadeendring, dispensasjon, tilleggsopplysninger, tilleggsgebyr samordningsplikten.
30.06.2025 Rammetillatelse, 164/766, Håkonsgaten 3, 5
18.06.2025 Håkonsgaten 3, 5 Supplering av søknad 164/766
13.06.2025 Til orientering om melding fra Bergen Vann
22.04.2025 Byantikvarens tilbakemelding i sak BYGG-2025/11406, gnr/bnr 164/766 Håkonsgaten 3-5 bruksendring til hotell
15.04.2025 Intern Høring. Bergenhus. Gnr. 164 bnr. 766, Håkonsgaten 3-5. Søknad om dispensasjon fra byggegrense langs kommunal veg. Uttale fra Bymiljøetaten.
11.04.2025 Intern Høring til Bymiljøetaten
11.04.2025 Anmodning om uttalelse
07.04.2025 Håkonsgaten 3, 5 Supplering av søknad 164/766
21.03.2025 Behov for tilleggsopplysninger
21.03.2025 Intern høring
14.03.2025 Svar på henvendelse - 164/766/0/0 Håkonsgaten 3, 5, bruksendring fra kontor/forretning til hotell
12.03.2025 Spørsmål/henvendelse - 164/766/0/0 Håkonsgaten 3, 5, bruksendring fra kontor/forretning til hotell
04.03.2025 Håkonsgaten 3, 5 Supplering av søknad 164/766
04.03.2025 Bekreftelse på mottatt søknad
03.03.2025 Håkonsgaten 3, 5 Søknad om rammetillatelse 164/766