FacadeChange Soeknad Offentlig

Endring av brannskille i undervisningsbygg i Nygaten, Bergen

📍 Nygaten 1 , 5017 BERGEN

Nøkkelinfo

Sakstype
Fasadeendring
Bygningstype
Offentlig
Bruksareal
832 m²
Kommune
Bergen
Fylke
Vestland
Gnr / Bnr
166 / 676
Saksnummer
BYGG-2026/12698
Fase
Søknad

Om byggesaken

Ombygging av eksisterende undervisningsbygg i Nygaten 9, Bergen, med endring av brannskille og branncelleinndeling i plan 2-4. Bygget består av fem etasjer pluss kjeller og loft, med totalt areal på ca. 831,6 m² for skolebygget. Endringen innebærer at hver av etasjene 2 til 4 defineres som én branncelle i stedet for flere mindre brannceller, med tilpasninger i dører, branncelleskiller og rømningsveier. Tiltaket omfatter ikke endringer i byggets hovedkonstruksjoner eller fasader, men krever oppgradering av branntekniske installasjoner som brannalarmanlegg, ledesystem, brannslanger og ventilasjonsanlegg i samsvar med gjeldende forskrifter. Bygget har to trapperom som fungerer som rømningsveier, og tiltaket sikrer at brannsikkerheten opprettholdes med dokumentert risikoanalyse og uavhengig kontroll.

Produkter og materialer

Tømrer Innvendige branncellevegger og himlinger

🧱 Ubrennbar kledning og overflater i rømningsvei, brannmotstand EI 60

Vegger og himlinger i rømningsvei skal ha kledning og overflate med brannklasse K210 A2-s1,d0 og B-s1,d0

Oppgradering av innvendige branncellevegger og himlinger i rømningsveier

Fasade Brannskille i mur og betong

🧱 Mur og betong med brannmotstand REI 120 A2-s1,d0

Eksisterende brannskiller mot nabobygg opprettholdes uten endring, med krav til brannmotstand REI 120 A2-s1,d0 ved eventuelle tiltak

Brannskillevegger mot nabobygg i mur/betong som skal opprettholdes og eventuelt oppgraderes ved behov

Brannvern Brannalarmanlegg kategori 2

Heldekkende brannalarmanlegg med optiske røykdetektorer, akustiske og optiske alarmorganer, alarmoverføring til nødmeldesentral

Oppgradering av brannalarmanlegg til kategori 2 i berørt areal

Grunnarbeid Ingen endringer

Ingen endringer i grunnarbeid eller fundamentering

Ingen grunnarbeider nødvendig for dette tiltaket

Brannvern Manuelt slokkeutstyr

Brannslanger iht. NS-EN 671-1:2012, plassering tilpasses, supplerende håndslokkere med ABC-pulver eller skum/vann med minimum 6 kg/liter

Brannslanger og håndslokkere i plan 2-4

Dører Brannklassifiserte dører i branncelleskiller

Dører mot trapperom EI2 30-CSa, øvrige branncelleskiller EI2 60-Sa, med selvlukker koblet til brannalarmanlegg for dører som skal stå åpne

Brannklassifiserte dører med automatisk lukking i branncelleskiller

Isolasjon Ubrennbar isolasjon

🧱 Mineralull klasse A2-s1,d0

Isolasjon i konstruksjoner og kanaler skal være ubrennbar i henhold til krav

Isolasjon i vegger, himlinger og kanaler med ubrennbar mineralull

Brannvern Ledesystem og nødbelysning

Ledesystem med markeringsskilt, retningsendringsskilt og ledelys/nødlys i rømningsveier iht. NS 3926-1:2017 og NS-EN 1838:2013

Ledesystem og nødlys i rømningsveier og trapperom

Ventilasjon Ventilasjonskanaler og anlegg

🧱 Kanaler i stål, isolasjon i mineralull klasse A2L-s1,d0

Eventuelle endringer i ventilasjonsanlegg skal utføres i ubrennbare materialer med brannisolasjon, og opprettholde brannmotstand i brannskillende konstruksjoner

Oppgradering og tilpasning av ventilasjonsanlegg i forbindelse med ombygging

Trapper Eksisterende trapperom som rømningsvei

Antall: 2

To trapperom opprettholdes som rømningsveier, med brannmotstand Tr1 i plan 2-4

Eksisterende trapperom benyttes som rømningsveier med oppgraderte brannkrav

Betong Eksisterende bærekonstruksjoner

Ingen nye bærekonstruksjoner, eksisterende bæresystem opprettholdes

Ingen nye betongkonstruksjoner, eksisterende bæresystem opprettholdes

Elektro Strømforsyning med nødstrøm

Strømforsyning til brann- og sikkerhetsinstallasjoner med lokal batteribackup eller kabler med funksjonstid minst 60 minutter

Sikring av strømforsyning til brannalarmanlegg og nødlys

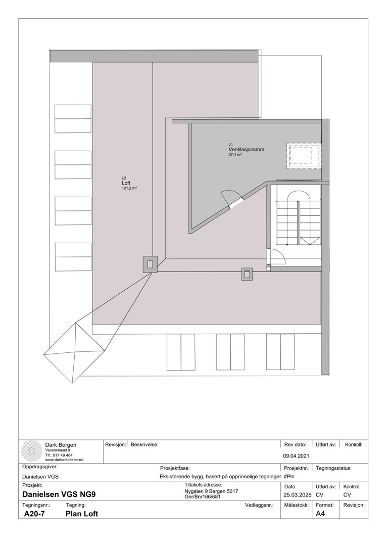
Plantegning

Enebolig 517.1 m²

Etasje 2 148.6 m²

Rom Areal Vinduer Dører
Loft L2 121.2 m² 0 0
Ventilasjonsrom L1 27.4 m² 1 1

Etasje 1 220.2 m²

Rom Areal Vinduer Dører
Samlingsrom 101 52.1 m² 1 1
Samlingsrom 102 21.2 m² 1 1
Samlingsrom 103 18.9 m² 1 1
Trapperom 104 38.0 m² 1 1
Hall 105 22.1 m² 0 2
Kontor 106 10.3 m² 0 1
Kontor 107 5.8 m² 0 1
Kontor 108 12.0 m² 0 1
Trapperom 109 21.0 m² 1 1
WC 110 3.7 m² 0 1
Teknisk rom EL 0.9 m² 0 1

Etasje 0 148.3 m²

Rom Areal Vinduer Dører
Blindkjeller 00 9.3 m² 0 0
Blindkjeller 00 8.0 m² 0 0
Lager Drift 01 29.6 m² 0 1
Lager/driftskontor 02 19.2 m² 0 1
Lager Drift 03 18.5 m² 0 1
Lager 04 25.8 m² 0 0
Teknisk Rom 05 17.3 m² 0 1
WC 06 2.3 m² 0 1
dusj 07 2.6 m² 0 1
Forrom 08 4.4 m² 0 2
Trapperom 09 8.5 m² 0 1

Skole 831.6 m²

Etasje 2 315.6 m²

Rom Areal Vinduer Dører
Trapperom 201 11.7 m² 0 1
Studiehage 202 21.2 m² 0 1
Trapperom 204 22.2 m² 0 1
Ferdighetsrom 205 75.7 m² 0 1
HCwc 210 7.5 m² 0 1
renhold 212 5.1 m² 0 1
Klasserom 204 72.1 m² 0 1
lager 209 1.7 m² 0 1

Etasje 4 296.0 m²

Rom Areal Vinduer Dører
VG1 1M 302 72.1 m² 0 0
Klasserom VG2 iT 407 75.2 m² 0 0
Studiehage 303 20.9 m² 0 0
Trapperom 301 11.7 m² 0 0
Toalett 310 4.1 m² 0 0
Toalett 309 4.2 m² 0 0
BK 408 1.7 m² 0 0

Etasje 5 220.0 m²

Rom Areal Vinduer Dører
Arbeidsrom 508 38.6 m² 0 1
Kopi 507 8.7 m² 0 1
Personalrom m kjøkken 506 41.2 m² 0 1
Hall 502 33.7 m² 0 3
Arbeidsrom 505 24.1 m² 0 1
Arbeidsrom 504 20.8 m² 0 1
WC 510 4.2 m² 0 1
WC 509 3.0 m² 0 1
Trapperom 504 24.9 m² 0 1
Trapperom 401 11.7 m² 0 1

Hendelser

21.04.2026 Nygaten Søknad om tillatelse i ett trinn 166/681