NewConstruction Rammetillatelse Offentlig

Oppføring av offentlig toalett og parkeringsplass på Ekkerøy, Nasjonal Turistvei

📍 13/1/1 , 9804 VADSØ

Nøkkelinfo

Sakstype
Nybygg
Bygningstype
Offentlig
Bruksareal
45 m²
Kommune
Vadsø
Fylke
Finnmark - Finnmárku - Finmarkku
Gnr / Bnr
13 / 1
Saksnummer
2025/9448
Fase
Rammetillatelse

Om byggesaken

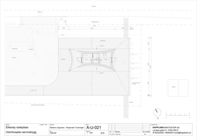
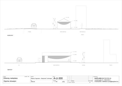
Ny oppføring av servicebygg på 45 m² med offentlig toalett på Ekkerøy, plassert langs fylkesvei 8088. Bygget er rektangulært med saltak, utført i prefabrikkerte, isolerte betongelementer med rødlig pigment og mikroretardert overflate. Taket består av 5 mm sandblåste, syrefaste stålplater med perforering for ventilasjon og belysning. Bygget har ingen vinduer, men to dører, og er tilpasset omkringliggende trafobygning i material- og fargebruk. Parkeringsplassen med 24 plasser får asfaltdekke med lys eller grånet farge for estetisk tilpasning, og fysisk skille mot vei. Utomhusanlegg inkluderer universelt utformet svillesti i impregnert treverk, sittebenker med betongseter og stålben, ny grind i sauegjerde, stolper som markerer vann-til-vann-akse, samt flytting av eksisterende grillhytte. Det etableres privat spillvannstank under parkeringsarealet, tilkoblet kommunal vannledning. Tiltaket inkluderer også fjerning av deler av sandfluktgjerde for bedre adkomst og snuplass. Prosjektet er tilpasset landskap og kulturmiljø, og har fått nødvendige dispensasjoner fra reguleringsplanen.

Produkter og materialer

Grunnarbeid Drenering og grøfter

🧱 Betonggrøfter og dreneringsspalter med singel

Drenering rundt servicebygg og uteområder

Drenering for bygg og uteområder

Fasade Stålplater

🧱 Matt og høyglans sandblåst stålplate, Duplex kvalitet EN 1.4462

Brukes på vegger og himlinger, avrundede kanter, sveiset og beiset

Fasade- og himlingsmateriale for servicebygg

VVS Sanitærinstallasjoner

HC-toalett Delabie MONOBLOCO PMR, rustfrie vegghengte servanter, dispenser og avfallsbeholdere

Sanitærutstyr for offentlig toalett

Fasade Grind og stolper

🧱 Stålprofiler i Duplex stål EN 1.4462, sandblåst og beiset

Grind i sauegjerde, stolper som markerer vann-til-vann-akse, sveises og boltes

Grind og stolper i uteområdet

Grunnarbeid Parkeringsplass

🧱 Asfalt med lys eller grånet tilslag

Antall: 24

24 parkeringsplasser, asfaltdekke med fysisk skille mot vei, tilpasset universell utforming

Parkeringsplass med asfaltdekke

VVS Vannledning

🧱 PE 160 mm kommunal vannledning

Tilkobling med elektro-anboringssadel, varmekabel og føler i isolasjon

Tilkobling til kommunalt vannverk

Terrasse Trebenker

🧱 Betongsete med rødlig pigment, stålben i Duplex stål EN 1.4462

Antall: 3

Prefabrikerte betongseter, avrundede kanter, stålben sveiset og boltet, sandblåst og beiset

Sittebenker i uteområdet

Elektro Belysning

🧱 LED-list integrert i takplater

Utendørs og innendørs belysning i servicebygg

Belysning i servicebygg og uteområder

Dører Ytterdører

🧱 Stålplate, matt overflate

Antall: 2

Døråpner, dørstopper, rustfri utførelse

Inngangsdører til servicebygg

Gulv Betonggulv

🧱 Plasstøpt betong med rødlig pigment

Grovslipt utvendig, slipt og mattlakkert innvendig

Gulv i servicebygg

Bygningskomponenter Prefabrikkerte betongelementer

🧱 Betong med rødlig pigment, mikroretardert overflate

Isolerte betongelementer, jevn overflate uten synlige skjøter, avrundede kanter

Vegger og bærende konstruksjon for servicebygg

Tak Takplater i stål

🧱 5 mm sandblåst, syrefast stål, Duplex kvalitet EN 1.4462

Sveiset i skjøter, perforert for ventilasjon og belysning, snorrette kanter

Taktekking for servicebygg

Vinduer Overlys

🧱 Frostet glass, 3-lags energiglass

Antall: 2

Belyst fra teknisk rom, sandblåst glass

Overlys i servicebygg for dagslys og ventilasjon

Terrasse Svillesti

🧱 Cu-impregnerte tresviller, Royal farge klar

Dimensjon 248x98 mm, skruer inn i underliggere, bærelag Fk 8/32 mm, 100 mm, geotekstil bruksklasse 3

Universelt utformet svillesti til strand og mellom Yttersida og Innersida

VVS Spillvannstank

Antall: 1

Ø2000 mm, lengde 5,3 m, topp minimum 1 m under terreng, lokk i asfaltert og brøytet areal

Privat spillvannstank under parkeringsareal

Annet Molok avfallsløsning

Antall: 1

Molok 5 m3 med tilpasset topp, type Nasjonale turistveger Molokktopp

Nedgravd avfallsløsning i uteområdet

Fasader

Rasteplatt

Sørøst
Materiale
Betong
Taktype
Saltak
Høyde
5.9 m
Mønehøyde
7.0 m
Vinduer
0
Dører
1
Synlige etasjer
1

Rasteplass

Nordøst
Materiale
Betong
Taktype
Flatt tak
Takmat.
Betongstein
Høyde
5.9 m
Mønehøyde
7.0 m
Vinduer
2
Dører
0
Synlige etasjer
1
Nordvest
Materiale
Betong
Taktype
Saltak
Høyde
3.5 m
Mønehøyde
7.0 m
Vinduer
0
Dører
1
Synlige etasjer
1

Servicebygg

Nordøst
Taktype
Flatt tak
Høyde
3.4 m
Vinduer
2
Dører
0
Synlige etasjer
1
Sørøst
Taktype
Valmtak
Høyde
3.4 m
Mønehøyde
7.0 m
Vinduer
0
Dører
1
Synlige etasjer
1

Hendelser

15.04.2026 Rammetillatelse - GBNR 13/1 - Oppføring av offentlig toalett
07.04.2026 Uttalelse vedrørende søknad om oppføring av servicebygg - GBNR 13/1
27.02.2026 Melding om vedtak - Behandling av søknad om dispensasjon - Oppføring av servicebygg - Ekkerøy, Nasjonal Turistvei
17.02.2026 Innspill til søknad om dispensasjon for eiendom 13/1
17.02.2026 Uttalelse til søknad om dispensasjon - Oppføring av servicebygg - Gbnr. 13/1 - Ekkerøy
05.02.2026 Supplering av søknad GBNR 13/1
21.01.2026 Uttalelse til bygging av parkeringsplass og servicebygg på Ekkerøy - gnr 13/1
20.01.2026 Oversender søknad til uttalelse - GBNR 13/1 - Oppføring av servicebygg
19.01.2026 Oversender søknad til uttalelse - GBNR 13/1 - Oppføring av servicebygg
31.12.2025 Behandling av søknad om dispensasjon - Oppføring av servicebygg - Ekkerøy, Nasjonal Turistvei