NewConstruction Igangsettingstillatelse Offentlig

Ny skolebygg med riving på Åslia 13, Bergen

📍 Åslia 13 , 5115 ULSET

Nøkkelinfo

Sakstype
Nybygg
Bygningstype
Offentlig
Bruksareal
5,550 m²
Kommune
Bergen
Fylke
Vestland
Gnr / Bnr
208 / 214
Saksnummer
BYGG-2025/13271
Fase
Igangsettingstillatelse

Om byggesaken

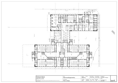
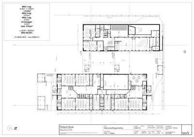
Ny barneskole på Åslia 13 i Bergen kommune oppføres som et nytt skolebygg i to fløyer med til sammen ca. 5550 m² BRA, fordelt på 2 og 3 etasjer. Eksisterende skolebygg fra 1977 rives, med omfattende miljøsanering inkludert asbestfjerning og håndtering av farlig avfall. Bygget har bærekonstruksjon i limtre og massivtre, med prefabrikkerte bindingsverkelementer og lavkarbon betong hulldekker. Fasader er i tre med grønn farge og flatt tak med solcelleanlegg på ca. 1100 m². Utearealer opparbeides med lekeplasser, ballbane, gangveier og parkeringsplasser, med overvannshåndtering via fordrøyningsmagasin. Bygget prosjekteres for passivhusstandard og nærnullenergibygg (nZEB). Det er planlagt omfattende ombruk av bygningsmaterialer fra eksisterende bygg, og det er etablert rigg- og sikringsplan for byggeperioden. Prosjektet har godkjente igangsettingstillatelser for ulike byggefaser, inkludert grunnarbeid, betongarbeid, og VA-anlegg. Det er også gitt samtykke fra Arbeidstilsynet for arbeidsmiljøet i byggeperioden.

Produkter og materialer

Miljøsanering Asbestfjerning

🧱 Asbestholdige pernitplater, fugemasse på ventilasjonskanaler

Omfattende asbestsanering kreves før riving, inkludert veggplater og fugemasser

Sanering av asbest i eksisterende bygg før riving, utføres av godkjent foretak

Fasade Teglforblending

🧱 Teglforblending på sokkelvegg

Teglforblending på sokkel, integrert i bindingsverkskonstruksjon

Sokkelvegg med teglforblending som del av fasadeutforming

Fasade Trekledning

🧱 Liggende og stående trepanel

Malt grønn trekledning, noe rehabilitert i 2009/2010

Utvendig trekledning på skolebygget, planlagt ombruk etter kontroll for råteskader

Dører Ytterdører i tre og aluminium

🧱 Tre og aluminium

Ytterdører fra 2009/2010, noen originale kompakte tredører fra 1977

Ytterdører til skolebygget, planlagt ombruk av nyere dører, originale dører vurderes for innvendig ombruk

Elektro Elektriske installasjoner og EE-avfall

Lysarmaturer, kabler, brytere, nødlys, ventilasjonsaggregater, PC-utstyr, tavler

Elektriske og elektroniske komponenter skal demonteres og leveres som EE-avfall

Betong Plasstøpte betongkonstruksjoner og hulldekker

🧱 Lavkarbon betong klasse A

Betonggulv på grunn, hulldekker i etasjeskiller, ringmur i betong

Betongkonstruksjoner i skolebygget, planlagt ombruk og kontrollert massehåndtering

Tak Betongtakstein og asfaltpapp

🧱 Betongtakstein, asfaltpapp

Betongtakstein med lavkarbon klasse A, takpapp med PAH over normverdi under nyere tekking

Taktekking med betongtakstein og eldre asfaltpapp som må håndteres som lett forurenset masse

Trapper Innvendige trapper i tre

🧱 Tre

Antall: 1

Innvendig trapp i tre i god stand, planlagt ombruk

Innvendig trapp i skolebygget

Utomhus Lekeplasser, ballbane, gangveier

Opparbeidelse av utearealer med lekeplasser, ballbane, gangveier og parkeringsplasser

Utomhusanlegg til ny skole med fokus på universell utforming og støybeskyttelse

Riving Eksisterende skolebygg

Antall: 1838

Eksisterende skolebygg på ca. 1838 m² BTA skal rives

Riving av eksisterende skolebygg med miljøsanering

Sanitær Sanitærutstyr

Servanter, toaletter, urinaler i god stand, planlagt ombruk med ny armatur

Sanitærutstyr i skolebygget, planlagt ombruk med utskifting av armatur for vannbesparelse

Gulv Linoleum og fliser

🧱 Linoleum gulvbelegg, terrakottafliser, lakket tregulv i sløydsal

Linoleum inneholder bly og ftalater, leveres som farlig avfall. Fliser leveres som rene masser.

Gulvbelegg i undervisningsrom og fellesarealer med krav til sortering og deponering

Tømrer Limtre søyler og bjelker

🧱 Limtre

Bærende limtrekonstruksjoner i søyler og bjelker, vurdert for ombruk etter tilstandsvurdering

Bærekonstruksjon i limtre, planlagt ombruk i deler av bygget

Solceller Takmonterte solcellepaneler

Antall: 1100

Solcelleanlegg på ca. 1100 m² takflate, forventet produksjon ca. 122 000 kWh/år

Solcelleanlegg på tak for energiproduksjon og reduksjon av netto energibehov

Ventilasjon VAV-aggregater

Antall: 3

VAV-aggregater med samlet luftmengde ca. 69 000 m3/h, SFP 1,5, virkningsgrad 82,6%

Ventilasjonsanlegg for energieffektiv luftbehandling i skolebygget

Grunnarbeid Massehåndtering og fordrøyningsanlegg

Masseutskifting for å unngå setningsskader, fordrøyningsmagasin på ca. 100 m3 for overvann

Grunnarbeider med masseutskifting og overvannshåndtering i uteområder

Vinduer Isolerglassvinduer

🧱 Aluminiumsramme med innvendig treverk

Antall: 111

U-verdi 0,64 W/m²K, type H-vinduet Magnor, produsert 2009/2010

Isolerglassvinduer til ny skole, planlagt ombruk av eksisterende vinduer fra 2009/2010

Isolasjon Isolasjon i yttervegger og tak

🧱 Mineralull, EPS, XPS

Isolasjonstykkelser 250 mm i yttervegger, 300 mm i gulv på grunn, lett-tak-elementer i tak

Isolasjon i klimaskall for passivhusstandard, inkludert markisolasjon og radonsperre

Fasader

Skole

Nord
Materiale
Tre
Taktype
Flatt tak
Høyde
6.5 m
Vinduer
16
Dører
1
Synlige etasjer
2
Vest
Materiale
Tre
Taktype
Flatt tak
Høyde
6.5 m
Vinduer
14
Dører
1
Synlige etasjer
2
Sør
Materiale
Tre
Taktype
Flatt tak
Høyde
10.5 m
Vinduer
12
Dører
1
Synlige etasjer
3
Øst
Materiale
Tre
Taktype
Flatt tak
Høyde
10.5 m
Vinduer
18
Dører
1
Synlige etasjer
3

Utomhus

Ukjent
Materiale
Tre
Vinduer
14
Dører
4
Synlige etasjer
2

Hendelser

07.04.2026 Fakturagrunnlag
07.04.2026 Ubw ordre 20693345/IG4
07.04.2026 Igangsettingstillatelse nr 5 Åslia 13, vedtak riving av hele bygg, oppføring av nytt skolebygg m.m.
30.03.2026 Åslia 13 Søknad om igangsettingstillatelse 208/214
30.03.2026 Åslia 13 Søknad om igangsettingstillatelse 208/214
24.03.2026 Igangsettingstillatelse nr 4 Åslia 13, vedtak riving av hele bygg, oppføring av nytt skolebygg m.m.
23.03.2026 Åslia 13 Gjennomføringsplan 208/214
23.03.2026 Åslia 13 Søknad om igangsettingstillatelse 208/214
16.03.2026 Bekreftelse fra Bergen Vann at det kan gis IG for råbygg - 208/214/0/0 Åslia 13, riving av hele bygg, oppføring av nytt skolebygg m.m.
16.03.2026 Ber om bekreftelse fra Bergen Vann at det kan gis IG for betongarbeid
10.03.2026 Vedrørende bekreftelse fra Bergen Vann at det kan gis IG for betongarbeid
09.01.2026 Gebyr
09.01.2026 Ubw ordre 20685418 Igangsettingstillatelse betongarbeid for skolebygget.
06.01.2026 Igangsettingstillatelse nr 3 Åslia 13, vedtak riving av hele bygg, oppføring av nytt skolebygg m.m.
05.01.2026 Åslia 13 Søknad om igangsettingstillatelse 208/214
05.01.2026 Kopi - Bekreftelse fra Bergen Vann at det kan gis IG for betongarbeid - 208/214/0/0 Åslia 13, riving av hele bygg, oppføring av nytt skolebygg m.m.
12.11.2025 Kopi - Krav om opparbeiding av hovedledninger for vann og kommunal overtakelse i henhold til § 18-1 i plan- og bygningsloven - 208/214/0/0 Åslia 13, riving av hele bygg, oppføring av nytt skolebygg m.m.
05.11.2025 Fakturagrunnlag
05.11.2025 ubw ordre 20681074/IG
28.10.2025 Ber om svar
24.10.2025 Igangsettingstillatelse Åslia 13, vedtak riving av hele bygg, oppføring av nytt skolebygg m.m.
21.10.2025 Åslia 13 Søknad om igangsettingstillatelse 208/214
05.10.2025 Henvendelse - 208/214/0/0 Åslia 13, riving av hele bygg, oppføring av nytt skolebygg m.m.
30.09.2025 Igangsettingstillatelse nr 1 Åslia 13, vedtak riving av hele bygg, oppføring av nytt skolebygg m.m.
25.09.2025 Fakturagrunnlag
25.09.2025 Ubw ordre 20677599 Nybygg skolebygg, utomhusarealer, VA-anlegg mm. riving, og igangsettingstillatelse.
19.09.2025 Åslia 13 Søknad om igangsettingstillatelse 208/214
15.09.2025 Rammetillatelse gnr 208/214 Åslia 13, vedtak riving av hele bygg, oppføring av nytt skolebygg m.m.
15.09.2025 Ber om status i sak- 208/214/0/0 Åslia 13, riving av hele bygg, oppføring av nytt skolebygg m.m.
09.09.2025 Åslia 13 Søknad om endring av gitt tillatelse eller godkjenning 208/214
28.08.2025 Referat fra Byggesaksforum
11.08.2025 Ber om telefonmøte- 208/214/0/0 Åslia 13, riving av hele bygg, oppføring av nytt skolebygg m.m.
04.08.2025 Forespørsel om møte - 208/214/0/0 Åslia 13, riving av hele bygg, oppføring av nytt skolebygg m.m.
14.07.2025 Spørsmål til sak - 208/214/0/0 Åslia 13, riving av hele bygg, oppføring av nytt skolebygg m.m.
02.07.2025 Vedrørende nye skisser - 208/214/0/0 Åslia 13, riving av hele bygg, oppføring av nytt skolebygg m.m.
02.07.2025 Stopper tiden i byggesaken til mottatt nye / reviderte tegninger
01.07.2025 Rolland skole vurdering visuelle kvaliteter etc
24.06.2025 Tilbakemelding - 208/214/0/0 Åslia 13, riving av hele bygg, oppføring av nytt skolebygg m.m.
24.06.2025 Svar på henvendelse om saksstatus - 208/214/0/0 Åslia 13, riving av hele bygg, oppføring av nytt skolebygg m.m.
23.06.2025 Spørsmål til sak - 208/214/0/0 Åslia 13, riving av hele bygg, oppføring av nytt skolebygg m.m.
06.06.2025 Kopi - Vi innvilger søknaden om samtykke etter automatisk saksbehandling - 208/214/0/0 Åslia 13, riving av hele bygg, oppføring av nytt skolebygg m.m.
04.06.2025 Meknad til nabovarsel - 208/214/0/0 Åslia 13, rive og byggeprosess Rolland skole
27.05.2025 Tilleggsopplysninger
26.05.2025 Åslia 13 Supplering av søknad 208/214
22.05.2025 Bekreftelse på mottatt søknad
20.05.2025 Søknad - 208/214/0/0 Åslia 13, riving av hele bygg, oppføring av nytt skolebygg m.m.