Rendering
3D-visualisering av et skole- og flerbrukshallprosjekt med omgivelser, inkludert tekstbeskrivelse og sidefot.
1 / 98
NewConstruction
Unknown
Offentlig
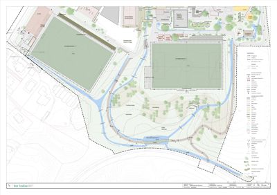
Oppføring av barnehage og fotballbane med tilhørende infrastruktur
📍 Brådalsgutua 10 , 2022 GJERDRUM
Nøkkelinfo
- Sakstype
- Nybygg
- Bygningstype
- Offentlig
- Kommune
- Gjerdrum
- Fylke
- Akershus
- Gnr / Bnr
- 42 / 111
- Saksnummer
- 2026/129
- Fase
- Unknown
Om byggesaken
Saken gjelder et omfattende byggeprosjekt for oppføring av en barnehage og en fotballbane på eiendommen. Prosjektet inkluderer søknad om rammetillatelse og igangsettingstillatelse, omfattende grunnarbeider, vann- og avløpsanlegg, samt tilhørende veg- og landskapsarbeider.
Fasader
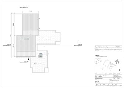
Barnehage
Nord
- Materiale
- Platemontasje
- Taktype
- Flatt tak
- Høyde
- 6.5 m
- Mønehøyde
- 8.2 m
- Vinduer
- 6
- Dører
- 2
- Synlige etasjer
- 2
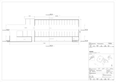
Skole og idrett
Vest
- Materiale
- Betong
- Taktype
- Flatt tak
- Høyde
- 1.8 m
- Mønehøyde
- 1.9 m
- Vinduer
- 4
- Dører
- 2
- Synlige etasjer
- 1
Sør
- Materiale
- Betong
- Taktype
- Flatt tak
- Høyde
- 6.0 m
- Mønehøyde
- 19.3 m
- Vinduer
- 18
- Dører
- 4
- Synlige etasjer
- 2
Nord
- Materiale
- Glass
- Taktype
- Flatt tak
- Høyde
- 4.2 m
- Mønehøyde
- 4.2 m
- Vinduer
- 24
- Dører
- 2
- Synlige etasjer
- 1
Skole
Øst
- Materiale
- Teglstein
- Taktype
- Saltak
- Høyde
- 10.0 m
- Mønehøyde
- 11.9 m
- Vinduer
- 12
- Dører
- 2
- Balkonger
- 1
- Synlige etasjer
- 2
Vest
- Materiale
- Teglstein
- Taktype
- Saltak
- Høyde
- 10.0 m
- Mønehøyde
- 11.9 m
- Vinduer
- 10
- Dører
- 2
- Synlige etasjer
- 2
Hendelser
16.04.2026
Klage på vedtak om rammetillatelse for gnr 42 bnr 111 - Brådalsgutua 10
16.04.2026
Bekreftelse på mottatt klage - Gnr 42 bnr 111 - Brådalsgutua 10 - Oppvekstjordet
16.04.2026
Gnr 42/111 - Brådalsgutua 10 - Supplering av søknad
09.04.2026
Igangsettingstillatelse 1 - Gnr 42 bnr 111 - Brådalsgutua 10 - Oppvekstjordet - Graving av fotballbane
09.04.2026
Tilbakemelding om mangler - Gnr 42 bnr 111 - Brådalsgutua 10 - Oppvekstjordet - Søknad om igangsettingstillatelse 2
09.04.2026
Gnr 42/111 - Supplering av søknad - Brådalsgutua 10 - Oppvekstjordet
09.04.2026
Rammetillatelse - Gnr 42 bnr 111 - Brådalsgutua 10 - Oppvekstjordet
07.04.2026
Gnr 42/111 - Supplering av søknad
30.03.2026
Gnr 42/111 - Søknad om igangsettingstillatelse - Barnehage
23.03.2026
Gnr 42/111 - Søknad om igangsettingstillatelse - Fotballbane graving
17.02.2026
Rammetillatelse - Gnr 42 bnr 111 - Brådalsgutua 10 - Oppvekstjordet
17.02.2026
Gnr 42/111 - Supplering av søknad
02.02.2026
Gnr 42/111 - Supplering av søknad
20.01.2026
Gnr 42/111 - Søknad om rammetillatelse
—