NewConstruction Rammetillatelse Offentlig

Ny firemannsbolig med VA-anlegg i Follesevegen, Askøy

📍 Follesevegen 101 , 5303 FOLLESE

Nøkkelinfo

Sakstype
Nybygg
Bygningstype
Offentlig
Bruksareal
835 m²
Boenheter
4
Kommune
Askøy
Fylke
Vestland
Gnr / Bnr
12 / 1414
Saksnummer
2025/1806
Fase
Rammetillatelse

Om byggesaken

Ny firemannsbolig oppføres på eiendom Gnr 12 Bnr 1414 i Follesevegen, Askøy. Bygget er plassert på en tomt på ca. 1313 m², med et samlet bruksareal på ca. 835 m² fordelt på to etasjer og parkeringskjeller. Boligen har fire separate boenheter med kjøkken/stue, soverom, bad, vaskerom, WC, bod og gangarealer. Bygget er plassert delvis inn i terrenget med parkeringskjeller under, og taket på garasjen fungerer som uteareal. Fasaden er i tre med saltak og flatt tak på garasjen, og bygget har en mønehøyde på ca. 8,2-8,5 meter. Det er etablert nødvendig vann- og avløpsanlegg, og det foreligger godkjent rammetillatelse med dispensasjon fra arealformålet grøntområde i reguleringsplanen. Trafikkforhold og avkjørsel er vurdert, og det er gitt vilkår om oppdatert geologisk rapport og rettigheter til bruk av privat vei. Prosjektet er under politisk behandling og har gjennomgått befaring.

Produkter og materialer

Tak Saltak og flatt tak

🧱 Taktekking i henhold til TEK17

Antall: 1

Saltak med slak vinkel på bolig, flatt tak på parkeringsgarasje

Taktekking for bolig og garasje

Annet VA-ledningsgrøft

Grøft for vann- og avløpsledninger over flere eiendommer med nødvendige rettigheter

Grøft for VA-ledninger med rettigheter fra grunneiere

Elektro Heisinstallasjon

Antall: 1

Heis i boligblokk

Heisinstallasjon for firemannsbolig

VVS Vann- og avløpsanlegg

Tilknytning til offentlig vann og avløp med godkjent VA-anlegg

Vann- og avløpsinstallasjoner for firemannsbolig

Rekkverk Balkongrekkverk

🧱 Tre eller metall

Antall: 2

Rekkverk på balkonger på fasade vest

Sikring av balkonger med rekkverk

Ventilasjon Mekanisk ventilasjon

Ventilasjonssystem i henhold til TEK17

Ventilasjon for boligene

Dører Ytterdører og balkongdører

🧱 Tre

Antall: 12

Ytterdører og balkongdører i tre, inkludert 2 balkongdører på fasade vest

Ytterdører og balkongdører i tre for alle boenheter

Vinduer Fasadevindu

🧱 Tre med 3-lags energiglass

Antall: 25

Vinduer i fasade nord, vest, sør og øst, inkludert 6 vinduer i kjøkken/stue og soverom

Fasadevinduer i tre med energiglass for alle boenheter

Grunnarbeid Terrengplanering og sikring

Terrengplanering med rassikring av skråning mot vest, opparbeidelse av tomt

Grunnarbeid inkludert terrengplanering og sikringstiltak

Isolasjon Bygningsisolasjon

Isolasjon i vegger, tak og gulv i henhold til TEK17

Isolasjon for energieffektiv bolig

Maling Utvendig og innvendig maling

Maling av trepanel og innvendige overflater i henhold til TEK17

Maling for fasade og innvendige flater

Betong Parkeringskjeller

🧱 Betong

Parkeringskjeller på 421,73 m² under boligblokk

Betongkonstruksjon for parkeringskjeller

Trapper Innvendig trapp og heis

Antall: 1

Trapp og heis på 23,2 m² i boligblokk

Innvendig trapp og heis for firemannsbolig

Fasade Trepanel

🧱 Tre

Trepanel på alle fasader

Trepanel som fasademateriale

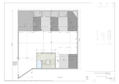
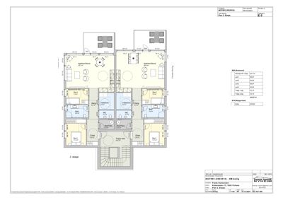
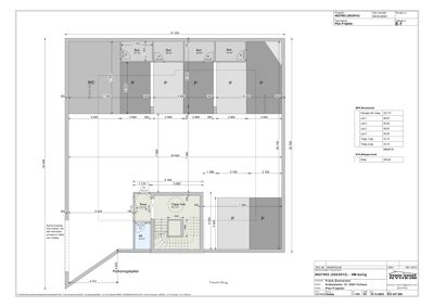
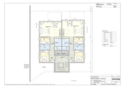
Plantegning

Enebolig 1,090.7 m²

Etasje 2 255.6 m²

Rom Areal Vinduer Dører
Kjøkken/Stove 201 36.1 m² 3 1
Kjøkken/Stove 202 39.6 m² 3 1
Sov1 203 7.5 m² 1 1
Sov1 204 7.5 m² 1 1
Bad 205 6.2 m² 0 1
Bad 206 6.2 m² 0 1
Vaskerom 207 5.6 m² 0 1
Vaskerom 208 5.6 m² 0 1
WC 209 2.7 m² 0 1
WC 210 2.7 m² 0 1
Sov1 211 11.7 m² 1 1
Sov1 212 11.7 m² 1 1
Bod/Tekn. 213 3.2 m² 0 1
Bod/Tekn. 214 3.2 m² 0 1
Gang 215 6.2 m² 0 2
Gang 216 6.2 m² 0 2
Entre 217 6.5 m² 0 1
Entre 218 6.5 m² 0 1
Trapp/heis 219 23.2 m² 0 0

Etasje 1 835.1 m²

Rom Areal Vinduer Dører
Kjøkken/Stove 101 36.1 m² 3 3
Kjøkken/Stove 102 39.6 m² 3 3
Sov1 103 7.5 m² 1 1
Sov1 104 7.5 m² 1 1
Sov1 105 11.7 m² 1 1
Sov1 106 11.7 m² 1 1
Bad 107 6.2 m² 0 1
Bad 108 6.2 m² 0 1
Vaskerom 109 5.6 m² 0 1
Vaskerom 110 5.6 m² 0 1
WC 111 2.7 m² 0 1
WC 112 2.7 m² 0 1
Bod/Tekn. 113 3.2 m² 0 1
Bod/Tekn. 114 3.2 m² 0 1
Gang 115 6.2 m² 0 2
Gang 116 6.2 m² 0 2
Entre 117 6.5 m² 0 1
Entre 118 6.5 m² 0 1
Trapp/heis 119 23.2 m² 0 0

P-kjeller 835.1 m²

Etasje 0 835.1 m²

Rom Areal Vinduer Dører
Bod BK 3.9 m² 0 1
Sluse Sluse 4.2 m² 0 1
Trapp/heis Trapp/heis 23.1 m² 0 0
Parkering P 421.7 m² 0 0
Bod Bod 5.7 m² 0 1
Bod Bod 5.5 m² 0 1
Bod Bod 5.5 m² 0 1
Bod Bod 5.5 m² 0 1

Fasader

Enebolig

Sør
Materiale
Tre
Taktype
Flatt tak
Høyde
6.6 m
Mønehøyde
8.5 m
Vinduer
6
Dører
1
Balkonger
1
Synlige etasjer
2
Øst
Materiale
Tre
Taktype
Saltak
Høyde
6.6 m
Mønehøyde
8.5 m
Vinduer
0
Dører
1
Synlige etasjer
2
Nord
Materiale
Tre
Taktype
Saltak
Høyde
6.5 m
Mønehøyde
8.2 m
Vinduer
6
Dører
0
Synlige etasjer
2
Vest
Materiale
Tre
Taktype
Saltak
Høyde
6.5 m
Mønehøyde
8.2 m
Vinduer
10
Dører
2
Balkonger
2
Synlige etasjer
2

Hendelser

20.04.2026 Gbnr 12/1414 - Vedtak - Statsforvalteren stadfester vedtaket fra Askøy kommune 09.01.2026 - Sak 25/1806 - Avslag på søknad om redusert gebyr
20.02.2026 Gbnr 12/1414 - Oversendelse av klagesak
09.02.2026 Gbnr 12/1414 - Oversendelse av klagesak
09.02.2026 Gbnr 12/1414 - Oversendelse av klagesak
09.02.2026 Gbnr 12/1414 - Feil i oversendelse av klagesak
20.01.2026 Gbnr 12/1414 - Klage på avslag - 19.01.2026 - Nedsettelse av byggesaksgebyr
20.01.2026 Gbnr 12/1414 - Merknader til klage fra Vestland fylkeskommune
14.01.2026 Gbnr 12/1414 - Klage på avslag - Nedsettelse av byggesaksgebyr
09.01.2026 Gbnr 12/1414 - Avslag på søknad om nedsettelse av gebyr
08.01.2026 Gbnr 12/1414 - Orientering om mottatt klage på ditt vedtak
08.01.2026 Gbnr 12/1414 - Tilsvar til klage - dispensasjon og rammetillatelse for firemannsbolig
08.01.2026 Gbnr 12/1414 - Bekreftelse på mottatt klage
06.01.2026 Gbnr 12/1414 - Klage på gebyr
18.12.2025 Gbnr 12/1414 - Klage på vedtak - dispensasjon - Fv. 5246 Follesevegen - firemannsbolig
05.12.2025 Gbnr 12/1414 - Rammetillatelse
02.12.2025 Gbnr 12/1414 - Tilleggsdokumentasjon
02.12.2025 Gbnr 12/1414 - Ber om tilleggsdokumentasjon
21.11.2025 Gbnr 12/1414 - Orientering om befaring
04.11.2025 Gbnr 12/1414 - Tilbakemelding på henvendelse og orientering om status i sak
03.11.2025 Gbnr 12/1414 - Spørsmål om status
14.10.2025 Gbnr 12/1414 - Behov for tilleggsdokumentasjon
14.10.2025 Gbnr 12/1414 - Signert vegrett
13.10.2025 Gbnr 12/1414 -Tilsvar
10.10.2025 Gbnr 12/1414 - Uttale - Statsforvaltaren I Vestland
09.10.2025 Gbnr 12/1414 - Oversender mottatt uttale for tilsvar
09.10.2025 Gbnr 12/1414 - Svar - Ber om uttale
07.10.2025 Gbnr 12/1414 - Uttale dispensasjon firemannsbolig - Vestland fylkeskommune
22.09.2025 Gbnr 12/1414 - Ber om uttale
16.09.2025 Gbnr 12/1414 - Anmodning om høringsuttale
10.09.2025 Gbnr 12/1414 - Supplering av søknad
15.08.2025 Gbnr 12/1414 - Foreløpig vurdering
15.08.2025 Gbnr 12/1414 - Avklaring
14.08.2025 Gbnr 12/1414 - Spørsmål til foreløpig vurdering i sak 25/1806
04.06.2025 Gbnr 12/1414 - Ber om status - Søknad om rammetillatelse
10.02.2025 Gbnr 12/1414 - Søknad om rammetillatelse