NewConstruction Soeknad Offentlig

Oppføring av servicebygg og tilbygg ved Grotlesanden og Vidsyn, Bremanger

📍 Grotlesanden

Nøkkelinfo

Sakstype
Nybygg
Bygningstype
Offentlig
Bruksareal
148 m²
Kommune
Bremanger
Fylke
Vestland
Gnr / Bnr
46 / 18
Saksnummer
2025/2316
Fase
Søknad

Om byggesaken

Prosjektet omfatter flere byggingstiltak i Bremanger kommune. Det inkluderer et nytt servicebygg på 147,7 m² ved Grotlesanden friluftsområde med betongkonstruksjoner, WC, HC-toalett, dusjer, teknisk rom, lager og kiosk. Det pågår også takbytte på grendahuset Dalheim med skifertak som skal erstattes for å sikre byggets levetid og brukersikkerhet. Videre bygges det tilbygg med HC-toalett og ny tilkomst for funksjonshemmede ved ungdomshuset Vidsyn, inkludert veiutvidelse, parkeringsplass og grunnarbeid. Kulturhuset Realen i Svelgen gjennomgår omfattende rehabilitering med fasade- og vindusutskifting, oppgradering av toalett- og dusjfasiliteter, trappefri tilkomst og brannsikring. Prosjektene inkluderer bruk av kvalitetsmaterialer som tre- og betongkonstruksjoner, 3-lags energiglassvinduer, LED-armaturer, våtromsbelegg, og tekniske installasjoner innen VVS og elektro. Det er planlagt bruk av profesjonelle entreprenører kombinert med dugnadsinnsats.

Produkter og materialer

Maling Innvendig og utvendig maling

Maling av tilbygg og eksisterende bygningsdeler

Innvendig og utvendig maling i kulturbygg og tilbygg

Annet Kioskinnredning

Antall: 1

Kioskareal på 8 m² i servicebygg

Innredning og utstyr til kiosk i servicebygg Grotlesanden

Elektro Utendørs belysning

🧱 LED flomlys Siteco FL11 maxipro, ulike modeller PL33T, PL64

Antall: 72

LED-armaturer med DALI styring, 4000K, IP66, CRI>70

Utskifting av flomlys på Bjørsvika kunstgressbane

Fasade Kledning

🧱 Tre, enkelfalsa, grunnet hvit

Utvendig kledning på servicebygg og kulturbygg

Ny kledning og etterisolering av fasader

Tømrer Bindingsverk og konstruksjon

🧱 48x98 og 48x148 bindingsverk, Hunton himlingsplater

Bindingsverk med asfaltplater, vindsperre, lekter, himlingsplater

Tømrerarbeid i servicebygg og tilbygg Vidsyn

Rekkverk Trappe- og rekkverksarbeid

Antall: 3

Innvendige trapper i Kulturhuset Realen og servicebygg

To trapper i Kulturhuset Realen, en trapp i servicebygg

Grunnarbeid Tomteutviding og vei

Graving, sprenging, veiutvidelse, parkeringsplass, drenering

Tomteutviding og ny tilkomstveg til Vidsyn ungdomshus

Gulv Laminat og våtromsbelegg

Tilfarergulv med gulvspon, laminat, våtromsbelegg og baderomsplater

Gulvbelegg i våtrom og laminat i gangarealer

VVS Sanitæranlegg

HC-toalett, dusj, vaskerom, rørinstallasjoner, septiktank

Nye sanitærfasiliteter i servicebygg, Dalheim og Vidsyn tilbygg

Betong Ringmur og plate

Ny ringmur på eksisterende støpt plate, støpt gulv på WC og HC-toalett

Betongkonstruksjoner i servicebygg og tilbygg Vidsyn

Tak Taktekking

🧱 Takduk, isola powertek, takrenner fra Grøvik

Taktekking på servicebygg med saltak og flatt tak

Nytt tak på servicebygg ved Grotlesanden

Bygningskomponenter Vinduer

🧱 Tre med hvit NCS S0502-Y, 3-lags energiglass, Frekhaug vinduer

Antall: 14

U-verdi ca 0,98-1,2, med sol-, selvvask- og støyegenskaper

Utskifting av vinduer i Kulturhuset Realen og servicebygg

Tak Skifertak

🧱 Skiferheller

Bytte av eksisterende skifertak på Dalheim grendahus

Nytt skifertak for å sikre byggets levetid og brukersikkerhet

Bygningskomponenter Dører

🧱 Tre med hvit NCS S0502-Y, 3-lags glass, balkongdør med lav terskel

Antall: 2

Frekhaug balkongdør med energiklasse Comfort48

Utskifting og flytting av ytterdører i Kulturhuset Realen og servicebygg

Plantegning

Kulturhuset Realen 0.0 m²

Etasje 0 0.0 m²

Rom Areal Vinduer Dører
Teknisk rom 1044 0.0 m² 0 1
Gang 2811 0.0 m² 0 1
Toalett 2254 0.0 m² 0 1
Vaskerom 1020 0.0 m² 0 1
Toalett 1820 0.0 m² 0 1
Rom 15901 0.0 m² 4 1
Rom 5269 0.0 m² 3 1
Rom 7729 0.0 m² 3 1
Rom 6141 0.0 m² 2 1
Rom 1488 0.0 m² 0 1
Rom 4498 0.0 m² 0 1
Rom 3474 0.0 m² 1 1
Rom 8094 0.0 m² 1 1
Rom 8294 0.0 m² 2 1
Rom 1038 0.0 m² 1 1
Rom 3992 0.0 m² 0 1
Rom 1128 0.0 m² 1 1
Rom 7354 0.0 m² 0 1
Rom 8094 0.0 m² 0 1
Rom 1038 0.0 m² 0 1
Rom 15901 0.0 m² 2 1
Rom 2254 0.0 m² 0 1
Rom 1488 0.0 m² 0 1
Rom 6141 0.0 m² 2 1
Rom 2840 0.0 m² 0 1
Rom 2840 0.0 m² 0 1
Rom 2840 0.0 m² 0 1
Rom 2840 0.0 m² 0 1
Rom 2840 0.0 m² 0 1
Rom 2840 0.0 m² 0 1
Trapp 5618 0.0 m² 0 0
Trapp 5618 0.0 m² 0 0

Kulturhuset 107.8 m²

Etasje 1 107.8 m²

Rom Areal Vinduer Dører
Stue 7941 56.5 m² 3 2
Gang 8252 51.3 m² 0 2
Rom 2981 9.8 m² 1 1
Rom 2329 8.2 m² 0 1
Toalett 3622 3.6 m² 0 1
Rom 4277 14.6 m² 1 1
Rom 4046 11.3 m² 1 1
Rom 2657 10.7 m² 1 1
Rom 3815 11.3 m² 1 1

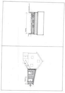
Servicebygg 147.7 m²

Etasje 0 147.7 m²

Rom Areal Vinduer Dører
Rom for septiktank 001 13.4 m² 0 1
Lager 002 19.4 m² 0 1
Teknisk rom 003 11.2 m² 0 1
Herrer 004 8.8 m² 0 1
Damer 005 8.8 m² 0 1
HCWC 006 6.6 m² 0 1
Kiosk 007 8.0 m² 0 1

Fasader

Tilbygg

Ukjent
Materiale
Tre
Taktype
Flatt tak
Vinduer
3
Dører
0
Synlige etasjer
1
Nord
Materiale
Betongplate
Taktype
Saltak
Vinduer
4
Dører
0
Synlige etasjer
2

Hendelser

16.04.2026 Innsendt søknad om spelemidlar til anlegg
30.03.2026 Innsendt søknad om spillemidler til anlegg
12.03.2026 Innsendt søknad om spillemidler til anlegg
05.12.2025 Innsendt søknad om spelemidlar til anlegg
01.12.2025 Kvittering på innsendt søknad om tilskot til Grotlesanden , sanitæranlegg ved Grotlesanden friluftsområde
01.12.2025 Innsendt søknad om spelemidlar til anlegg
15.10.2025 Innsendt søknad om spelemidlar til anlegg
07.10.2025 Informasjonsskriv om søknadsprosess for spelemidlar 2026