NewConstruction Ferdigattest Offentlig

Ny brannstasjon med tekniske anlegg i Jonavegen 115, Jondal

📍 Jonavegen 115 , 5627 JONDAL

Nøkkelinfo

Sakstype
Nybygg
Bygningstype
Offentlig
Bruksareal
246 m²
Kommune
Ullensvang
Fylke
Vestland
Gnr / Bnr
331 / 158
Saksnummer
2023/843
Fase
Ferdigattest

Om byggesaken

Ny brannstasjon på 246,2 m² BRA oppføres som tilbygg til eksisterende bygg på eiendommen Jonavegen 115 i Jondal. Bygget har to etasjer med vognhall, lager, garderober, dusj, WC, tekniske rom og kontorfunksjoner. Bygget er konstruert som et isolert stålbygg med stålsandwichelementer i yttervegger og saltak. Det etableres også nedgraving av brannvannstank, men denne er senere erstattet av vask ved annen stasjon. Bygget har omfattende VVS-installasjoner med luft/vann varmepumpe, gulvvarme, ventilasjonsanlegg, sanitæranlegg og elektroinstallasjoner inkludert brannalarm, adgangskontroll og belysning. Utendørs arbeider inkluderer grunnarbeid, drenering, VA-anlegg, støttemurer, parkeringsplasser og utendørs belysning. Bygget er prosjektert og utført i henhold til gjeldende regelverk og standarder, med fokus på brannsikkerhet, universell utforming (med unntak for arbeidsbygget), og arbeidsmiljøkrav. Det foreligger dispensasjon for plassering i LNFR-område. Brannstasjonen skal overleveres ferdig til bruk med komplett FDV-dokumentasjon og opplæring av driftspersonell.

Produkter og materialer

Innervegger Isolert bindingsverk med gips og baderomsplater

🧱 Bindingsverk, gipsplater, baderomsplater Fibo eller tilsvarende

Bærende innervegger unngås, vegger i personal- og garderobedeler isolert, brann- og lydklassifisert

Innvendige vegger med brann- og lydkrav

Gulv Epoxybelegg og vinylbelegg

🧱 2-komponent epoxy, vinylbelegg med PUR-overflate

Epoxybelegg i vognhall og lager, vinylbelegg i våtrom med oppbrett, gulvvarme i dusj og garderober

Slitesterke og rengjøringsvennlige gulvbelegg

Betong Ringmur og sålefundament

🧱 Betong

Ringmur og fundamenter isolert iht. TEK17, med radonsperre og kapillærbrytende sjikt

Fundamentering og ringmur for bygget

Fast inventar Garderobeskap, kjøkkeninnredning, benker og reoler

🧱 Høykvalitets laminat, rustfritt stål i vasker og benker

Garderobeskap med ventilasjon, komplett kjøkken med induksjonsplatetopp, oppvaskmaskin, kjøleskap, benker og reoler i vognhall

Fast inventar for personal- og driftsfunksjoner

Vinduer Lågenergivinduer i tre med aluminiumsbekledning

🧱 Tre med aluminiumsbekledning, laminert sikkerhetsglass 3-lags isolerglass

U-verdi ≤ 1,0 W/m²K, produsert ved fabrikk tilsluttet NDVK, 10 års garanti, rengjørbare fra innsiden

Vinduer i tre med aluminiumsbekledning og sikkerhetsglass

Grunnarbeid Sprenging og graving

Sprenging i fjellskjæring og for brannvannstank, komplett graving, massehåndtering og klargjøring av tomt

Grunnarbeid med sprenging, graving, drenering, radonsikring og fundamentering

Utendørs VA-anlegg, overvannshåndtering, støttemurer, veier og parkeringsplasser

Nytt vanninntak med stoppekran, spillvannsledning til kommunalt nett, overvannshåndtering med infiltrasjon og overvasskum, støttemurer i naturstein, asfaltering (opsjon), parkeringsplasser med kantstein og oppmerking (opsjon)

Komplette utendørs anlegg og infrastruktur

Garasjeport Isolerte leddheisporter med automatikk

Antall: 3

Porter med vindu, fjernkontrollstyring med 3 fjernkontroller pr port, rask åpning og lukking

Garasjeporter i vognhall for brannbiler

Trapper Innvendig trapp med pulverlakkert rekkverk

🧱 Pulverlakkert stål, svart

Antall: 1

Trapp uten framstikkende trappenaser, tydelig markerte trinn, rekkverk og håndløper i pulverlakkert stål

Innvendig trapp for rømningsvei

Stål Bæresystem i stål

🧱 Stål

Stålsøyler, gitterdragere, kryssavstivninger, brannisolasjon/brannmaling iht. brannklasse 1

Bæresystem for bygget i stål med brannbeskyttelse

Tak Saltak med snøfangere

🧱 Ubrennbar isolasjon, mekanisk festet papp/folie, aluminium takrenner

Saltak med snøfangere, nedløp med løvsil og inspeksjonsluke, taktilgjengelighet for vedlikehold

Tak med snøfangere og god drenering

Fasade Stålsandwichelementer

🧱 Sandwichelement med slagfast overflate

Yttervegger i stålsandwichelementer type Paroc eller tilsvarende, med lavt vedlikehold

Fasade med stålsandwichelementer og aluminiumskledde vinduer og dører

Dører Ytterdører i isolert aluminium

🧱 Isolert aluminium med pulverlakkering

Klemfrie profiler, sklisikre terskler i rustfritt stål, FG-godkjent lås med elektronisk kodelås, utvendig nøkkelboks

Ytterdører med høy sikkerhet og isolasjon

VVS Luft/vann varmepumpe, sanitær, ventilasjon og varme

Luft/vann varmepumpe med elektrisk backup, gulvvarme i 1. etasje, radiatorer i 2. etasje, komplett sanitæranlegg med vegghengte toaletter, dusj, vasker, oljeutskiller (opsjon), ventilasjonsanlegg med varmegjenvinning

Komplette VVS-installasjoner for bygget

Elektro Elkraft, belysning, brannalarm, adgangskontroll og automasjon

Komplett elkraftanlegg med hovedfordeling, kursopplegg, LED-belysning med DALI-styring, nødlys, brannalarmanlegg, iLOQ adgangskontroll, dørautomatikk (opsjon), IKT-installasjoner, automasjon for VVS-anlegg

Fullstendig elektroinstallasjon for bygget

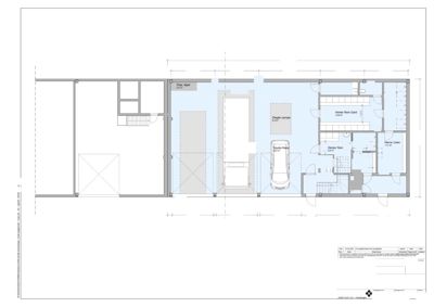
Plantegning

Branngarasje 246.2 m²

Etasje 1 246.2 m²

Rom Areal Vinduer Dører
BRA BRA 246.2 m² 0 0
Disp. lager Disp. lager 2.0 m² 0 0
Vognhall Vognhall 166.4 m² 0 0
Båt på henger Båt på henger 20.0 m² 0 0
Brannbil Oppstilling Brannbil Oppstilling 35.0 m² 0 0
Ziegler pumpe Ziegler pumpe 6.0 m² 0 0
BK / Lager BK / Lager 4.6 m² 0 0
WC WC 2.8 m² 0 0
Dusj Dusj 10.3 m² 0 0
Herrer Rein Gard Herrer Rein Gard 19.8 m² 0 0
Damer Rein Damer Rein 9.4 m² 0 0
Dusj Dusj 4.0 m² 0 0
Herrer Urein Herrer Urein 11.0 m² 0 0
Damer Urein Damer Urein 4.5 m² 0 0
WC WC 2.0 m² 0 0
WC WC 1.9 m² 0 0
gang/trapp gang/trapp 8.1 m² 0 0
Sluse Sluse 7.4 m² 0 0

Fasader

Branngarasje

Vest
Materiale
Tre
Taktype
Saltak
Vinduer
3
Dører
2
Synlige etasjer
1
Aust
Materiale
Tre
Taktype
Saltak
Høyde
5.3 m
Mønehøyde
7.4 m
Vinduer
0
Dører
0
Synlige etasjer
2
Sør
Materiale
Tre
Taktype
Saltak
Høyde
5.3 m
Mønehøyde
7.4 m
Vinduer
0
Dører
0
Synlige etasjer
2

Hendelser

16.04.2026 Brannkonsept 30.11.23
01.04.2026 Konkurransegrunnlag Jondal brannstasjon 20.06.23
01.04.2026 Signert avtale Jondal brannstasjon - Ullensvang kommune
20.11.2025 Vedtak - Dispensasjon fra arealformål - gnr. 331, bnr. 158 - Jonavegen 115
05.05.2025 Brukstillatelse - Gnr. 331, bnr. 158 - Jonavegen 115
30.04.2025 Svar på supplerende informasjon - Gnr. 331, bnr. 158 - Jonavegen 115
30.04.2025 Bekreftelse oppfylt vilkår
23.04.2025 Foreløpig tilbakemelding - Gnr. 331, bnr. 158 - Jonavegen 115
14.05.2024 Etterkontroll – omgjøring av vedtaket om samtykke til «vedtak om samtykke med vilkår»
25.03.2024 Etterkontroll – vi har ikke mottatt svar
26.02.2024 Vedtak - Igangsettingsløyve for bygning - Brannstasjon - Gnr. 331, bnr. 158 - Jonavegen 115
12.02.2024 Arbeidstilsynet har foretatt etterkontroll av planene for tiltaket
26.01.2024 Arbeidstilsynet innvilger søknaden om samtykke etter automatisk saksbehandling
22.01.2024 Signert kontrakt HTB, Jondal Brannstasjon, 06.10.23
22.01.2024 Avtale - sikring av skog ovanfor ny brannstasjon i Jondal 18.09.23
18.01.2024 Tilbakemelding om mangler - gnr. 331, bnr. 158 - Ny brannstasjon og nedgraving av tank
28.09.2023 Vedtak - Rammeløyve til brannstasjon og nedgraving av vasstank - gnr. 331, bnr. 158 - Jonavegen 115
15.09.2023 Tilbakemelding om manglar - gnr. 331, bnr. 158 - Jonavegen 115 - Ny brannstasjon og nedgraving av tank
24.08.2023 Effektbudsjett - Jondal Brannstasjon 29.06.23
24.08.2023 Jondal brannstasjon konkuransegrunnlag 20.06.23