NewConstruction Soeknad Offentlig

Nytt mottaksbygg for avfall i Kristian Birkelands trasé 26, Arendal

📍 Kristian Birkelands trasé 22 , 4849 ARENDAL

Nøkkelinfo

Sakstype
Nybygg
Bygningstype
Offentlig
Bruksareal
612 m²
Kommune
Arendal
Fylke
Agder
Gnr / Bnr
21 / 13
Saksnummer
2026/11460
Fase
Søknad

Om byggesaken

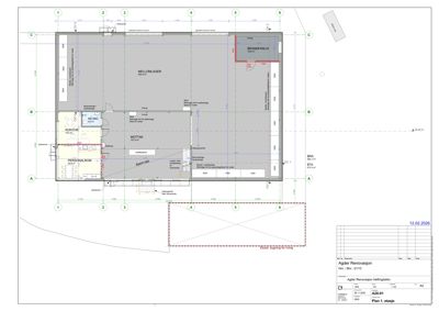
Nytt mottaksbygg for farlig avfall på 612 m² oppføres på Agder Renovasjon sin eiendom i Kristian Birkelands trasé 26. Bygget er en to-etasjers lagerbygning med stålbæring og tre- og platekledning for å harmonere med eksisterende kontorbygg. Første etasje inneholder mottak, mellomlager, brannfarlig rom, kontor, personalrom og HC/WC, mens andre etasje består av et teknisk rom. Bygget har saltak og flatt tak, med gesimshøyder mellom 4 og 6,2 meter og mønehøyder opp til 8,5 meter. Det er planlagt kjøresterke slukrenner, nøddusj, brannslanger, avsug og reoler med spikerslag. Bygget skal erstatte dagens utdaterte mottaksbygg og sikre forsvarlig håndtering av farlig avfall som oljerester, malingsrester og brannfarlige væsker.

Produkter og materialer

Grunnarbeid VA-installasjoner

Tilkobling til offentlig vann- og avløpsnett, bunnledninger og utvendige VA-installasjoner

Vann- og avløpsarbeider for bygget

Ventilasjon Ventilasjons- og klimainstallasjoner

Ventilasjons- og klimaanlegg med varme-, kjøle- og gjenvinningsfunksjoner

Luftbehandling og klimakontroll i bygget

Stål Stålbæring

🧱 Stål

Hovedbæresystem i stål

Stålrammer og bærende konstruksjoner

Tak Saltak og flatt tak

Saltak på sør, øst og vest fasade, flatt tak på nordfasade

Taktekking med saltak og flatt tak iht. fasadetegninger

Grunnarbeid Fundamentering og grunnarbeid

Grunnarbeid for nytt bygg på eksisterende tomt uten konflikt med VA-ledninger eller strømførende linjer

Graving, fundamentering og klargjøring av byggegrunn

Annet Kjøresterk slukrenne

Antall: 2

Kjøresterke slukrenner ved porter

Slukrenner for håndtering av væsker ved innkjøring

Betong Plasstøpte betongkonstruksjoner

Bærende og ikke-bærende konstruksjoner i betong

Betongarbeid for fundamenter og bærende konstruksjoner

Bygningskomponenter Vinduer

Antall: 7

7 vinduer fordelt på fasader nord (1), øst (3) og sør (3)

Fasadevinduer iht. fasadetegninger

Fasade Tre- og platekledning

🧱 Tre og bygningsplater

Fasade i tre og bygningsplater for arkitektonisk tilpasning til eksisterende kontorbygg

Kledning av byggets yttervegger i tre og bygningsplater

VVS Varme- og kuldeinstallasjoner

Prosjektering og installasjon av vannbårne varme- og kuldeinstallasjoner, tilkobling til fjernvarme

Varme- og kjøleanlegg for bygget

Tømrer Trekonstruksjoner og montering

🧱 Tre

Montering av trekonstruksjoner og fasadekledning

Tømrerarbeid for trekledning og bygningsplater

Bygningskomponenter Dører

Antall: 7

7 dører fordelt på fasader og innvendig (mottak, brannfarlig rom, kontor, personalrom, HC/WC)

Ytter- og innerdører iht. plantegninger og fasadetegninger

Brannvern Slukkeinstallasjoner og brannalarmanlegg

Manuelle og automatiske slukkeinstallasjoner, sprinkleranlegg, brannalarmanlegg og brannslanger

Brannsikkerhetssystemer i henhold til brannkonsept

Elektro Ledelys- og ledesystem

Installasjon av ledesystem og nødlys

Elektroinstallasjoner for sikkerhet og drift

Annet Reoler og innredning

Reoler med spikerslag/feste i mottak og mellomlager

Innredning for lagring av farlig avfall

VVS Sanitærinstallasjoner

Innvendige sanitærinstallasjoner inkl. HC/WC, nøddusj, bunnledninger og tilkobling til offentlig vann og avløp

Sanitærinstallasjoner for byggets funksjoner

Plantegning

Enebolig 212.2 m²

Etasje 2 104.3 m²

Rom Areal Vinduer Dører
TEKNISK ROM TEKNISK ROM 104.3 m² 0 1

Etasje 1 107.9 m²

Rom Areal Vinduer Dører
Mottak 101 107.9 m² 0 1
Mellomlager 102 394.4 m² 0 0
Brannfarlig 103 18.8 m² 0 1
Kontor 104 19.4 m² 0 1
Personalrom 105 25.9 m² 0 1
HC/WC 106 4.9 m² 0 1

Fasader

Agder Renovasjon

Vest
Materiale
Tre
Taktype
Saltak
Høyde
4.0 m
Mønehøyde
7.2 m
Vinduer
0
Dører
2
Synlige etasjer
2
Nord
Materiale
Tre
Taktype
Flatt tak
Høyde
4.0 m
Mønehøyde
7.2 m
Vinduer
1
Dører
0
Synlige etasjer
2
Øst
Materiale
Tre
Taktype
Saltak
Høyde
6.2 m
Mønehøyde
8.5 m
Vinduer
3
Dører
1
Synlige etasjer
2
Sør
Materiale
Tre
Taktype
Saltak
Høyde
6.2 m
Mønehøyde
8.5 m
Vinduer
3
Dører
1
Synlige etasjer
2

Hendelser

20.04.2026 Midlertidig svar - Kristian Birkelands trasé 26 Søknad om rammetillatelse 21/13
17.04.2026 DOK-analyse - 21/13/0/0 Kristian Birkelands trasé 26
14.04.2026 Kristian Birkelands trasé 26, melding om mottatt søknad
14.04.2026 Sentral godkjenning
13.04.2026 Kristian Birkelands trasé 26 Søknad om rammetillatelse 21/13