NewConstruction UnderBehandling Offentlig

Ny kommunegarasje med verksted og lager i Leknesveien 63, Leka

Nøkkelinfo

Sakstype
Nybygg
Bygningstype
Offentlig
Bruksareal
220 m²
Kommune
Leka
Fylke
Trøndelag - Trööndelage
Saksnummer
2024/311
Fase
Under behandling

Om byggesaken

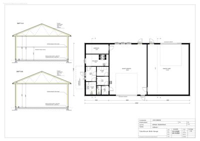
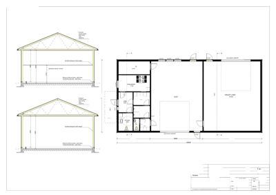
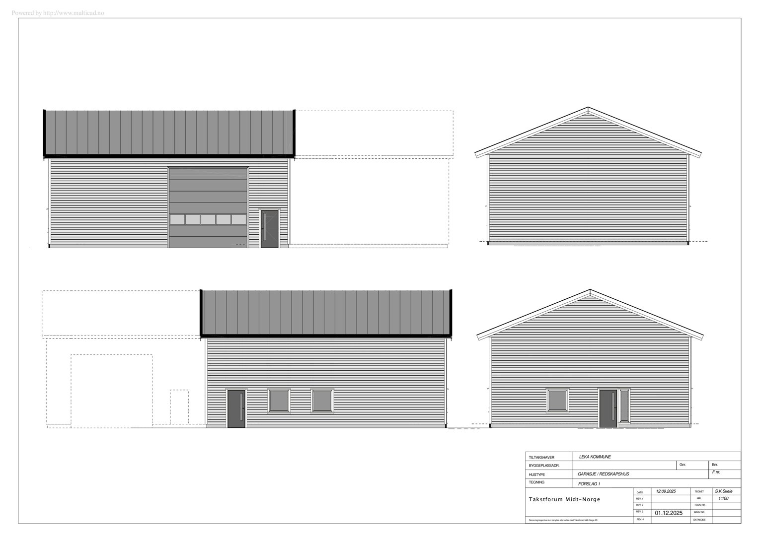
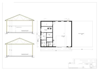
Ny kommunegarasje på totalt 220 m² oppføres i én etasje over ringmur og støpt plate på mark. Bygget har saltak med takplater av stål og utvendig kledning av stålplater på isolert bindingsverk. Innvendig inneholder bygget isolert verksted (82,8 m²), uisolert lager (91,5 m²), kjemikalierom, spiserom/kjøkken, garderober, dusj, WC og vaskerom. Bygget har flere leddheisporter med motorstyring, ytterdører i tre eller PVC, og vinduer i tre eller PVC. Oppvarming skjer med varmekabler og luft-til-luft varmepumpe. Bygget er tilpasset krav fra Arbeidstilsynet og arbeidsmiljølov, med sosiale rom og mulighet for fremtidig oppgradering av lager til verksted. Plasseringen er justert for å unngå konflikt med eksisterende kabler i grunnen, og området er regulert til formål bebyggelse og anlegg med tilhørende miljøtorg. Prosjektet inkluderer også grunnarbeid, fundamentering, isolasjon, ventilasjon og tekniske installasjoner.

Produkter og materialer

VVS Sanitærutstyr og oppvarming

WC/vask med toalett, servant, opplegg for vaskemaskin, varmtvannsbereder, dusjrom med 2 dusjer, sluk tilkoblet oljeutskiller, luft-til-luft varmepumpe

Sanitærinstallasjoner og oppvarming i bygget

Elektro Belysning og motorstyring

Utvendig belysning ved alle ytterdører og porter, motorstyring på garasjeporter

Elektrisk anlegg for belysning og portmotor

Ventilasjon Ventilasjonsanlegg for isolert verksted og sosiale rom

Ventilasjon tilpasset arbeidsmiljøkrav, med opsjon for fremtidig oppgradering

Ventilasjon for arbeids- og oppholdsrom

Garasjeport Isolert leddheisport med motorstyring

Antall: 2

Leddheisport bredde 4,5 m, høyde 4,5 m med 1 glassfelt og motorstyring

Garasjeporter for kjøretøysadkomst

Annet Sosiale rom og garderober

Spiserom/kjøkken, fin- og grovgarderobe, dusj, WC, vaskerom, personalavdeling

Fasiliteter for ansatte i bygget

Tak Saltak med stålplater

🧱 Stålplater, W-takstoler

Saltak med selvbærende takstoler, undertak, taktro, papptekking og takrenner i lakkert stål/aluminium

Tak med stålplater og tilhørende konstruksjon

Dører Ytterdører i tre eller PVC

Antall: 6

Ytterdører i tre eller PVC, inkludert 1 dør til kjemikalierom, 1 til spis/kjøkken, 2 i gang, 1 i fin-garderobe, 1 i dusj, 1 i WC, 1 i vaskerom, 1 i prov-garderobe, 1 i isolert verksted, 1 i uisolert lager

Ytterdører til ulike rom i bygget

Maling Innvendige vegger og tak

Malte plater på vegger og tak, baderomsplater i våtrom, takess eller lignende i tak

Innvendige overflater i sosiale og våtrom

Gulv Belegg og varmekabler

Gulv med belegg i sosiale rom, varmekabler i garderober, dusj, vask/WC og gang

Gulvbelegg og oppvarming av gulv i våtrom og garderober

Betong Støpt plate på mark og ringmur

🧱 Isolert betongplate

Isolert støpt plate på grunn med fundamentering etter behov

Fundamentering og plate på mark for bygget

Tømrer Bindingsverk og kledning

🧱 48x198 mm bindingsverk, utvendig stålplater

Isolert bindingsverk med utvendig kledning av stålplater

Vegger i isolert bindingsverk med stålplatekledning

Vinduer Fasadevindu i tre eller PVC

Antall: 8

Vinduer i tre eller PVC fordelt på fasader nord (5), sør (2), øst (1)

Fasadevindu for naturlig lys i bygget

Grunnarbeid Rydding og opprydding av branntomt

Rivning og rydding av branntomt med forsvarlig håndtering av rivningsavfall og levering til godkjent mottak

Opprydding av branntomt før bygging, inkludert håndtering av forurenset masse

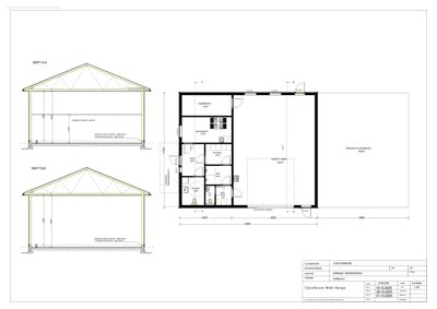
Plantegning

Garasje 220.0 m²

Etasje 1 220.0 m²

Rom Areal Vinduer Dører
Kjemikalier KJEMIKALER 9.5 m² 0 1
Spis/Kjøkken SPIS/KJØKKEN 11.9 m² 0 1
Gang GANG 6.6 m² 0 2
Fin-Gard FIN-GARD 4.9 m² 0 1
Dusj DUSJ 4.5 m² 0 1
WC WC 1.5 m² 0 1
WCVask WCVASK 5.8 m² 0 1
Prov-Gard PROV-GARD 2.8 m² 0 1
Isolert Verksted ISOLERT VERKSTED 82.8 m² 0 1
Uisolert Lager UISOLERT LAGER 91.5 m² 0 1

Fasader

Garasje

Nord
Materiale
Tre
Taktype
Saltak
Vinduer
5
Dører
1
Synlige etasjer
1
Sør
Materiale
Tre
Taktype
Saltak
Vinduer
2
Dører
1
Synlige etasjer
1
Øst
Materiale
Tre
Taktype
Saltak
Vinduer
1
Dører
1
Synlige etasjer
1
Vest
Materiale
Tre
Taktype
Saltak
Vinduer
0
Dører
0
Synlige etasjer
1

Hendelser

24.04.2026 TotalBygg Midt-Norge As - Kontrakt kommunegarasje
19.01.2026 Referat fra møte i byggekomité kommunegarasje 8. januar 2026
23.12.2025 Byggekomite kommunegarasje - Intern høring – ny kommunegarasje (jf. AML § 4‑2)
22.12.2025 Byggekomite kommunegarasje - Foreløpig svar fra AMU - SV: Intern høring – ny kommunegarasje (jf. AML § 4‑2)
26.11.2025 Innkalling - Møte i byggekomité kommunegarasje 27. november 2025
01.10.2025 Arbeidstilsynet - Svar på henvendelse om Arbeidstilsynets samtykke - Oppføring lagerbygning/verksted
25.08.2025 Statsforvalteren i Trøndelag - Uttalelse til endring av kommuneplan - oppføring av ny kommunegarasje - Leka kommune
19.08.2025 Trøndelag fylkeskommune - Vedr. 202528367-2 - Fylkeskommunens uttalelse til oppføring av ny kommunegarasje og endring av plan for området - Leka kommune
13.08.2025 Tensio - Oppføring ny kommunegarasje og endring av plan for området - Leka kommune ber om uttalelse
16.07.2025 Statsforvalteren i Trøndelag med flere - Oppføring av ny kommunegarasje og endring av plan for området - Leka kommune ber om uttalelse.
10.07.2025 Møte 4 - byggekomite kommunegarasje
05.05.2025 Referat fra byggekomitè kommunegarasje
05.05.2025 Innkalling til møte med byggekomitè kommunegarasje mandag 5. mai 2025
30.01.2025 Arbeidstilsynet - angående sambruk av arbeidslokale
13.01.2025 17/52 - Gravetjenester Jan Erling Pettersen - Vedtak rivning og rydding av branntomt på Leka
10.01.2025 Jan Erling Pettersen - Grave / arbeidsgodkjenninng for opprydding branntomt på Leka