NewConstruction Soeknad Offentlig

Ny undervisningspaviljong ved Melhus videregående skole, Martin Tranmæls veg 38

📍 Martin Tranmæls veg 30 , 7224 MELHUS

Nøkkelinfo

Sakstype
Nybygg
Bygningstype
Offentlig
Bruksareal
955 m²
Kommune
Melhus
Fylke
Trøndelag - Trööndelage
Gnr / Bnr
30 / 138
Saksnummer
2025/3444
Fase
Søknad

Om byggesaken

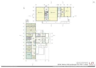
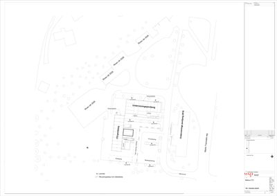
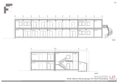
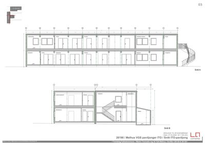
Prosjektet omfatter oppføring av to undervisningspaviljonger på Melhus videregående skole, plassert på eksisterende parkeringsplass. Den ene paviljongen er en enetasjes undervisningsbygning på ca. 568,5 m², mens den andre er en to-etasjes paviljong på ca. 346,5 m² med innvendig trapp og løfteplattform for universell utforming. Byggene består av ombygde og oppgraderte modulbygg fra ca. 2001, med trekonstruksjoner og flate tak. Interiøret inkluderer undervisningsrom, grupperom, møterom, sanserom, hvilerom, kontorer, tekniske rom, garderober, HCWC og lager. Utomhus opparbeides trapper, ramper, uteoppholdsareal, parkeringsplasser inkludert HC-parkering og sykkelparkering. Det legges vekt på universell utforming, brannsikkerhet, støyforhold og miljøhensyn ved gjenbruk av eksisterende moduler. Tiltaket er midlertidig, planlagt å stå i ca. 5 år, og skal fjernes ved ferdigstillelse av ny skolebyggutvikling.

Produkter og materialer

Tak Flatt tak med asfaltpapp

🧱 Asfaltpapp på trekonstruksjon

Flatt tak på modulbygg med asfaltpapp og isolasjon 200 mm mineralull

Taktekking for undervisningspaviljonger

VVS Sanitærinstallasjoner

Sanitærinstallasjoner for undervisnings- og ITO-paviljonger, inkludert HCWC

VVS-installasjoner for sanitær og vannforsyning

Stål Sammenkobling av moduler

🧱 Stål

Sammenkobling av modulbygg og stabilisering

Stålkonstruksjoner for sammenkobling og stabilitet

Trapper Innvendig trapp og utvendig trapp

🧱 Tre/stål

Antall: 2

Innvendig trapp i ITO-paviljong, utvendig trapp og ramper for universell utforming

Trapper for intern kommunikasjon og adkomst, inkludert løfteplattform

Elektro Brannalarmanlegg

Brannalarmanlegg kategori 2 med varsling til nødmeldesentral

Brannalarmanlegg for sikkerhet

Varmepumpe Ingen planlagt

Ingen varmepumpe planlagt pga midlertidighet og eksisterende modulbygg

Ingen varmepumpe installasjon

Grunnarbeid Grunnarbeid for fundamentering

Grunnarbeid for fundamentering av modulbygg

Grunnarbeid for paviljongene

Betong Fundamentering

Fundamentering for modulbygg i henhold til geoteknisk vurdering

Fundament for paviljongene

Dører Ytterdør og brannklassifiserte dører

🧱 Tre/metal

Antall: 11

Dører med brannklasse EI30-CSa, inkludert dører til rømningsvei, trapperom og HCWC

Ytterdører og brannklassifiserte dører for rømningsveier og brannceller

Terrasse Uteoppholdsareal og platting

🧱 Tre

Opparbeidelse av uteoppholdsareal med platting, ramper og trapper

Uteareal for elever og ansatte

Garasjeport Ingen

Ingen garasjeport i prosjektet

Ikke relevant

VVS Ventilasjon og klimainstallasjoner

Ventilasjonsanlegg med brannsikring, motoriserte brannspjeld, og stans ved røykdeteksjon

Ventilasjonssystem for paviljonger

Elektro Ledesystem og nødlys

Ledesystem i rømningsveier i henhold til NS 3926-1:2017 og nødlys NS-EN 1838:2013

Ledesystem og nødlys for rømningssikkerhet

Fasade Trepanel kledning

🧱 Tre

Luftet trepanel, malebehandlet for estetisk oppgradering

Fasadebekledning for modulbygg

Vinduer Fasadevindu

🧱 Tre

Antall: 43

Vinduer i modulbygg, brannklasse EI30, med varierende antall per fasade, inkludert 12 på nordfasade, 18 på vestfasade, 1 på sørfasade, 10 på østfasade

Fasadevindu i tre med brannmotstand, til undervisnings- og ITO-paviljonger

Rekkverk Rekkverk på ramper og trapper

🧱 Tre/metal

Rekkverk for universell utforming på ramper og trapper

Sikkerhetsrekkverk utvendig

Maling Malebehandling fasade

🧱 Maling

Helhetlig malebehandling av fasadekledning for estetisk oppgradering

Maling av fasader på modulbygg

Fasader

Paviljong

Nord
Materiale
Tre
Taktype
Flatt tak
Høyde
3.2 m
Mønehøyde
3.2 m
Vinduer
12
Dører
1
Synlige etasjer
1
Vest
Materiale
Tre
Taktype
Flatt tak
Høyde
3.6 m
Mønehøyde
3.6 m
Vinduer
18
Dører
0
Synlige etasjer
2
Sør
Materiale
Tre
Taktype
Flatt tak
Høyde
35.6 m
Vinduer
1
Dører
1
Synlige etasjer
2
Øst
Materiale
Tre
Taktype
Flatt tak
Høyde
35.6 m
Vinduer
10
Dører
2
Synlige etasjer
2

Hendelser

10.04.2026 Søknad om dispensasjon - Nytt bygg - ikke boligformål over 70 m² - Melhus Videregående skole - 30/128 - Martin Tranmæls veg 38
10.04.2026 Bekreftelse på mottatt rammesøknad - Melhus Videregående skole - Martin Tranmæls veg 38 - gnr/bnr 30/128
10.04.2026 Rammesøknad - Nytt bygg - ikke boligformål over 70 m² - 30/128 - Martin Tranmæls veg 38
10.11.2025 Referat fra forhåndskonferanse - Nybygg - Undervisningsrom, Melhus Videregående skole, gnr/bnr 30/205
30.10.2025 Bekreftelse på mottatt anmodning om forhåndskonferanse
28.10.2025 Timebestilling av forhåndskonferanse i byggesak