NewConstruction Igangsettingstillatelse Offentlig

Nytt kommunalteknisk driftsbygg i Nordre Bliksrud vei 18, Bjørkelangen

📍 Nordre Bliksrud vei 18 , 1940 BJØRKELANGEN

Nøkkelinfo

Sakstype
Nybygg
Bygningstype
Offentlig
Bruksareal
1,640 m²
Kommune
Aurskog-Høland
Fylke
Akershus
Gnr / Bnr
75 / 515
Saksnummer
25/00932
Fase
Igangsettingstillatelse

Om byggesaken

Nytt kommunalteknisk driftsbygg bestående av to bygningskropper: et kontor- og verkstedbygg på ca. 864 m² og et lagerbygg på ca. 789 m², samt utelager under tak på ca. 260 m². Bygningene har flate tak, trefasader med trekledning og sinusplater, og inneholder kontorer, møterom, verksted, lager, garderober, dusjer, tekniske rom og spiserom. Bygget er prosjektert med brannalarmanlegg, ledesystem, brannslanger og håndslokkere, og tilfredsstiller krav til brannsikkerhet og arbeidsmiljø. Utomhusarealene har asfaltdekke, parkeringsplasser under høyspentlinje, og tilknytning til offentlig vann, avløp og vei via private eiendommer med tinglyste rettigheter. Bygget er pellet til fjell og har gjennomgått detaljprosjektering og kontroll. Det foreligger midlertidig brukstillatelse for deler av tiltaket.

Produkter og materialer

Terrasse Fast dekke og uteplass

🧱 Asfalt og fast dekke

Asfalterte utearealer og fast dekke for parkering og uteplass

Utearealer med asfalt og fast dekke

Stål Pelingsarbeider

🧱 Stålpeler

Pelingsarbeider til fjell for begge bygg

Pelingsarbeider for grunnstabilitet

Trapper Innvendig trapp

Antall: 1

En innvendig trapp i kontor/verkstedbygg

Innvendig trapp for etasjeadkomst

Betong Plasstøpte betongkonstruksjoner og ringmur

🧱 Betong

Plasstøpte betongfundamenter og ringmur for byggene

Betongkonstruksjoner for fundament og bærekonstruksjon

Ventilasjon Ventilasjons- og klimainstallasjoner

Ventilasjonsanlegg med klimainstallasjoner for kontor og verksted

Ventilasjons- og klimainstallasjoner for inneklima

Tak Flatt tak med blågrønt tak og ensidig fall

Blågrønt tak med fordrøyning på kontor/verksted, ensidig fall med infiltrasjon på lagerbygg

Taktekking med blågrønt tak og infiltrasjon for overvannshåndtering

Tømrer Trekonstruksjoner og montering

🧱 Tre

Trekonstruksjoner for bæring og innredning, montering av trekonstruksjoner

Tømrerarbeider for byggkonstruksjon og innredning

Garasjeport Port til verksted

Antall: 2

Høye porter i verksted for gjennomkjøring

Garasjeporter for verkstedbygg

Vinduer Fasadevindu i tre

🧱 Tre

Antall: 21

Totalt 21 vinduer fordelt på fasader, trevinduer

Fasadevindu i tre for dagslys og utsyn

Rekkverk Rekkverk i trapper og uteområder

Rekkverk iht. forskrifter i trapper og uteområder

Sikkerhetsrekkverk

Dører Ytterdører og brann-/rømningsdører

Antall: 13

Ytterdører i tre og brannklassifiserte dører EI2 30-Sa i branncellebegrensende vegger

Dører for adgang og rømningsveier med brannmotstand

Elektro Brannalarmanlegg, ledesystem og hovedtavle

Brannalarmanlegg kategori 1, ledesystem, hovedtavle og elektriske installasjoner

Elektroinstallasjoner for brannvarsling og drift

Maling Innvendig og utvendig maling

Maling av fasader og innvendige overflater i henhold til branntekniske krav

Maling og overflatebehandling

Isolasjon Isolasjon i vegger, tak og hulrom

🧱 A2-s1,d0 klasse isolasjon

Isolasjon med brannklasse A2-s1,d0 i vegger, tak og hulrom

Brannsikker isolasjon i konstruksjoner

VVS Sanitær, varme- og kuldeinstallasjoner

Sanitærinstallasjoner, varme- og kuldeinstallasjoner, vannforsyning og avløp

VVS-installasjoner for bygg og uteområder

Grunnarbeid Veg- og grunnarbeider, infiltrasjonsgrøfter

Grunnarbeider, vegbygging, infiltrasjonsgrøfter for overvannshåndtering

Grunnarbeider og vegbygging på tomt

Fasade Trepanel og sinusplater

🧱 Tre og metallplater

Trepanel i jordfarger på kontorbygg, grå/antrasitt sinusplater på verksted og lagerbygg

Fasadebekledning i tre og metallplater for kontor, verksted og lagerbygg

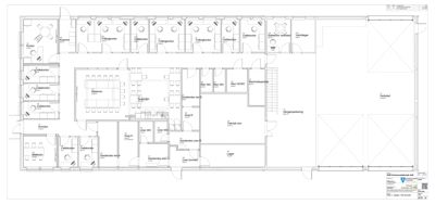
Plantegning

Kontor / Verksted 864.0 m²

Etasje 1 864.0 m²

Rom Areal Vinduer Dører
Korridor 101 21.3 m² 0 5
Cellekontor 102 9.7 m² 0 1
Cellekontor 103 9.8 m² 0 1
Cellekontor 104 9.2 m² 0 1
Kontor 105 15.8 m² 0 1
Kopirom 106 12.5 m² 0 1
Tvillingkontor 110 12.5 m² 0 1
Tvillingkontor 111 12.2 m² 0 1
Cellekontor 112 6.6 m² 0 1
Cellekontor 113 8.4 m² 0 1
Støtterom verksted 114 5.1 m² 0 1
Varmtlager 115 9.0 m² 0 1
Verksted 116 192.0 m² 0 0
Møterom 120 27.0 m² 0 1
Spiserom 121 16.3 m² 0 1
Dusj D 122 4.3 m² 0 1
Garderobe uren D 123 5.3 m² 0 1
Uren WC 124 3.6 m² 0 1
Uren korridor 125 7.1 m² 0 1
Lager 126 75.2 m² 0 0
Møterom 130 9.7 m² 0 1
Cellekontor 131 9.0 m² 0 1
Cellekontor 132 9.9 m² 0 1
Garderobe ren H 133 9.8 m² 0 1
Dusj H 134 6.4 m² 0 1
Garderobe uren H 135 7.1 m² 0 1
Uren WC 136 3.1 m² 0 1
Garderobe ren D 137 4.1 m² 0 1
Renholdssentral 138 9.2 m² 0 1
Ren HCWC 139 5.1 m² 0 1
Ren WC 140 2.8 m² 0 1
Ren WC 141 2.8 m² 0 1
Teknisk rom 142 37.6 m² 0 0
Hengerparkering 143 59.8 m² 0 0
Cellekontor 107 6.0 m² 0 1
Tvillingkontor 108 12.0 m² 0 1
Cellekontor 109 6.0 m² 0 1
Renholdssentral 117 6.3 m² 0 1
Ren HCWC 118 5.1 m² 0 1
Ren WC 119 2.9 m² 0 1
Uren WC 127 3.3 m² 0 1
Garderobe uren H 128 7.1 m² 0 1
Garderobe ren H 129 10.1 m² 0 1
Støtterom verksted 114a 9.0 m² 0 1
Varmtlager 114b 8.1 m² 0 1

Fasader

Kontor / Verksted

Vest
Materiale
Tre
Taktype
Flatt tak
Vinduer
12
Dører
0
Synlige etasjer
1
Øst
Materiale
Tre
Taktype
Flatt tak
Vinduer
4
Dører
3
Synlige etasjer
1
Sør
Materiale
Tre
Taktype
Flatt tak
Vinduer
5
Dører
1
Synlige etasjer
1
Nord
Materiale
Tre
Taktype
Flatt tak
Vinduer
0
Dører
1
Synlige etasjer
1

Hendelser

09.04.2026 25/00932-10 75/515 Midlertidig brukstillatelse
09.04.2026 25/00932-9 75/515 Søknad om midlertidig bruk - Bekreftelse på at gjenstående arbeider er utført
30.03.2026 25/00932-8 75/515 Søknad om midlertidig brukstillatelse for deler av tiltaket
19.11.2025 25/00932-6 75/515 Innvilger søknaden om samtykke etter automatisk saksbehandling
19.11.2025 25/00932-7 75/515 Endringstillatelse
19.11.2025 25/00932-5 75/515 Søknad om endring av gitt tillatelse eller godkjenning
10.03.2025 25/00932-2 75/515 Signert avtale fra Elvia
10.03.2025 25/00932-3 75/515 Tillatelse til oppføring av nytt kommunalteknisk driftsbygg
10.03.2025 25/00932-4 75/515 Supplering til byggesøknad
05.03.2025 25/00932-1 75/515 Søknad om tillatelse i ett trinn