NewConstruction Rammetillatelse Offentlig

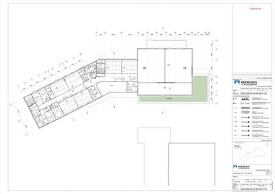
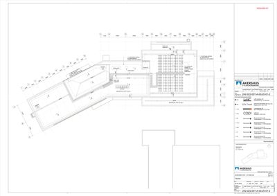
Nybygg videregående skole i Ringvegen 52, Jessheim

📍 Ringvegen 52 , 2066 JESSHEIM

Nøkkelinfo

Sakstype
Nybygg
Bygningstype
Offentlig
Bruksareal
6,837 m²
Kommune
Ullensaker
Fylke
Akershus
Gnr / Bnr
135 / 560
Saksnummer
2025/3274
Fase
Rammetillatelse

Om byggesaken

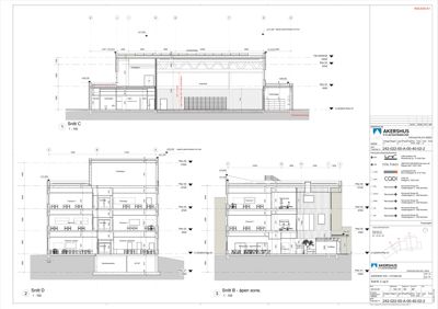
Ny utvidelse av Jessheim videregående skole med et nytt skolebygg på fire etasjer inkludert underetasje, med totalt ca. 6837 m² BRA. Bygget inneholder undervisningsrom for studieløpene Salg, service og reiseliv samt Studiespesialisering, fellesarealer som naturfagrom, grupperom, spiseareal og sosiale soner, samt en idrettshall med basketballbane som kan deles i to, garderobeanlegg og driftsrom. Bygget har vannbåren oppvarming tilknyttet fjernvarme, kjøling via ventilasjonsanlegg med propankjølemaskiner på taket, og solcelleanlegg på taket. Uteområdene er bilfrie med opparbeidede gangveier, ballbaner, aktivitetsområder og parkeringsplasser for bil, MC og sykkel. Grunnforholdene er kartlagt med miljøteknisk grunnundersøkelse som viser forurensede masser i enkelte områder som skal håndteres iht. tiltaksplan. Bygget oppfyller krav til energieffektivitet, lydforhold og universell utforming, og har fått rammetillatelse med vilkår om blant annet samtykke fra Arbeidstilsynet og rapport om støy fra nærmiljøanlegg.

Produkter og materialer

Gulv Gulvbelegg og fliser

Trinnlyddempende belegg over hulldekker, fliser i garderober med lydfuger

Gulvbelegg med lydisolasjon

Isolasjon Mineralull i vegger og himlinger

🧱 Mineralull

Mineralull i vegger med tykkelser 30-95 mm, lydabsorberende himlinger i absorpsjonsklasse A

Isolasjon for lyd og varme

Kjøkken Teknisk kjøkken i skolebygget

Kjøkken for undervisning og drift

Elektro Elkraft og belysning

Elkraft til oppvarming, belysning med dynamisk behovsstyring, elbillading for 51 plasser

Elektriske installasjoner og belysningsanlegg

Fasade Teglstein fasade

🧱 Lys teglstein Wienerberger LESS, Sisteron

Teglstein fasade med relieff og store glassfelt med fargede aluminiumsplater

Robust og vedlikeholdsvennlig teglfasade med variasjon i glass og aluminiumsplater

Ventilasjon Ventilasjonsaggregater og kanalføringer

Ventilasjonsaggregater med lydeffektnivå 56-63 dB, lydisolerende himlinger, vibrasjonsisolerte kanaler og rørføringer

Ventilasjonsanlegg med lydisolasjon og vibrasjonsdemping

Tak Sedumtak med solcelleanlegg

🧱 Sedum og solcellepaneler

Sedumtak ca. 40 % av takareal, solcelleanlegg dimensjonert for skolens eget bruk

Grønt tak med integrert solcelleanlegg

Rekkverk Rekkverk i trapper og balkonger

Rekkverk iht. forskriftskrav

VVS Vannbåren oppvarming og ventilasjon

Vannbåren oppvarming til radiatorer, konvektorer og gulvvarme, ventilasjon med varmegjenvinning, kjøling via kjølebatterier og propankjølemaskiner

Tekniske anlegg for varme, kjøling og ventilasjon

Fasade Glassfasade med aluminiumsramme

🧱 Glass og aluminium

Glassfasade med sikkerhetsglass og lydskjermer

Store glassflater i fasade med lydskjermer for å redusere støy

Vinduer Fasadevindu med aluminiumsramme

🧱 Aluminium

Antall: 58

Vinduer med lydreduksjon Rw + Ctr ≥ 32 dB mot støyutsatt side, Rw + Ctr ≥ 25 dB mot hall

Vinduer i fasade med høy lydisolasjon for å tilfredsstille støykrav

Bad Dusjrom i lærergarderober

Antall: 2

Dusj og toalett i lærergarderober tilknyttet idrettshallen

Dusjrom for ansatte i idrettshallen

Solceller Takmontert solcelleanlegg

Solcelleanlegg på tak over idrettshall og skolebygget, dimensjonert for eget forbruk

Solcelleanlegg for energiproduksjon

Grunnarbeid Drenering og overvannshåndtering

Overvannsplan med infiltrasjonsmagasin, regnbed, drensledninger og flomvernstiltak

Planlagt overvannshåndtering og drenering

Betong Betongplate og påstøp

🧱 Betong

400 mm bunnplate, betongpåstøp på massivtredekke i teknisk rom

Betongkonstruksjoner for fundament og tekniske rom

Varmepumpe Propan kjølemaskin for ventilasjonskjøling

Antall: 2

Kjølemaskiner på tak med propan som kuldemedium, COP minimum 5, med frikjøling via tørrkjøler

Kjøleanlegg for ventilasjon og IKT-rom

Bad HC-toaletter og dusjrom

HC-toaletter i alle etasjer, inkludert i idrettshallens garderober, med krav til dobbeltsidige toaletter

Tilrettelegging for funksjonshemmede

Garasjeport Port til varelevering og avfallshåndtering

Overdekket inngang for renovasjonsleverandør og varelevering

Port for vare- og avfallshåndtering

Grunnarbeid Utgraving og massehåndtering

Utgraving av kjeller i mindre område, håndtering av forurensede masser i tilstandsklasse 2 og 3, sortering av avfall

Grunnarbeid med utgraving og miljøtiltak for forurenset grunn

Tømrer Massivtre og bindingsverk

🧱 Tre

Massivtre i idrettsfløyen, bindingsverk i skolefløyen, lydisolerte vegger med mineralull og gips

Trekonstruksjoner for bæresystem og vegger

Terrasse Uteoppholdsarealer med beplantning og aktivitetsområder

Bilfritt uteområde med gangveier, ballbaner, aktivitetsområder, regnbed, prydbusker, trær og gressarealer

Opparbeidede uteområder med grøntarealer og aktivitetsfasiliteter

Tak Flatt tak med aluminiumskledning

🧱 Aluminium

Flatt tak med aluminiumskledning og takrenner

Tak med aluminiumskledning og takrenner

Dører Ytterdør i aluminium

🧱 Aluminium

Antall: 4

Dører med U-verdi 0,9 W/(m2K)

Ytterdører i aluminium med god isolasjon

Trapper Innvendige trapper i betong

🧱 Betong

Antall: 1

Trapper vibrasjonsisoleres for å redusere trinnlyd

Innvendig trapp med vibrasjonsisolasjon

Fasader

Hovedbygg

Nord
Materiale
Aluminium
Taktype
Flatt tak
Takmat.
Aluminium
Høyde
12.0 m
Vinduer
16
Dører
1
Synlige etasjer
3
Sør
Materiale
Aluminium
Taktype
Flatt tak
Takmat.
Aluminium
Høyde
12.0 m
Vinduer
18
Dører
1
Synlige etasjer
3
Vest
Materiale
Aluminium
Taktype
Flatt tak
Takmat.
Aluminium
Høyde
12.0 m
Vinduer
12
Dører
1
Synlige etasjer
3
Øst
Materiale
Aluminium
Taktype
Flatt tak
Takmat.
Aluminium
Høyde
12.0 m
Vinduer
12
Dører
1
Synlige etasjer
3

Hendelser

15.04.2026 Spørsmål om miljøplan - Gnr 135 bnr 560 - Ringvegen 52 - Nybygg - Skole - Jessheim videregående skole
18.02.2026 Svar på spørsmål om presisering i gitt rammetillatelse - gnr 135 bnr 560 - Jessheim vgs
17.02.2026 Behov for presisering - Rammetillatelse - Gnr 135 bnr 560 - Ringvegen 52 - Nybygg - Skole - Jessheim videregående skole
28.08.2025 Samtykke til planer - Gnr 135 bnr 560 - Ringvegen 52 - Nybygg - Skole - Jessheim videregående skole
19.08.2025 Mindre innvendige tilpasninger - 25/120 - 15 - Jessheim vgs utvidelse
19.08.2025 Besvarelse av endringene - Gnr 135 bnr 560 - Jessheim vgs utvidelse - Nybygg - Skole - VGS
18.07.2025 Vi trenger flere opplysninger for å behandle søknaden – varsel om avslag på søknad
05.06.2025 Oppdatert akustisk notat med støyberegning - Gnr 135 bnr 560 - Ringvegen 52 - Jessheim videregående skole
02.06.2025 Oversender søknad til uttalelse - gnr 135 bnr 560 - Ringvegen 52 - Nybygg - Skole - Jessheim videregående skole
02.06.2025 Rammetillatelse - Gnr 135 bnr 560 - Ringvegen 52 - Nybygg - Skole - Jessheim videregående skole
16.05.2025 Uttalelse til søknad - Gnr 135 bnr 560 - Ringvegen 52 - Nybygg - Skole - Jessheim videregående skole
11.04.2025 Søknad om rammetillatelse - Gnr 135 bnr 560 - Ringvegen 52 - Nybygg - Skole - Jessheim videregående skole