NewConstruction Soeknad Offentlig

Ny barnehage med riving i Roald Amundsens vei 164, Fredrikstad

📍 Roald Amundsens vei 164 , 1658 TORP

Nøkkelinfo

Sakstype
Nybygg
Bygningstype
Offentlig
Bruksareal
832 m²
Kommune
Fredrikstad
Fylke
Østfold
Gnr / Bnr
621 / 25
Saksnummer
2026/7518
Fase
Søknad

Om byggesaken

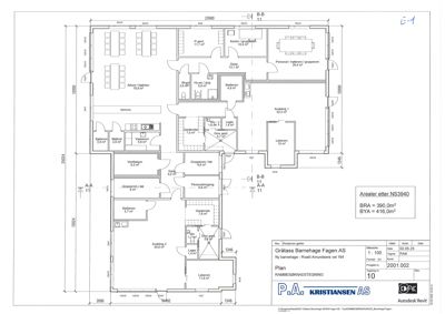
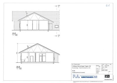
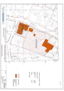
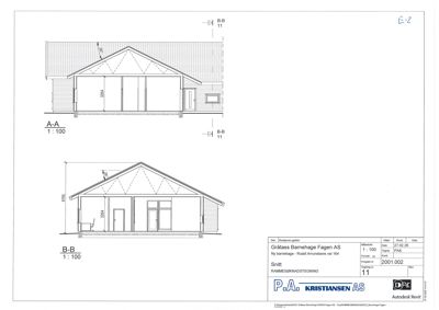
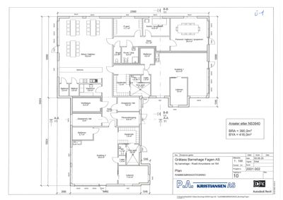
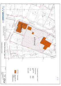
Ny barnehage på totalt 832 m² fordelt på to etasjer oppføres i Roald Amundsens vei 164 som en utvidelse og integrert del av eksisterende Gråtass barnehage på naboeiendommen. Bygget har saltak og trekledning, med gesimshøyde ca. 4 meter og mønehøyde ca. 8,5 meter. Planløsningen inkluderer avdelinger, lekerom, personalrom, kjøkken, garderober, stellerom, HC-WC, kontorer og tekniske rom. Tomtene 621/25 og 621/19 slås sammen for å sikre funksjonelle utearealer og parkering. Eksisterende bygning rives, og ny barnehage bygges med fokus på støyskjerming, universell utforming og gode uteområder. Det planlegges ca. 80 barnehageplasser med tilstrekkelig uteareal på ca. 2000 m². Trafikksikkerhet og utomhusplan må dokumenteres nærmere før igangsetting.

Produkter og materialer

Gulv Gulvbelegg og fliser i våtrom

Fliser og gulvbelegg i våtrom og oppholdsrom

Gulvbehandling i barnehage, inkl. våtrom

Utendørs Uteoppholdsareal og lekeplass

Ca. 2000 m² uteoppholdsareal for ca. 80 barn, med krav til støyskjerming og sikkerhet

Utomhusplan med lekearealer, gjerder, porter og gangveier må utarbeides

Ventilasjon Ventilasjonsanlegg med kanalføringer

Ventilasjonsanlegg med kanalføringer og innregulering

Ventilasjon for nytt barnehagebygg

Dører Ytterdører og personalinngangsdør

🧱 Tre eller tilsvarende

Antall: 10

Dører fordelt på fasader og internt, inkl. personalinngang og HC-WC dør

Ytterdører og dører til personalrom, HC-WC og garderober

Parkering Parkering og adkomst

Parkering for ansatte og snu-/manøvreringsareal på egen grunn, trafikksikkerhetskrav må oppfylles

Parkering og trafikksikkerhetsløsninger i utomhusplan

Riving Riving av eksisterende bygning

Antall: 1

Riving av eksisterende bolighus i dårlig forfatning

Riving med avfallsplan av eksisterende bygning på tomten

Vinduer Fasadevindu i tre

🧱 Tre

Antall: 19

Vinduer fordelt på fasader: Nord 6, Vest 5, Sør 4, Øst 4

Fasadevindu i tre med støyskjerming tilpasset gul støysone

Betong Mur- og betongarbeider

Mur- og betongarbeider inkludert radonsikring

Betongarbeider for fundament og murverk

Elektro Elektriske installasjoner

Elektriske installasjoner for belysning, strøm og sikkerhet

Elektroarbeid for nytt bygg

VVS Sanitæranlegg og vann/avløp

Innvendig sanitæranlegg, tilknytning til vann og avløp

VVS-installasjoner for barnehage, inkl. HC-WC og stellerom

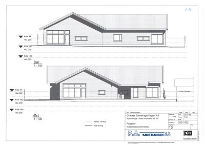
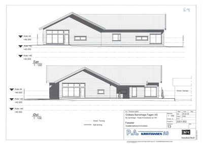
Tak Saltak med trekledning

🧱 Tre

Antall: 1

Saltak med gesimshøyde ca. 4 m og mønehøyde ca. 8,5 m

Saltak med trekledning som taktekking og fasade

Tømrer Tømrerarbeid for ny barnehage

Tømrerarbeid for ny barnehage, inkludert konstruksjon og detaljer

Tømrerarbeid for oppføring av ny barnehage

Grunnarbeid Tomtearbeid og sammenslåing

Sammenslåing av tomtene 621/25 og 621/19, grunnarbeid for ny bygning og utearealer

Grunnarbeid for ny barnehage og uteområder, inkl. parkering og lekeareal

Maling Innvendig og utvendig maling

Maling av fasader og innvendige overflater

Maling for treflater og innvendige vegger

Fasade Trekledning

🧱 Tre

Trekledning på alle fasader

Trekledning som fasademateriale for ny barnehage

Fasader

Barnehage

Nord
Materiale
Tre
Taktype
Saltak
Høyde
4.2 m
Mønehøyde
8.5 m
Vinduer
6
Dører
3
Synlige etasjer
1
Vest
Materiale
Tre
Taktype
Saltak
Høyde
4.2 m
Mønehøyde
8.5 m
Vinduer
5
Dører
0
Synlige etasjer
1
Sør
Materiale
Tre
Taktype
Saltak
Høyde
4.0 m
Mønehøyde
8.2 m
Vinduer
4
Dører
1
Synlige etasjer
1
Øst
Materiale
Tre
Taktype
Saltak
Høyde
4.0 m
Mønehøyde
8.2 m
Vinduer
4
Dører
1
Synlige etasjer
1

Hendelser

16.04.2026 Svar - Anmodning om uttalelse - Riving av eksisterende bebyggelse/oppføring av ny barnehage - Roald Amundsens vei 164 - Eiendom 621/25
15.04.2026 Foreløpig tilbakemelding - Riving av eksisterende bygning samt oppføring av ny barnehage - Roald Amundsens Vei 164 - Eiendom 621/25
14.04.2026 Uttalelse fra kommunen som barnehagemyndighet - oppføring av nytt barnehagebygg - Roald Amundsens vei 14
10.04.2026 Uttalelse fra miljø og landbruk - Riving av eksisterende bebyggelse/oppføring av ny barnehage - Roald Amundsens vei 164 - Eiendom 621/25
31.03.2026 Uttalelse fra Samferdsel, byrom og grønnstuktur
18.03.2026 Bekreftelse på mottatt søknad - Riving av eksisterende bygning samt oppføring av ny barnehage - Roald Amundsens Vei 164 - Eiendom 621/25
18.03.2026 Anmodning om uttalelse - Riving av eksisterende bebyggelse/oppføring av ny barnehage - Roald Amundsens vei 164 - Eiendom 621/25
06.03.2026 Rammesøknad - Roald Amundsens Vei 164 - Eiendom 621/25 - Riving av eksisterende bygning samt oppføring av ny barnehage