NewConstruction UnderBehandling Offentlig

Ny barneskole med idrettshall i Stølshaugvegen, Veavågen

📍 Stølshaugvegen 1 , 4276 VEAVÅGEN

Nøkkelinfo

Sakstype
Nybygg
Bygningstype
Offentlig
Bruksareal
5,600 m²
Kommune
Karmøy
Fylke
Rogaland
Gnr / Bnr
4 / 12
Saksnummer
2022/6355
Fase
Under behandling

Om byggesaken

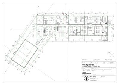
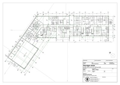
Ny Veavågen barneskole oppføres som et kompakt skolebygg i tre etasjer med flate tak, totalt ca. 5600 m² bruttoareal inkludert idrettshall på ca. 900 m². Bygget er plassert i kupert terreng med tilpasning til eksisterende landskap og bevaringsverdige omgivelser. Skolen har separate innganger og garderober for hvert trinn, spesialrom for kunst, håndverk, musikk og multifunksjonshemmede, samt aula og administrasjonsarealer. Idrettshallen er plassert i tilknytning til utendørs ballbaner. Bygget har vannbåren gulvvarme i 1. etasje og radiatorvarme i øvrige etasjer, oppvarming med væske/vann varmepumper, og planlegges med solcelleanlegg. Uteområdene inkluderer ballbinge, ballbane, lekeplasser, sykkelparkering og universelt utformede gangveier. Fasader er i tre, betong og metallplater med nøytral fargepalett og sjøhusinspirert design for å harmonere med nabobebyggelsen. Prosjektet inkluderer omfattende teknisk infrastruktur med kommunalt vann, avløp og overvannshåndtering, samt ny nettstasjon. Det er planlagt to heiser for universell utforming og flere HC-parkeringsplasser. Prosjektet er under behandling med rammetillatelse og har mottatt samtykke fra Arbeidstilsynet.

Produkter og materialer

Tømrer Bygging av konstruksjoner og innredning

Tømrerarbeid for skolebygg, idrettshall, mellombygg og utearealer

Bygningskonstruksjoner og innvendige arbeider

Dører Inngangsdører og dører til spesialrom

Antall: 20

Trinnvise innganger med garderober, overdekket med tre-trinns løsning

Dører til elevinnganger, spesialrom og administrasjon

Heis Universell utforming heiser

Antall: 2

To heiser for universell adkomst til alle plan og idrettshall

Heiser for tilgjengelighet

Isolasjon Bygningsisolasjon

Isolasjon iht. TEK17 for energieffektivitet og lydisolasjon

Isolasjon i vegger, tak og gulv

Terrasse Uteområder med lekeplasser og ballbaner

Ballbinge, ballbane, lekeplasser med variert utstyr, naturlekesone med gapahuk og grillhytter

Uteoppholdsarealer og lekeområder

Ventilasjon Ventilasjonsanlegg for skole og idrettshall

Ventilasjon iht. TEK17 krav, inkludert luftoppvarming i idrettshall

Ventilasjonsanlegg

Elektro Nettstasjon og solcelleanlegg

Ny nettstasjon ved drop-off sone, solcelleanlegg på tak med ca. 120 kWp kapasitet

Energiforsyning og solcelleanlegg

Tak Flate tak med saltak på deler

🧱 Taktekking ikke spesifisert

Flate tak med saltak, gesimshøyde ca. 28,64 m for skolebygg og 24,8 m for idrettshall

Tak til skolebygget og idrettshall

Trapper Innvendig hovedtrapp og trappegallerier

Antall: 1

Hovedtrapp og trappegallerier i sør, tilknytning til trinnområder

Innvendige trapper for etasjeadkomst

Fasade Tre- og betongfasader med metallplater

🧱 Tre, betong, metallplater

Fasader i tre, betong og metallplater, nøytral fargepalett, sjøhusinspirert design

Robuste og vedlikeholdsvennlige fasader til skolebygget og idrettshall

Maling Utvendig og innvendig maling

Utvendig trepanel behandles for å gråne naturlig, innvendige overflater tilpasses skolebruk

Overflatebehandling av fasader og innvendige rom

VVS Væske/vann varmepumper og vannbåren gulvvarme

Oppvarming med varmepumper, vannbåren gulvvarme i 1. etasje, radiatorer i øvrige etasjer

Varme- og kjøleanlegg

Vinduer Store nordvendte vinduer i klasserom

Antall: 60

Vinduer plassert mot nord for godt dagslys uten blending

Vinduer for klasserom og fellesarealer

Sykkelparkering Sykkel- og sparkesykkelparkering

Antall: 322

286 plasser under tak, 36 plasser utendørs for sparkesykler

Sykkelparkering for elever og ansatte

Grunnarbeid Tomtearbeid, fundamentering og VA-anlegg

Etablering av kommunalt vann- og avløpsnett, overvannshåndtering med fordrøyning, fundamentering i kupert terreng

Grunnarbeid og teknisk infrastruktur

Parkering Bilparkering og HC-plasser

Antall: 34

34 parkeringsplasser inkl. 2 HC-plasser ved gammel skole, 3 HC-plasser og ekstra ved hovedinngang

Bilparkering for ansatte og besøkende

Fasader

Skole

Vest
Materiale
Tre
Taktype
Saltak
Høyde
10.0 m
Mønehøyde
26.6 m
Vinduer
12
Dører
2
Synlige etasjer
3
Sør
Materiale
Tre
Taktype
Saltak
Høyde
10.0 m
Mønehøyde
34.5 m
Vinduer
10
Dører
3
Synlige etasjer
3
Øst
Materiale
Betong
Taktype
Saltak
Høyde
28.0 m
Mønehøyde
28.6 m
Vinduer
28
Dører
3
Synlige etasjer
2
Nord
Materiale
Tre
Taktype
Saltak
Høyde
6.5 m
Mønehøyde
8.2 m
Vinduer
10
Dører
2
Synlige etasjer
2

Hendelser

15.04.2026 Gnr. 4, bnr. 12 - Arbeidstilsynet innvilger søknaden om samtykke etter automatisk saksbehandling
23.11.2022 Revidert utomhusplan - Gnr. 4, bnr. 12 - Nytt bygg, Vea barneskole - Stølshaugvegen
22.11.2022 Gnr. 4, bnr. 12 - Revidert landskapsplan
21.11.2022 Behandling av søknad om rammetillatelse for oppføring nybygg Vea barneskole satt i bero - Gnr. 4, bnr. 12
16.11.2022 Gnr. 4, bnr. 12 - Nye Veavågen skole, manglende svar på protest og manglende vurdering etter pbl 29.2 mm.
15.11.2022 Gnr. 4, bnr. 12 - Protest mot bygget og manglende vurdering
01.11.2022 Oversender søknad til uttalelse - Nytt bygg, Vea barneskole - gnr. 4, bnr. 12 - Stølshaugvegen
28.10.2022 Gnr. 4, bnr. 12 - Ettersending del 2 til rammesøknad for nye Veavågen barneskole
10.10.2022 Gnr. 4, bnr. 12 - Supplering av dokumentasjon
04.10.2022 Tilbakemelding om mangler - Nytt bygg, Vea barneskole - gnr. 4, bnr. 12 - Stølshaugvegen
30.09.2022 Gnr. 4, bnr. 12 - Nytt bygg, Vea barneskole - Stølshaugvegen
27.09.2022 gnr. 4, bnr. 12 - Merknad til nabovarsel
04.07.2022 gnr. 4, bnr. 12 - Vi innvilger søknaden om samtykke