NewConstruction Ferdigattest Offentlig

Ny brannstasjon i Storgata 1, Høyanger

📍 Storgata 1B , 6993 HØYANGER

Nøkkelinfo

Sakstype
Nybygg
Bygningstype
Offentlig
Bruksareal
650 m²
Kommune
Høyanger
Fylke
Vestland
Gnr / Bnr
59 / 39
Saksnummer
2025/4289
Fase
Ferdigattest

Om byggesaken

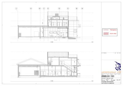
Ny brannstasjon på Storgata 1 i Høyanger med et samlet areal på ca. 650 m² i én etasje. Bygget inneholder vaskerom, garderober, dusjer, kontorer, verksted, tekniske rom, samt flere store vognshaller og tilbygg. Bygget har saltak med takmateriale av tegl og fasader i tre og betong. Det er én trapp i bygget, og flere dører fordelt på rommene. Bygget er tilrettelagt for brann- og redningstjenester med spesialrom for utstyr og kjøretøy. Prosjektet er ferdigstilt og har mottatt ferdigattest.

Produkter og materialer

Betong Betongkonstruksjoner

🧱 Betong

Betongfasader og konstruksjoner

Betongarbeid for fasader og bærende konstruksjoner

Tak Saltak med tegl

🧱 Tegl

Saltak med tegl som takmateriale

Taktekking for brannstasjonens saltak

Trapper Innvendig trapp

Antall: 1

Én innvendig trapp i bygget

Innvendig trapp for etasjeadkomst

Maling Innvendig og utvendig maling

Maling av fasader og innvendige flater

Grunnarbeid Fundament og grunnarbeid

Fundament og grunnarbeid for nybygg

Grunnarbeid for ny brannstasjon

Tømrer Tømrerarbeid i trefasader og innvendig

🧱 Tre

Tømrerarbeid for trefasader og innvendige konstruksjoner

Tømrerarbeid for fasader og innvendige elementer

VVS Rør- og sanitærinstallasjoner

Rør- og sanitærinstallasjoner utført av Caverion Norge AS

VVS-installasjoner for sanitær og tekniske funksjoner

Elektro Brannalarm og ledesystem

Brannalarm og ledesystem installert av Vestland Elektro og Rør AS

Elektriske installasjoner for brannalarm og ledelys

Ventilasjon Ventilasjons- og klimainstallasjoner

Ventilasjons- og klimainstallasjoner utført av Ivest Consult AS

Ventilasjons- og klimaanlegg for bygget

Annet FDV-dokumentasjon

FDV-dokumentasjon gjenstår i deler av prosjektet

Dokumentasjon for forvaltning, drift og vedlikehold

Dører Ytterdører og garasjeporter

Flere dører og garasjeporter fordelt på fasader og rom

Ytterdører og garasjeporter for adgang og kjøretøyinnkjøring

Fasade Fasade i tre og betong

🧱 Tre og betong

Fasader i tre og betong, saltak med tegl som takmateriale

Fasadematerialer for brannstasjonens yttervegger og tak

Gulv Gulvbelegg og fliser

Gulvbelegg i tekniske rom, garderober og fellesarealer

Fasader

Hovedbygg

Sør-vest
Materiale
Tre
Taktype
Saltak
Vinduer
6
Dører
1
Synlige etasjer
2
Sør-aust
Materiale
Tre
Taktype
Saltak
Takmat.
Tegl
Vinduer
6
Dører
2
Synlige etasjer
2
Nord-aust
Materiale
Betong
Taktype
Saltak
Takmat.
Tegl
Vinduer
1
Dører
1
Synlige etasjer
2
Nord-vest
Materiale
Betong
Taktype
Saltak
Takmat.
Tegl
Vinduer
4
Dører
2
Synlige etasjer
2

Hendelser

22.04.2026 Melding om vedtak - Storgata 1B Søknad om ferdigattest 59/39
14.04.2026 Storgata 1B Søknad om ferdigattest 59/39
19.11.2025 Melding om vedtak - Søknad om midlertidig, Storgata 1B brukstillatelse gbnr 59/39
07.11.2025 Søknad om midlertidig, Storgata 1B brukstillatelse gbnr 59/39