VerticalExtension Rammetillatelse Offentlig

Påbygg og bruksendring i barnehage på Høyåshei 6, Arendal

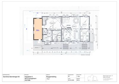
📍 Høyåshei 6 , 4812 KONGSHAVN

Nøkkelinfo

Sakstype
Påbygg
Bygningstype
Offentlig
Bruksareal
182 m²
Kommune
Arendal
Fylke
Agder
Gnr / Bnr
202 / 386
Saksnummer
2026/9366
Fase
Rammetillatelse

Om byggesaken

Ny påbygg på 18,1 m² over eksisterende bod i 1. etasje i Sandnes Barnehage på Høyåshei 6, Arendal, som skal benyttes som møterom. Eksisterende bod i 1. etasje bygges om til aktivitetsrom for barn. I tillegg forlenges eksisterende tak over inngangspartiet med ca. 3 meter for å dekke det nye påbygget. Bygningen er en offentlig barnehage med eksisterende bruksareal på 164,2 m², som økes til totalt 182,3 m². Tiltaket inkluderer endringer i fasade og tak, og påvirker ikke adkomst eller parkering.

Produkter og materialer

Grunnarbeid Fundamentering for påbygg

Fundamentering og tilpasning til eksisterende bygg

Grunnarbeid for nytt påbygg

Fasade Påbygg med møterom

🧱 Tre

Antall: 1

Påbygg på 18,1 m² med saltak, takvinkel 37-43 grader, tilpasset eksisterende bygg

Ny påbygg over eksisterende bod som skal benyttes som møterom

Isolasjon Isolasjon i påbygg og tak

🧱 Ikke spesifisert

Isolasjon iht. TEK-krav for ny bygningsdel

Isolasjon for termisk og lydmessig komfort

Tak Saltak

🧱 Taktekking ikke spesifisert

Antall: 1

Saltak med takvinkel mellom 37 og 43 grader, i tråd med reguleringsbestemmelser

Nytt tak på påbygg og forlengelse av eksisterende tak

Dører Innvendige og utvendige dører

🧱 Ikke spesifisert

Antall: 3

Dør til møterom, dør til aktivitetsrom, dør i forlengelse av takoverbygg

Dører til nye og ombygde rom

Ventilasjon Ventilasjon i påbygg og ombygde rom

Ventilasjonssystem tilpasset ny bruk av rommene

Ventilasjon for møterom og aktivitetsrom i barnehage

Fasade Forlengelse av eksisterende tak over inngangsparti

🧱 Tre

Antall: 1

Takforlengelse ca. 3 meter over inngangsparti, saltak med takvinkel 37-43 grader

Forlengelse av eksisterende saltak for å dekke nytt påbygg

Elektro Elektrisk installasjon i påbygg og ombygde rom

Belysning, stikkontakter og evt. tekniske installasjoner i møterom og aktivitetsrom

Elektriske installasjoner for nye og ombygde rom

Vinduer Fasadevindu i påbygg

🧱 Tre eller aluminium (ikke spesifisert)

Antall: 4

Vinduer i møterom påbygg, antall og plassering iht. tegninger

Nye vinduer i påbygg for naturlig lys

Bruksendring Ombygging av bod til aktivitetsrom

Antall: 1

Eksisterende bod i 1. etasje bygges om til aktivitetsrom for barn

Innvendig ombygging og tilpasning av romfunksjon

Maling Innvendig og utvendig maling

Overflatebehandling av nye og ombygde flater

Maling og overflatebehandling for ferdigstillelse

Tømrer Påbygg og takforlengelse

Tømrerarbeid for oppføring av påbygg og takforlengelse

Utførelse av bygningsmessige arbeider i tre

Fasader

Enebolig

Øst
Materiale
Tre
Taktype
Saltak
Takmat.
Tegl
Vinduer
4
Dører
0
Synlige etasjer
2
Vest
Materiale
Tre
Taktype
Saltak
Takmat.
Tegl
Vinduer
4
Dører
1
Synlige etasjer
2
Sør
Materiale
Tre
Taktype
Saltak
Takmat.
Tegl
Vinduer
6
Dører
1
Synlige etasjer
2
Nord
Materiale
Tre
Taktype
Saltak
Vinduer
5
Dører
1
Balkonger
1
Synlige etasjer
2

Hendelser

21.04.2026 Fakturagrunnlag
21.04.2026 Tillatelse til tiltak - 202/386 - Høyåshei 6 - bruksendring bod - påbygg med møterom - Sandnes barnehage
20.04.2026 202/386 - Vi innvilger søknaden om samtykke
20.04.2026 202/386 - Viser til tidligere korrespondanse i saken
10.04.2026 Tilbakemelding på suppleringer mottatt 08.04.2026 - 202/386 - Høyåshei 6 - bruksendring bod - påbygg med møterom - Sandnes barnehage
08.04.2026 202/386 - Tilbakemelding på mangelbrev
07.04.2026 Tilbakemelding på søknad - 202/386 - Høyåshei 6 - bruksendring bod - påbygg med møterom - Sandnes barnehage
24.03.2026 Høyåshei 6, melding om mottatt søknad
24.03.2026 DOK-analyse 23.03.2026
23.03.2026 Høyåshei 6 Søknad om tillatelse i ett trinn 202/386