VerticalExtension UnderBehandling Offentlig

Påbygg og uteområde med heis og rampe i Skanseveien 43, Blaker

📍 Skanseveien 27 , 1925 BLAKER

Nøkkelinfo

Sakstype
Påbygg
Bygningstype
Offentlig
Bruksareal
1,500 m²
Kommune
Lillestrøm
Fylke
Akershus
Gnr / Bnr
318 / 3
Saksnummer
25/15047
Fase
Under behandling

Om byggesaken

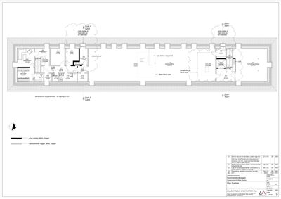
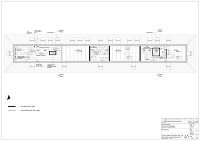
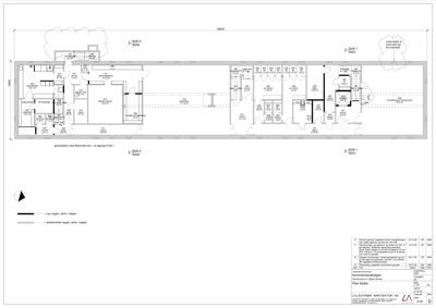
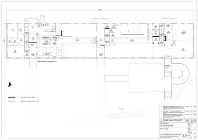
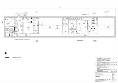
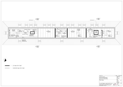
Prosjektet omfatter påbygg av heis med heissjakt, ny rettløpstrapp, rampe for universell utforming, og uteområde med terrasse ved Kommandantboligen i Skanseveien 43, Blaker. Bygget er et fredet offentlig bygg med 3 etasjer inkludert kjeller, og tiltaket inkluderer også innvendige ombygginger for tilpasning til ny bruk som serveringssted med storkjøkken, kafe, utstilling og formidling. Ny rampe og trapp er tilpasset eksisterende bygningsstil med natursteinsmur og skiferbelegg, og uteområdet får ny gangsti og terrasse i grus. Pipene på taket utvides og brukes til ventilasjonsutkast, og takvinduer bygges om til luftinntak med lameller. Brannsikkerhet er ivaretatt med brannkonsept, brannalarmanlegg, nødlys og rømningsveier. Tiltaket har fått dispensasjon fra fredningsbestemmelser for eksteriørendringer og uteområde, og prosjektering og ansvar er fordelt på arkitekt, brannteknisk rådgiver, konstruksjonsteknikk, geoteknikk og andre fag.

Produkter og materialer

Fasade Ventilasjonsrister i takvinduer

Antall: 2

Ventilasjonsrister spesialtilpasset som vinduer med lameller, vindusrammer beholdes som blindramme

Ombygging av takvinduer til luftinntak med lameller, tilpasset fredet fasade

Grunnarbeid Terrengjustering og gangstier

🧱 Naturstein, grus

Terrengjustering for å redusere høydeforskjell, ny gangsti mellom eksisterende stier, uteplass lagt jevnt med terreng

Grunnarbeider for uteområde, gangstier og terrengtilpasning for universell utforming

Heis Heis med heissjakt og maskinrom

Antall: 1

Heissjakt med brannmotstand EI 60, heisdør EI 90, røykventilasjon med røykluke eller avtrekksvifte

Ny heis med heissjakt og maskinrom, inkludert brannklassifiserte dører og røykventilasjon

Ventilasjon Nytt ventilasjonsanlegg med kanaler

Nye ventilasjonskanaler, inkludert avtrekk fra kjøkken i EI 30 A2-s1,d0, bypass på varmegjenvinner, røykdetektor i tilluft, brannspjeld EI 60 CS

Nytt ventilasjonsanlegg for hele bygget med brannsikringstiltak

Pipe Utvidede pipeløp

🧱 Teglstein eller teglfliser

Antall: 4

Nye piper med dobbelt bredde, utvendig murt opp tilsvarende eksisterende piper

Utvidelse og oppmuring av piper for ventilasjonsutkast og ildsteder

Brannvern Brannalarmanlegg kategori 2

Adresserbart brannalarmanlegg med optiske og akustiske alarmorganer, manuelle meldere, talevarsling, nødlys med 60 min driftstid

Brannalarmanlegg med tilhørende nødlys og ledesystem for sikker evakuering

Rekkverk Trapperekkverk utvendig

Rekkverk tilsvarende eksisterende på Kommandantboligen

Rekkverk på ny trapp og rampe i samsvar med eksisterende utførelse

Gulv Skiferbelegg ute

🧱 Skifer

Skiferbelegg på rampe og uteplass, tilpasset eksisterende materialbruk

Skifer som belegning på rampe og uteplass for estetisk og funksjonell tilpasning

Tømrer Innvendige ombygginger

Innvendige ombygginger i kjeller, 1. og 2. etasje, inkludert kjøkken, restaurant, barneområde, kafe, hybler og personalrom

Innvendige bygningsmessige arbeider for tilpasning til ny bruk og funksjoner

Trapper Rettløpstrapp utvendig

🧱 Betong kledd med naturstein, rekkverk tilsvarende eksisterende

Antall: 1

Ny rettløpstrapp med trinn som har samme opptrinn og inntrinn som eksisterende, rekkverk som eksisterende

Ny utvendig rettløpstrapp tilpasset universell utforming og fredet bygg

Terrasse Uteplass/terrasse med gruset overflate

🧱 Grus

Antall: 1

Ny terrasse jevnt med terreng, gruset overflate, tilpasset uteområde og universell utforming

Ny uteplass/terrasse sør for rampe, tilrettelagt for aktiviteter og servering

Hendelser

10.04.2026 25/15047-24 318/3 Dispensasjon fra forskrift om fredning av statens kulturhistoriske eiendommer
09.04.2026 25/15047-23 318/3 Oppsummering av telefonsamtale - Oppfølging
08.04.2026 25/15047-21 318/3 Supplering av søknad
25.03.2026 25/15047-20 318/3, Skanseveien 43, oppsummering av telefonsamtale 20.03.2026
20.03.2026 25/15047-19 318/3 Korrespondanse - Behandling av søknad - Oppdatert løsning med utvendig plass og rampeløsning for UU-tilpasning
04.03.2026 25/15047-18 318/3 Supplering av søknad
24.02.2026 25/15047-17 318/3 Supplering av søknad
24.02.2026 25/15047-16 318/3 Gjennomføringsplan
13.02.2026 25/15047-15 318/3/0/0 Skanseveien 43 - Blaker Skanse - Kommandantboligen - Rampe, trapp, uteområde og eksteriør - Bearbeidet løsning - Forhåndsvurdering
11.02.2026 25/15047-14 318/3 Søknad om dispensasjon
06.02.2026 25/15047-13 318/3 Supplering av søknad