Photo
Fotografi av en eksisterende bygning (Dale VGS) som er inkludert i en miljøkartleggingsrapport.
1 / 28
Rehabilitation
Unknown
Offentlig
Rehabilitering og takoverbygg av verkstadbygg Dale VGS
📍 64/1/4-1 , 6963 DALE I SUNNFJORD
Nøkkelinfo
- Sakstype
- Rehabilitering
- Bygningstype
- Offentlig
- Kommune
- Fjaler
- Fylke
- Vestland
- Gnr / Bnr
- 64 / 1
- Saksnummer
- 2025/981
- Fase
- Unknown
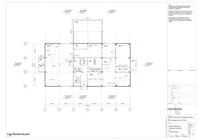
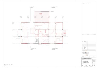
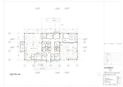
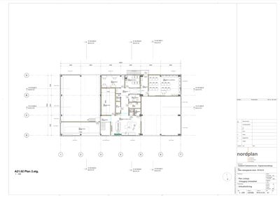
Om byggesaken
Prosjektet omfatter rehabilitering av eksisterende verkstadbygg ved Dale videregående skole, inkludert takoverbygg, fasadeendringer og omfattende installasjonsarbeid.
Fasader
Verkstadhall
Nord
- Materiale
- Betong
- Taktype
- Flatt tak
- Vinduer
- 10
- Dører
- 2
- Synlige etasjer
- 1
Sør
- Materiale
- Betong
- Taktype
- Flatt tak
- Vinduer
- 10
- Dører
- 2
- Synlige etasjer
- 1
Øst
- Materiale
- Betong
- Taktype
- Flatt tak
- Vinduer
- 10
- Dører
- 1
- Synlige etasjer
- 1
Vest
- Materiale
- Betong
- Taktype
- Flatt tak
- Vinduer
- 10
- Dører
- 1
- Synlige etasjer
- 1
Hendelser
21.04.2026
Takoverbygg - Verkstadbygg Dale VGS - gbnr 64/1/4
03.11.2025
Endring av ansvarsrettar - gbnr 64/1/4
17.10.2025
Søknad om endring av gitt løyve eller godkjenning - gbnr 64/1/4
09.09.2025
Igangsettingsløyve del 2 - gnr 64 bnr 1 - Jarstadvegen 28A - Rehabilitering av verkstad-/undervisningsbygg Dale vgs
28.08.2025
Søknad om igangsettingstillatelse 64/1 - rehabilitering av verkstadbygg - gbnr 64/1/4
17.07.2025
Igangsettingsløyve del 1 - gnr 64 bnr 1 - Jarstadvegen 28A - Rehabilitering av verkstadbygg
15.07.2025
Innvilga søknad om samtykke, med vilkår - gbnr 64/1/4 - Jarstadvegen 28A
11.07.2025
Rammeløyve - gnr 64 bnr 1 - Jarstadvegen 28A - Rehabilitering av verkstadbygg
11.07.2025
Jarstadvegen Søknad om igangsettingstillatelse 64/1
27.06.2025
Jarstadvegen Søknad om rammetillatelse 64/1