Rehabilitation Soeknad Offentlig

Innvendig rehabilitering og ombygging av Seiersten skole, Belsjøveien 1

📍 Belsjøveien 1 , 1443 DRØBAK

Nøkkelinfo

Sakstype
Rehabilitering
Bygningstype
Offentlig
Bruksareal
1,245 m²
Kommune
Frogn
Fylke
Akershus
Gnr / Bnr
70 / 36
Saksnummer
26/10633
Fase
Søknad

Om byggesaken

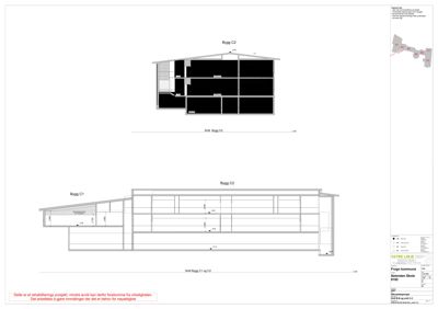
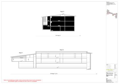
Omfattende innvendig rehabilitering og ombygging av Seiersten skole i Belsjøveien 1, Drøbak, med endringer i bærekonstruksjoner og brannskiller. Prosjektet omfatter riving av deler av etasjer, etablering av ny intern forbindelse mellom bygningsdeler, omdisponering av rom til kontorer, møterom og garderober, samt tilpasning til dagens krav til arbeidsmiljø og intern kommunikasjon. Byggets fotavtrykk, volum og hovedutforming opprettholdes, og det gjøres kun mindre fasadeendringer. Brannkonseptet oppgraderes med nye brannceller, brannalarmanlegg kategori 2, høytsittende ledesystem og branntekniske tiltak i henhold til TEK17. Ventilasjon og inneklima tilpasses nye planløsninger. Bygget har tre etasjer med totalt ca. 1245 m² areal i 1. etasje som hovedområde for tiltakene.

Produkter og materialer

Grunnarbeid Ingen endringer i grunnarbeid

Ingen endringer i grunnarbeid eller fundamentering

Eksisterende grunn og fundament beholdes

Tømrer Innvendige trapper

Antall: 1

Eksisterende trapper opprettholdes, røykventilasjon med luke eller vindu i trapperom

Trapper i skolebygget med røykventilasjon

Gulv Overflater og kledning

🧱 B-s1,d0 / K210 A2-s1,d0 brannklassifiserte materialer

Brannklassifiserte overflater og kledning i rømningsveier og toaletter

Brannteknisk tilpasning av overflater i rehabiliteringsprosjektet

Sanitær Toaletter og garderober

Oppgradering og etablering av toaletter og garderober, inkludert to toaletter i rømningsvei med brannkrav B-s1,d0 / K210 A2-s1,d0

Sanitærinstallasjoner i rehabiliteringsprosjektet

Vinduer Brannklassifiserte vinduer

Vinduer i branncellebegrensende vegger med brannmotstand EI 30 eller EI 60, ikke åpne i vanlig bruk

Vinduer tilpasset brannkrav i rehabiliteringsprosjektet

Miljøsanering Miljøsanering og avfallshåndtering

Miljøsanering i forbindelse med riving og rehabilitering

Sikring og håndtering av miljøfarlige stoffer under byggearbeid

Brannvern Brannalarmanlegg kategori 2

Heldekkende brannalarmanlegg med optiske røykdetektorer, alarmoverføring til 110-sentral, batteribackup 60 min

Oppgradering og tilpasning av brannalarmanlegg i skolebygget

Tømrer Innvendige bærekonstruksjoner og vegger

🧱 Betong, tegl, gipsplater

Tilpasning og oppføring av nye bærekonstruksjoner og branncellevegger med EI 60 og EI 30 krav

Oppgradering og endring av bæresystem og brannskiller i skolebygget

Ventilasjon Ventilasjons- og klimainstallasjoner

Tilpasning av eksisterende ventilasjonsanlegg til nye planløsninger, kanaler i A2-s1,d0 materiale, branntetting av sjakter

Ventilasjonsanlegg tilpasset rehabilitering og inneklimakrav

Riving Riving av etasje og innvendige konstruksjoner

Riving av deler av 1. og 2. etasje og underetasje i eksisterende skolebygg, inkludert bærekonstruksjoner og brannskiller

Omfatter riving av utvalgte konstruksjoner i flere etasjer som del av rehabilitering

Dører Brann- og røykdører

Dører med brannmotstand EI 30 og EI 60, røyktette, selvlukkende med dørpumpe og automatisk lukking ved brannalarm

Brannklassifiserte dører i branncellebegrensende vegger og rømningsveier

Brannvern Ledesystem høytsittende

Høytsittende elektrisk ledesystem i rømningsveier, med markeringslys over utganger og ved retningsendringer

Helhetlig ledesystem for rømningsveier i hele bygget

Hendelser

21.04.2026 26/10633-1 Søknad om tillatelse i ett trinn - 70/36/0/0 - Belsjøveien 1 - Seiersten - Endring av bygg - Innvendig - Bærekonstruksjoner - Brannskille - Riving av bygg