Rehabilitation UnderBehandling Offentlig

Oppgradering og rehabilitering av Ulriken skole, Landåsveien 31B, Bergen

📍 Landåsveien 31A , 5097 BERGEN

Nøkkelinfo

Sakstype
Rehabilitering
Bygningstype
Offentlig
Kommune
Bergen
Fylke
Vestland
Gnr / Bnr
161 / 763
Saksnummer
BYGG-2025/12949
Fase
Under behandling

Om byggesaken

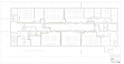
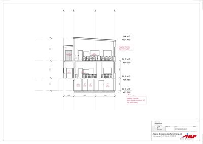
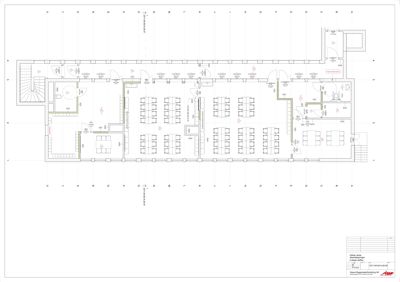
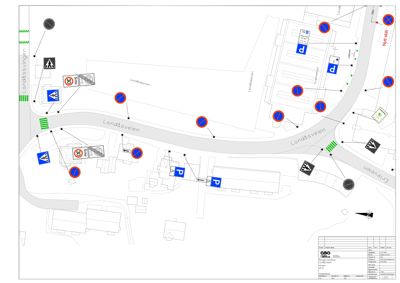
Oppgradering og rehabilitering av Ulriken skole i Landåsveien 31B omfatter flere eksisterende fløyer (vest-, øst- og nordbygg) som skal tilpasses midlertidig avlastningsskolebruk. Prosjektet inkluderer innvendige ombygginger med endret planløsning, etablering av brann- og lydkonstruksjoner, utskifting av fem vinduer og etablering av en ny rømningsdør i vestbyggets østfasade. Tekniske installasjoner som luftbehandlingsanlegg, sprinkleranlegg, brannalarm, nødlys, sanitærinstallasjoner, varme- og kuldeinstallasjoner inngår. Utomhusanlegget oppgraderes med nye lekeapparater, lekearealer og avsetningslomme for HC. Det etableres også nye busslommer i Erleveien for elevtransport. Ombruk av eksisterende materialer og konstruksjoner prioriteres for å minimere ombygging. Prosjektet har ansvarlige aktører for arkitektur, tekniske fag og kontroll, og er under behandling med tillatelse gitt.

Produkter og materialer

Terrasse Utomhusanlegg

Oppgradering av utomhusanlegg med nye lekeapparater, lekearealer, benker, gjerder og natursteinsmur

Utomhusanlegg for skolegård og lekearealer

VVS Sanitærinstallasjoner

Oppgradering og reparasjon av sanitærinstallasjoner

Sanitærinstallasjoner for skolebygg

Annet Avfallshåndtering

Antall: 4

Plass til 4 stk avfallskontainere på nordsiden mot Landåsveien

Avfallshåndtering og renovasjonssystem

Grunnarbeid Busslommer og parkeringsregulering

Antall: 2

Etablering av nye busslommer i Erleveien for elevtransport, samt HC-avsetningslomme i Landåsveien

Trafikktilrettelegging for skolebuss

Elektro Brannalarmanlegg

Installasjon av brannalarmanlegg

Brannalarm for sikkerhet i skolebygget

Ventilasjon Luftbehandlingsanlegg

Oppgradering av ventilasjon og klimainstallasjoner

Luftbehandlingsanlegg for inneklima

Mur Brann- og lydkonstruksjoner

Etablering av brann- og lydskillevegger innvendig

Brann- og lydisolering i eksisterende bygg

Tak Saltak

Eksisterende saltak på sørfasade, ingen endring

Eksisterende takkonstruksjon beholdes

VVS Varme- og kuldeinstallasjoner

Oppgradering av varme- og kuldeinstallasjoner, vannbåren radiator, elektrisitet som energiforsyning

Varme- og kuldeinstallasjoner for inneklima

Fasade Fasadeoppgradering

Ingen volum- eller fasadeendringer, bevaring av arkitektoniske kvaliteter

Oppgradering uten endring av fasadeuttrykk

Dører Rømningsdør

Antall: 1

Ny rømningsdør i vestbyggets østfasade

Rømningsdør for sikkerhet og rømningsvei

VVS Sprinkleranlegg

Utviding av eksisterende sprinkleranlegg med tilbakeslagssikring kategori 4

Brannslukkingsanlegg i skolebygget

Tømrer Innvendig ombygging

🧱 Trekonstruksjoner

Ombygging og montering av trekonstruksjoner innvendig, flytting av lettvegger

Innvendige ombygginger for ny planløsning og brannskiller

Elektro Ledesystem (nødlys)

Installasjon av nødlys og ledesystem

Nødlys for rømningsveier

Vinduer Fasadevindu

Antall: 5

Utskifting av 5 vinduer i vestbyggets østfasade pga krav om brannsikkerhet

Fasadevindu for utskifting i eksisterende skolebygg

Fasader

Vestbygg

Øst
Vinduer
24
Dører
3
Synlige etasjer
2
Sør
Taktype
Saltak
Vinduer
10
Dører
1
Synlige etasjer
3

Hendelser

13.04.2026 Landåsveien 31B Søknad om ferdigattest 161/763
24.03.2026 Mangler ved søknad om MB - 161/763/0/0 Landåsveien 31B, oppgradering av Ulriken skole til midlertidig avlastningsskole 161/763/0/0 Landåsveien 31B, oppgradering av Ulriken skole til midlertidig avlastningsskole
11.03.2026 Landåsveien 31B Søknad om midlertidig brukstillatelse 161/763
23.05.2025 Fakturagrunnlag
23.05.2025 Ubw ordre 20670163
16.05.2025 Kommentar i sak- 161/763/0/0 Landåsveien 31B, oppgradering av Ulriken skole til midlertidig avlastningsskole
15.05.2025 Tillatelse til tiltak 161/763 Landåsveien 31B
14.05.2025 Tilleggsopplysninger - 161/763/0/0 Landåsveien 31B, oppgradering av Ulriken skole til midlertidig avlastningsskole
14.05.2025 Tilbakemelding i sak- 161/763/0/0 Landåsveien 31B, oppgradering av Ulriken skole til midlertidig avlastningsskole
13.05.2025 Behov for tilleggsopplysninger - 161/763/0/0 Landåsveien 31B, oppgradering av Ulriken skole til midlertidig avlastningsskole
13.05.2025 Tilleggsopplysninger - 161/763/0/0 Landåsveien 31B, oppgradering av Ulriken skole til midlertidig avlastningsskole
12.05.2025 Behov for tilleggsopplysninger
08.05.2025 Landåsveien 31B Søknad om tillatelse i ett trinn 161/763