Rehabilitation UnderBehandling Offentlig

Rehabilitering og bruksendring av Gamle Mesterfjellet skole, Larvik

Nøkkelinfo

Sakstype
Rehabilitering
Bygningstype
Offentlig
Bruksareal
2,663 m²
Kommune
Larvik
Fylke
Vestfold
Gnr / Bnr
22 / 5599
Saksnummer
2025/14387
Fase
Under behandling

Om byggesaken

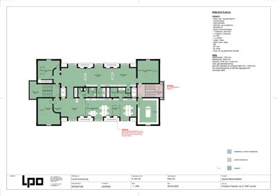
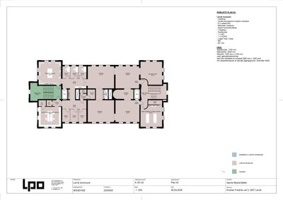
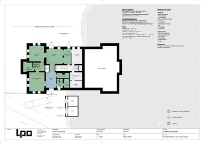
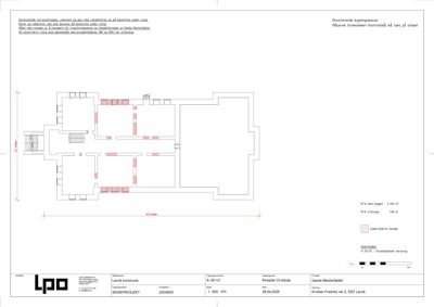
Gamle Mesterfjellet skole, opprinnelig oppført i 1918 med et tilbygg fra 1962 som rives, gjennomgår en omfattende rehabilitering og bruksendring til kontorlokaler, kantine/kafé, museumslokaler og verksteder for Larvik museum og Friskliv og Mestring. Den eldre delen av bygget med massiv teglkonstruksjon og pusset fasade bevares og tilbakeføres med nye replika vinduer og dører i tre, samt nytt skifertak med kobberbeslag og varmekabler. Bygget får nye tekniske installasjoner inkludert ventilasjon med varmegjenvinning, elkraft, sanitær, brannvern, automatisering og to heiser tilpasset funksjonshemmede. Innvendige overflater inkluderer linoleum, terrazzo, gjenbrukstegl, fliser og tregulv, med akustiske himlinger og lydkrav i henhold til NS 8175 klasse C. Uteområdene tilpasses den historiske barokkhagen med bruk av lokale og gjenbrukte materialer som larvikitt, teglstein og skifer. Prosjektet legger vekt på universell utforming, miljøhensyn, høy materialkvalitet, sikkerhet med detaljert SHA-plan og krav til lærlinger. Energioppfyllelse krever dispensasjon på grunn av byggets vernestatus og bygningsfysiske begrensninger.

Produkter og materialer

Dører Replika tredører i heltre eik med glassfelt

🧱 Heltre eik

Antall: 5

Oljet overflate, trådglass herdet/laminert, FG-godkjent lås klasse C4-C5, magnetlås på rømningsdører, bredde for universell tilgjengelighet

Nye replika ytterdører i heltre eik med glassfelt og sikkerhetslås

Tak Nytt skifertak med kobberbeslag

🧱 Skifer og kobber

Antall: 660

Tidstypisk utførelse, mulighet for gjenbruk av skifer, takrenner og nedløp med varmekabler, snøfangere med netting

Nytt skifertak tilbakeført til original utførelse med kobberbeslag og varmekabler

Himling Akustiske systemhimlinger klasse A

🧱 Mineralull, Rockfon

T-profil, A15 kant, format 60x60 cm, hygienehimling i kjøkken og avfallsrom

Akustiske himlinger for lydabsorpsjon og hygiene

Innvendig vegg Plassbygde lettvegger og systemvegger med glassfelt

🧱 Tre, gips, mineralull, glass, aluminium

Bindingsverk, isolasjon, gipsplater, spikerslag, hjørnebeskyttelse i rustfritt stål, laminert glass i møterom, lakkerte aluminiumsprofiler

Innvendige vegger tilpasset kontorlandskap og møterom med lyd- og brannkrav

Tele IKT-kabling kategori 6A UTP og fiberinfrastruktur

🧱 Cat6 UTP kabler, fiberkabel singelmodus 9/125

Fiber G24 OS2 9/125 µm, dataskap 42U 800x800x2000mm, IP-basert porttelefon, FG-godkjent utstyr, integrasjon med SD-anlegg

Nye tele- og datainstallasjoner med høy kapasitet og sikkerhet

Brannvern Fullsprinkling og brannalarmsystem

FG-godkjent sprinkleranlegg iht NS-EN 12845, brannalarm kategori 2 med automatisk alarmoverføring, inert gass slokkeanlegg i sensitive rom

Brannsikring med sprinkling og avansert alarmsystem

Utendørs Beplantning og opparbeidelse med gjenbrukte materialer

🧱 Larvikitt, teglstein, skifer

Gjenbruk i fasade, belegningsstein, sittebenker og beplantningskasser

Uteområder tilpasset historisk barokkhage med lokale og gjenbrukte materialer

Sanitær Nye sanitærinstallasjoner med rør-i-rør system

Legionellasikring, avstengningsventiler, lekkasjevarsling, frostsikring av taksluk, berøringsfrie armaturer

Oppgradering av sanitæranlegg med moderne sikkerhets- og miljøkrav

Kjøkken Komplett kjøkkeninnredning i rustfritt stål

🧱 Rustfritt stål

Antall: 2

Rustfri benkeplate, Grohe K-serien armatur, oppvaskmaskin klasse A, lekkasjedeteksjon, plass for kaffeautomater

Nye kjøkkenløsninger i plan 01 og kjeller med moderne utstyr

Gulv Fotskraperister og innvendige skrapematter

🧱 Varmgalvanisert stål og gummimatter

2 meter lengde, seksjonert for enkel rengjøring

Skrapematter ved inngangspartier og kjøkkeninngang

Elkraft Hovedfordeling og underfordelinger

🧱 Stålplatekapslet utførelse, kobber, aluminium

Ny hovedfordeling i U-etasje, kursopplegg for lys og stikk, jordfeilvarsler, IP44 i tekniske rom, separate kurser for lys og stikk, LED-belysning med dimming og nødlys

Oppgradering av elkraftinstallasjoner med moderne styring og sikkerhet

Trapper Innvendige trapper i betong med terrazzo

🧱 Betong, terrazzo, stål

Antall: 2

Slipt betong eller terrazzo, vannbestandige og slitesterke, utvendige trapper med vedlikeholdsfritt rekkverk

Rehabilitering og oppgradering av trapper i bygget

Gulv Linoleum, terrazzo, gjenbrukstegl, fliser og tregulv

🧱 Linoleum, terrazzo, tegl, flis, tre

Forbo Marmoleum 3421 oyster mountain, Vitra 10x10 fliser, Respo terrazzo, trinnlyddemping ΔLw ≥ 10-14 dB, elastisk fugemasse, sklisikker vinyl i våtrom

Gulvbelegg i ulike materialer tilpasset romfunksjon og lydkrav

Fasade Pusset fasade med kalkmaling

🧱 Puss på tegl, kalkmaling

Fjerning av sementpuss, bruk av NHL 3,5 og NHL 2 kalkmørtel, pigmentert kalkvann, kvadersteinsimitasjoner i hjørner

Pusset fasade tilbakeført til original utførelse med kalkmaling og dekor

Solceller Markisoletter for solskjerming

🧱 Markisolett med duk

Sylindriske kasser, RAL-lakkert, farge på duk avklares med arkitekt

Solskjerming med markisoletter på sydøst og sydvest fasader

Ventilasjon Ventilasjonsaggregater med roterende varmegjenvinner

Antall: 2

Temperaturvirkningsgrad over 85%, SFP-faktor 1,5 kW/(m3/s), behovsstyrt ventilasjon DCV/VAV, spesialavtrekk i verksteder og kjøkken

Nye ventilasjonsanlegg med varmegjenvinning og behovsstyring

Heis Vare/person/båreheis CE-merket

🧱 Rustfritt stål, elektronikk

Antall: 2

Kupestørrelse minst 1100x2100x2200 mm, lasteevne 1000 kg, hastighet 1 m/s, automatisk kjøring ved brannalarm, tilpasset funksjonshemmede

To heiser med høy kapasitet og sikkerhetsfunksjoner

Radiator Eksisterende radiatorer type T1 og T2

🧱 Stål

Antall: 40

Vegghengt og gulvstående, bevares og gjenbrukes

Bevaring av eksisterende radiatorer i rehabiliteringen

Vinduer Replika malte trevinduer

🧱 Tre

Antall: 67

Utadslående, smale sprosser, kittfals på utvendig side, linoljemaling NCS 7020-Y40R, U-verdi 0.8-1.0 W/m²K, lydkrav iht. akustikkrapport

Nye replika vinduer i tre med original oppdeling og lydkrav, malt med linoljemaling

Fasader

Hovedbygg

Vest
Taktype
Saltak
Vinduer
27
Dører
1
Synlige etasjer
3

Gamle Mesterfjellet

Sør
Materiale
Mur
Taktype
Saltak
Vinduer
12
Dører
1
Synlige etasjer
3

Hendelser

20.04.2026 04170 - Rehabilitering Gamle Mesterfjellet skole - 22/5599 - FASE 2
20.04.2026 Tildelingsvedtak - 04170 - Rehabilitering Gamle Mesterfjellet skole - 22/5599 - FASE 2
20.04.2026 04170 - Rehabilitering Gamle Mesterfjellet skole - 22/5599 - FASE 2
20.04.2026 04170 - Rehabilitering Gamle Mesterfjellet skole - 22/5599 - FASE 2
20.04.2026 04170 - Rehabilitering Gamle Mesterfjellet skole - 22/5599 - FASE 2
15.04.2026 Melding til leverandør - Re: Re: Re: Svar på skriftlig forhandling
14.04.2026 Melding til leverandør - Re: Svar på skriftlig forhandling
14.04.2026 Melding til leverandør - Fremdrift konkurranse
27.03.2026 Melding til leverandør - Re: Re: Invitasjon til forhandlingsrunde 1 - 04170 Rehabilitering Gamle Mesterfjellet skole
23.03.2026 Melding til leverandør - Invitasjon til forhandlingsrunde 1 - 04170 Rehabilitering Gamle Mesterfjellet skole
23.03.2026 Melding til leverandør - Innkalling til forhandlingsrunde 1 - 04170 Rehabilitering Gamle Mesterfjellet skole
23.03.2026 Melding til leverandør - Innkalling til forhandlingsrunde 1 - 04170 Rehabilitering Gamle Mesterfjellet skole
23.03.2026 Melding til leverandør - Innkalling til forhandlingsrunde 1 - 04170 Rehabilitering Gamle Mesterfjellet skole
23.03.2026 Melding til leverandør - Innkalling til forhandlingsrunde 1 - 04170 Rehabilitering Gamle Mesterfjellet skole
12.03.2026 Melding til leverandør - Fremdrift i anbudsprosessen
02.03.2026 Melding til leverandør - Tilbud
12.02.2026 Kunngjøring - 04170 - Rehabilitering Gamle Mesterfjellet skole - 22/5599 - FASE 2
12.02.2026 Melding til leverandør - Spørsmål
12.02.2026 Tilleggsinformasjon - Spørsmål 90 og 91 til konkurransen - 04170 Gamle Mesterfjellet skole
11.02.2026 Tilleggsinformasjon - Spørsmål 89 med svar til konkurransen - 04170 Gamle Mesterfjellet skole
06.02.2026 Tilleggsinformasjon - Spørsmål 82 - 87 med svar til konkurransen - 04170 Gamle Mesterfjellet skole
06.02.2026 Tilleggsinformasjon - Spørsmål 88, korrigering av svar spm.85 og oppfølgingsspørsmål med svar til konkurranesen - 04170 Gamle Mesterfjellet skole
06.02.2026 Kunngjøring - 04170 - Rehabilitering Gamle Mesterfjellet skole - 22/5599 - FASE 2
02.02.2026 Tilleggsinformasjon - Spørsmål 73 -81 med svar til konkurransen - 04170 Gamle Mesterfjellet skole
27.01.2026 Melding til leverandør - Befaring av bygget
26.01.2026 Kunngjøring - 04170 - Rehabilitering Gamle Mesterfjellet skole - 22/5599 - FASE 2
26.01.2026 Melding til leverandør - Befaring av bygget
26.01.2026 Kunngjøring - 04170 - Rehabilitering Gamle Mesterfjellet skole - 22/5599 - FASE 2
26.01.2026 Melding til leverandør - Befaring av bygget
19.01.2026 Melding til leverandør - Befaring
19.01.2026 Melding til leverandør - Befaring
15.01.2026 Melding til leverandør - Befaring
14.01.2026 Melding til leverandør - Befaring
13.01.2026 Melding til leverandør - Befaring
12.01.2026 Melding til leverandør - Befaring
09.01.2026 Tilleggsinformasjon - Spørsmål 71 og 72 med svar til konkurransen - 04170 Gamle Mesterfjellet skole
22.12.2025 Tilleggsinformasjon - Oppdatert svar på spørsmål 7-28- og spørsmål 67-70
22.12.2025 Kunngjøring - 04170 - Rehabilitering Gamle Mesterfjellet skole - 22/5599 - FASE 2
22.12.2025 Melding til leverandør - Felles befaring 22.12.25, kl. 10
19.12.2025 Melding fra leverandør - Tilbakemelding Tilbud
19.12.2025 Melding fra leverandør - Befaring
19.12.2025 Melding fra leverandør -Befaring
19.12.2025 Melding fra leverandør - Befaring
19.12.2025 Melding fra leverandør - befaring
18.12.2025 Melding fra leverandør - Gjenbruk av radiatorer
18.12.2025 Melding fra leverandør - 2.3 32 Varme
18.12.2025 Melding fra leverandør - 2.7 37 Komfortkjøling
18.12.2025 Melding til leverandør - Tilbakemelding Tilbud
18.12.2025 Melding fra leverandør - 2.4 33 Brannslokking
18.12.2025 Tilleggsinformasjon - Spørsmål 40-66 med svar til konkurransen - 04170 Gamle Mesterfjellet skole
18.12.2025 Kunngjøring - 04170 - Rehabilitering Gamle Mesterfjellet skole - 22/5599 - FASE 2
17.12.2025 Melding til leverandør - Befaring
17.12.2025 Kunngjøring - 04170 - Rehabilitering Gamle Mesterfjellet skole - 22/5599 - FASE 2
17.12.2025 Melding til leverandør - Befaring
17.12.2025 Tilleggsinformasjon - Spørsmål 31-39 i konkurransen med svar 04170 Gamle mesterfjellet skole
17.12.2025 Tilleggsinformasjon - Spørsmål 30 med svar til konkurransen
17.12.2025 Melding til leverandør - Befaring
17.12.2025 Kunngjøring - 04170 - Rehabilitering Gamle Mesterfjellet skole - 22/5599 - FASE 2
16.12.2025 Melding til leverandør - Befaring
15.12.2025 Melding fra leverandør - Spørsmål etter befaring på Mesterfjellet skole
12.12.2025 Melding fra leverandør - Miljøkartleggingsrapport
12.12.2025 Melding fra leverandør - Ombruk
12.12.2025 Melding fra leverandør - Svar - Befaring
12.12.2025 Melding fra leverandør - Forlenge innleveringen til 23.01.2026
12.12.2025 Melding fra leverandør - Svar på spørsmål rev 4
12.12.2025 Melding fra leverandør - Dagens runde med sprøsmål
12.12.2025 Melding fra leverandør - Befaring
12.12.2025 Melding fra leverandør - Lydkrav
12.12.2025 Melding fra leverandør - Befaring
12.12.2025 Melding fra leverandør - Himlingsplaner
12.12.2025 Melding fra leverandør - Tegning (akustikk & skisse)
12.12.2025 Melding fra leverandør - Tiltaksgrense LARK
11.12.2025 Melding til leverandør - Befaring
11.12.2025 Melding til leverandør -Befaring
11.12.2025 Kunngjøring - 04170 - Rehabilitering Gamle Mesterfjellet skole - 22/5599 - FASE 2
09.12.2025 Kunngjøring - 04170 - Rehabilitering Gamle Mesterfjellet skole - 22/5599 - FASE 2
09.12.2025 Melding fra leverandør - Spørsmål
08.12.2025 Tilleggsinformasjon - Spørsmål 7-29 i konkurransen med svar - 04170 Gamle Mestfjellet skole
02.12.2025 Tilleggsinformasjon - Referat fra Anbudsbefaringen 25.11.2025
02.12.2025 Melding fra leverandør - Ventilasjon
02.12.2025 Melding fra leverandør - Oppdatert brannkonsept
02.12.2025 Melding fra leverandør - Geoteknisk prosjektering
01.12.2025 Melding til leverandør - Oppdatert brannkonsept
01.12.2025 Melding fra leverandør - Teknisk beskrivelse
01.12.2025 Kunngjøring - 04170 - Rehabilitering Gamle Mesterfjellet skole - 22/5599 - FASE 2
01.12.2025 Tilleggsinformasjon - Spørsmål 5 og 6 med svar til konkurransen - 04170 Gamle Mesterfjellet skole
01.12.2025 Melding fra leverandør - Brannalarmering
26.11.2025 Tilleggsinformasjon - Spørsmål 3 og 4 med svar til konkurransen - 04170 Gamle Mesterfjellet skole
26.11.2025 Kunngjøring - 04170 - Rehabilitering Gamle Mesterfjellet skole - 22/5599 - FASE 2
25.11.2025 Kunngjøring - 04170 - Rehabilitering Gamle Mesterfjellet skole - 22/5599 - FASE 2
25.11.2025 Melding til leverandør - Teknisk beskrivelse
25.11.2025 Melding fra leverandør - Fristforlengelse
25.11.2025 Melding fra leverandør - IFC modell
24.11.2025 Kunngjøring - 04170 - Rehabilitering Gamle Mesterfjellet skole - 22/5599 - FASE 2
24.11.2025 Tilleggsinformasjon - Spørsmål 1 og 2 med svar til konkurransen - 04170 Gamle Mesterfjellet skole
17.11.2025 Kunngjøring - 04170 - Rehabilitering Gamle Mesterfjellet skole - 22/5599 - FASE 2
06.11.2025 Kunngjøring - 04170 - Rehabilitering Gamle Mesterfjellet skole - 22/5599 - FASE 2
03.10.2025 Kunngjøring - 04170 - Rehabilitering Gamle Mesterfjellet skole - 22/5599 - FASE 2