Rehabilitation Soeknad Offentlig

Ombygging av Skånevik omsorgssenter, Skånevikvegen 61

📍 Skånevikvegen 61 , 5593 SKÅNEVIK

Nøkkelinfo

Sakstype
Rehabilitering
Bygningstype
Offentlig
Bruksareal
471 m²
Boenheter
8
Kommune
Etne
Fylke
Vestland
Gnr / Bnr
131 / 117
Saksnummer
2026/1978
Fase
Søknad

Om byggesaken

Ombygging og rehabilitering av Skånevik omsorgssenter "Tusenfryd" som består av 8 leiligheter med svalgang. Prosjektet inkluderer riving av innervegger og ny innvendig oppbygging i henhold til Husbankens krav. Eksisterende verandaer i 1. og 2. etasje bygges inn, og det etableres nye balkonger på vestfasaden i 1. og 2. etasje. Det bygges også ny branntrapp tilknyttet svalgangene i øst. Nye vinduer og dører med brannsikring installeres. Bygget har tre etasjer med treverk som fasademateriale og saltak. Arealet utvides noe ved balkongene, og det gjøres strukturelle endringer som flytting av vegger og nye søyler. Det er ingen vesentlige inngrep i grunnmuren eller terreng.

Produkter og materialer

Tømrer Innvendige vegger og himlinger

🧱 Tre og gips

Riving av innervegger og ny oppbygging i henhold til Husbankens krav

Innvendig ombygging med nye vegger og himlinger

Maling Innvendig og utvendig maling

Maling av nye og eksisterende overflater etter ombygging

Maling av fasade, balkonger og innvendige flater

Elektro Nye elektriske installasjoner

Nye elektriske anlegg i leiligheter og fellesarealer, inkludert brannsikring

Elektriske installasjoner for leiligheter og fellesområder

Trapper Branntrapp og innvendig trapp/heis

🧱 Stål og betong

Antall: 2

Ny branntrapp tilknyttet svalgang i øst, samt eksisterende innvendig trapp/heis oppgradert

Ny utvendig branntrapp og oppgradering av innvendig trapp/heis

Fasade Trepanel kledning

🧱 Tre

Eksisterende trepanel fasade opprettholdes med nødvendige reparasjoner og tilpasninger ved balkongutvidelser

Trepanel fasade med nye balkonger på vestfasade

Gulv Nye gulvbelegg

Nye gulv i leiligheter, sannsynligvis parkett eller fliser på bad

Gulvbelegg i leiligheter og fellesarealer

Ventilasjon Private ventilasjonsanlegg til hver leilighet

Antall: 8

Nye private ventilasjonsanlegg til hver leilighet, uten endring av eksisterende fellesanlegg

Ventilasjonsanlegg for hver leilighet

VVS Nye sanitærinstallasjoner

Oppgradering av bad med nye sanitærinstallasjoner i 8 leiligheter

Nye bad med sanitærutstyr og rørinstallasjoner

Isolasjon Termisk og lydisolasjon

🧱 Mineralull eller tilsvarende

Isolasjon i nye vegger og tak for å oppfylle krav til brann og lyd

Isolasjon i vegger og tak ved ombygging

Grunnarbeid Terrasse og balkongfundament

Fundamentering for nye balkonger og terrasseutvidelser på vestfasade

Grunnarbeid for balkonger og terrasseutvidelser

Vinduer Brannsikrede vinduer

🧱 Tre med brannsikring

Antall: 19

Nye vinduer med brannsikring, ulike størrelser, inkludert Velux takvinduer (FK06 nevnt i tegninger)

Nye brannsikrede vinduer til erstatning og utvidelse av eksisterende vinduer i omsorgssenteret

Balkong Hengende balkonger

🧱 Tre og stål

Antall: 6

Nye balkonger hengt utenpå fasaden i 1. og 2. etasje på vestfasade, størrelser ca. 4-8,9 m²

Nye balkonger på vestfasade for leiligheter

Betong Fundament og søyler

🧱 Betong

Nye søyler og dragere i limtre og betong for balkonger og bærende konstruksjoner

Nye bærende søyler og dragere for balkonger og innvendige veggflyttinger

Dører Brannsikrede ytterdører og balkongdører

🧱 Tre med brannsikring

Antall: 14

Nye brannsikrede dører til leiligheter og balkonger, inkludert dører til ny branntrapp

Nye brannsikrede dører for leiligheter, balkonger og branntrapp

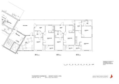
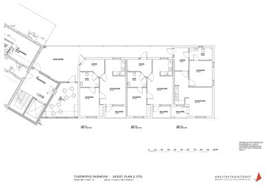
Plantegning

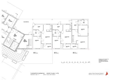
Enebolig 471.4 m²

Etasje 2 164.6 m²

Rom Areal Vinduer Dører
Avlastning 210 23.0 m² 1 1
Trapp/Heis 211 24.6 m² 0 1
Personalrom 212 21.0 m² 0 1
Svalgang 101 0.0 m² 0 0
Entre 102 7.1 m² 0 1
Bad 103 6.3 m² 0 1
Stove/Kjøk 104 24.5 m² 0 1
Soverom 105 13.7 m² 0 1
Balkong 106 5.3 m² 0 1
Entre 201 7.5 m² 0 1
Bad 202 6.3 m² 0 1
Stove/Kjøk 203 24.5 m² 0 1
Soverom 204 13.7 m² 0 1
Balkong 205 4.6 m² 0 1
Entre 301 7.4 m² 0 1
Bad 302 6.5 m² 0 1
Soverom 303 13.8 m² 0 1
Stove/Kjøk 304 26.3 m² 0 1
Balkong 305 4.1 m² 0 1
Entre 311 7.3 m² 0 1
Stove/Kjøk 312 25.0 m² 1 1
Soverom 313 22.2 m² 1 1
Bad 314 10.6 m² 0 1
Bod 315 5.5 m² 0 1
Svalgang 316 33.5 m² 0 0
Trapp/heis 317 16.9 m² 0 0
Balkong 318 4.2 m² 0 1
Balkong 319 4.2 m² 0 1

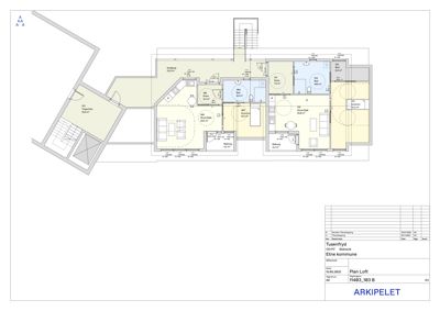
Etasje 3 128.4 m²

Rom Areal Vinduer Dører
Trapp/Heis 313 0.0 m² 0 0
Kontor 312 0.0 m² 0 0
Kott KOTT 0.0 m² 0 0
Svalgang SVALGANG 0.0 m² 0 0
Entre ENTRE 7.2 m² 0 1
Bad BAD 7.3 m² 0 1
Soverom SOVEROM 11.2 m² 0 1
Stove/Kjøk STOVE/KJØK 25.5 m² 0 1
Balkong BALKONG 4.1 m² 0 1
Entre ENTRE 7.2 m² 0 1
Bad BAD 6.4 m² 0 1
Soverom SOVEROM 13.7 m² 0 1
Stove/Kjøk STOVE/KJØK 30.8 m² 0 1
Balkong BALKONG 4.2 m² 0 1
Soverom SOVEROM 9.5 m² 0 1

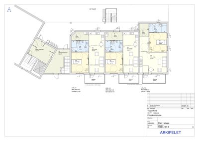
Etasje 1 178.4 m²

Rom Areal Vinduer Dører
Entre 101 6.0 m² 0 1
Stove/Kjøk 102 27.5 m² 0 1
Soverom 103 15.7 m² 0 1
Bad 104 8.4 m² 0 1
Entre 111 6.5 m² 0 1
Stove/Kjøk 112 27.5 m² 0 1
Soverom 113 15.7 m² 0 1
Bad 114 8.4 m² 0 1
Entre 121 5.3 m² 0 1
Stove/Kjøk 122 31.1 m² 0 1
Soverom 123 15.0 m² 0 1
Bad 124 6.8 m² 0 1
Eksist. trapp/heis 125 16.9 m² 0 1
Innbygd trapperom 126 20.8 m² 0 1
Balkong 105 5.3 m² 0 0
Entre 106 7.5 m² 0 1
Bad 107 6.3 m² 0 1
Stove/Kjøk 108 24.5 m² 0 1
Soverom 109 13.7 m² 0 1
Balkong 110 4.6 m² 0 0
Balkong 115 4.1 m² 0 0

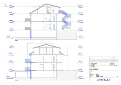
Fasader

Enebolig

Vest
Materiale
Tre
Taktype
Saltak
Vinduer
14
Dører
1
Balkonger
6
Synlige etasjer
3
Øst
Materiale
Tre
Taktype
Saltak
Vinduer
5
Dører
2
Balkonger
2
Synlige etasjer
2
Sør
Materiale
Tre
Taktype
Saltak
Vinduer
4
Dører
0
Balkonger
2
Synlige etasjer
2

Hendelser

21.04.2026 Søknad om rammeløyve - Ombygging Skånevik Omsorgssenter Tusenfryd - gnr. 131 bnr. 117