Rehabilitation UnderBehandling Offentlig

Renovering og utvidelse av Risøyhamn barnehage, Skolebakken 16

📍 Skolebakken 16 , 8484 RISØYHAMN

Nøkkelinfo

Sakstype
Rehabilitering
Bygningstype
Offentlig
Bruksareal
362 m²
Kommune
Andøy
Fylke
Nordland - Nordlánnda
Gnr / Bnr
9 / 96
Saksnummer
2022/3065
Fase
Under behandling

Om byggesaken

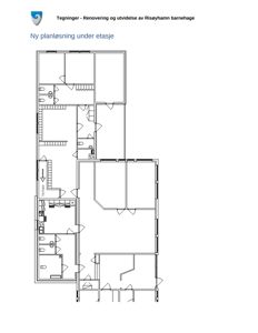
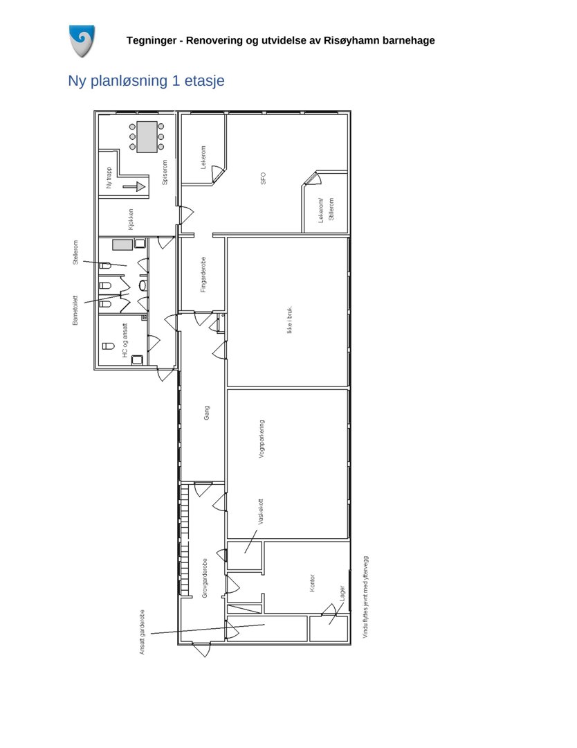
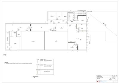
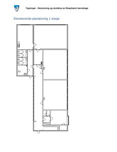
Prosjektet omfatter renovering og utvidelse av Risøyhamn barnehage på Skolebakken 16. Bygget er en offentlig barnehage med totalt 361,6 m² fordelt på to etasjer. Tiltaket inkluderer innvendig ombygging med planendringer, oppgradering av overflater, tekniske installasjoner, etablering av ny trapp mellom etasjene, og utvidelse av utearealet med nytt gjerde. Det er også søkt om bruksendring av tidligere skoleareal til barnehageformål. Prosjektet inkluderer oppgradering av fasade med nye vinduer og etterisolering, samt tilpasninger for universell utforming med dispensasjoner. Arbeidene omfatter grunnarbeid, tømrerarbeid, VVS, elektro og ventilasjon. Avfallsplan og sluttrapport for håndtering av byggeavfall er dokumentert. Prosjektet er under behandling med tillatelse gitt, men arbeidene er ikke bekreftet igangsatt eller ferdigstilt per siste dokumentasjon.

Produkter og materialer

Maling Innvendige overflater

Oppgradering av innvendige overflater med maling og sparkling

Maling og overflatebehandling av innvendige rom

Vinduer Fasadevindu

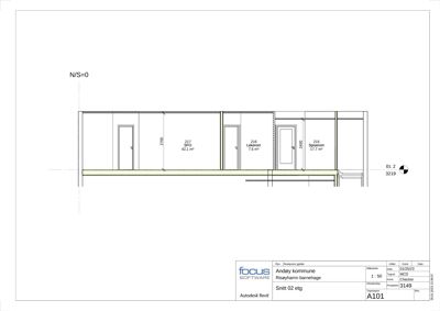
Nye vinduer i fasade øst 2. etg., etterisolering inkludert

Nye fasadevinduer som del av etterisolering og fasadeoppgradering

Tømrer Innvendige bygningsarbeider

Innvendige planendringer, oppgradering av overflater, vegger med robust gips og isolasjon

Tømrerarbeid for ombygging og renovering av barnehagen

Dører Innvendige dører til barnetoalett og stellerom

Antall: 2

Dører med fri bredde 0,706m, dispensasjon fra TEK17 §12-13

Innvendige dører til sanitæranlegg med dispensasjon for universell utforming

Grunnarbeid Uteområde og gjerde

Grunnarbeid og oppsetting av gjerde for utvidet uteareal

Arbeid med uteområder og gjerde innenfor eiendommen

Elektro Elektriske installasjoner

Endring og oppgradering av elektrisk anlegg iht gjeldende lovverk

Elektriske installasjoner tilpasset ny bruk og oppgraderinger

Gulv Innvendige gulv

Oppgradering av gulvflater i barnehagen

Nye eller oppgraderte gulvflater i innvendige rom

VVS Sanitærinstallasjoner og ventilasjon

Oppgradering og tilpasning av tekniske installasjoner, ventilasjon oppgradert

Oppgradering av sanitær- og ventilasjonsanlegg i barnehagen

Fasade Etterisolering og fasadeoppgradering

Fasade øst 2. etg. etterisoleres

Etterisolering av fasade for bedre energiytelse

Trapper Innvendig trapp mellom 1. og 2. etasje

Antall: 1

Trapp med håndlist senket til 0,55m på en side, dispensasjon fra TEK17 §12-14

Ny innvendig trapp tilpasset barnehagebruk og læring for barn

Hendelser

17.04.2026 3149 - Ombygging Risøyhamn barnehage - Ferdigattest
16.04.2026 Varsel om at vi avslutter byggesaken
26.03.2026 Vi minner om at dere må søke om ferdigattest
24.05.2023 VS: 5179-sluttrapport-med-avfallsplan-for-rehabilitering-og-riving_2017.pdf
31.03.2023 3149_2023-03-23- Dispensasjon fra TEK17 §12-14 Trapp (2)b håndlist.pdf
31.03.2023 Tillatelse til tiltak - gnr 9 bnr 96 - Skolebakken 16 - Renovering og utvidelse av Risøyhamn barnehage
29.03.2023 Dispensasjonsvedtak - gnr 9 bnr 96 - Skolebakken 16 - Renovering og utvidelse av Risøyhamn barnehage
15.02.2023 Nabovarsel for Skolebakken 16
10.02.2023 Søknad om bruksendring gnr 9 bnr 96 Skolebakken 16.pdf
12.12.2022 Tillatelse til tiltak - gnr 9 bnr 96 - Skolebakken 16 - Renovering og utvidelse av Risøyhamn barnehage
30.11.2022 Skolebakken 16 Søknad om tillatelse i ett trinn 9/96
30.11.2022 Vi innvilger søknaden om samtykke etter automatisk saksbehandling