Extension UnderBehandling Offentlig

Utvidelse av Molde brannstasjon, Birger Hatlebakks veg 30

πŸ“ Birger Hatlebakks veg 30 , 6415 MOLDE

NΓΈkkelinfo

Sakstype
Tilbygg
Bygningstype
Offentlig
Bruksareal
248 mΒ²
Kommune
Molde
Fylke
Møre og Romsdal
Gnr / Bnr
25 / 1526
Saksnummer
22/06395
Fase
Under behandling

Om byggesaken

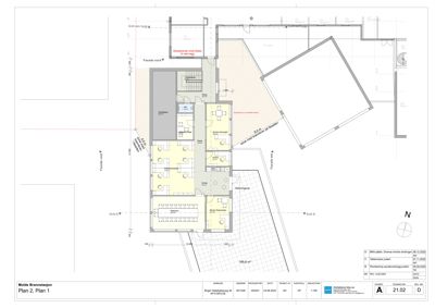
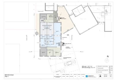
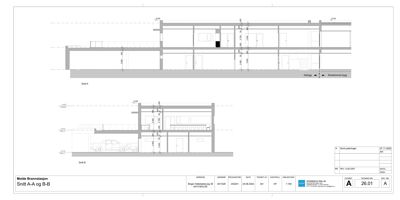
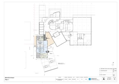
Utvidelse av Molde brannstasjon med et nytt tilbygg på 247,6 m² over to etasjer, inkludert feieravdeling med garderober, lager og kontor, samt et takoverbygg på 238,7 m² for 8 biloppstillingsplasser. Tilbygget er tilpasset eksisterende bygg i formspråk og volum, med flatt tak og gesimshøyde på ca. kote 10. En liten del av eksisterende bygg rives for å gi plass til tilbygget. Bygget har funksjoner som kontorer, vaskerom, tekniske rom og verksted. Utendørsarbeider inkluderer landskapsutforming, veg- og grunnarbeider, samt tilknytning til kommunalt vann- og avløpsnett. Prosjektet er under utførelse med flere ansvarlige foretak involvert, og det foreligger godkjent igangsettingstillatelse.

Produkter og materialer

Tømrer Tømrerarbeid og montering av trekonstruksjoner

🧱 Trekonstruksjoner

Tømrerarbeid for trekonstruksjoner i tilbygget

Tømrerarbeid og montering av trekonstruksjoner i tilbygget

Dører Ytterdører og innerdører

Antall: 58

Dører i tilbygget, både ytterdører og innerdører

Dører for innganger og rom i tilbygget

Elektro Ledesystem

Installasjon av ledesystem for rømningsveier

Ledesystem for rømningsveier i tilbygget

VVS Varme- og kuldeinstallasjoner

Varme- og kuldeinstallasjoner for inneklima

Varme- og kuldeinstallasjoner i tilbygget

Riving Riving og miljøsanering

Riving av ca. 25 m² eksisterende bygg for å gi plass til nytt tilbygg

Riving og miljøsanering av deler av eksisterende brannstasjon

Landskapsutforming Landskapsutforming og utearealer

Landskapsutforming og utearealer i tilknytning til tilbygget

Utendørs landskapsarbeider og utearealer

Ventilasjon Ventilasjon- og klimainstallasjoner

Ventilasjon og klimainstallasjoner for inneklima

Ventilasjon og klimainstallasjoner i tilbygget

Betong Prefabrikert betongkonstruksjoner

Prefabrikkerte betongelementer for konstruksjonssikkerhet

Montering av prefabrikkerte betongelementer i tilbygget

Betong Plasstøpte betongkonstruksjoner

Plasstøpte betongkonstruksjoner for fundamenter og bærende konstruksjoner

Betongarbeider for fundamentering og bærende konstruksjoner i tilbygget

Grunnarbeid Veg- og grunnarbeider

Veg- og grunnarbeider for tilrettelegging av tomt og adkomst

Grunnarbeider og vegarbeider i tilknytning til tilbygget

VVS Sanitærinstallasjoner

Sanitærinstallasjoner for garderober, vaskerom og tekniske rom

Sanitærinstallasjoner i tilbygget

Elektro Brannalarmanlegg

Installasjon av brannalarmanlegg

Brannalarmanlegg for sikkerhet i tilbygget

Tak Taktekkingsarbeid

🧱 Membran og taktekking

Taktekkingsarbeid for flatt tak på tilbygget

Taktekking med membran på flatt tak

Vinduer Fasadevindu

Antall: 58

Fasadevindu i tilbygget, antall 58 stk

Vinduer for kontorer og andre rom i tilbygget

Trapper Innvendig trapp

Antall: 1

Innvendig trapp mellom etasjer i tilbygget

Trapp for intern kommunikasjon i tilbygget

Grunnarbeid Vannforsynings- og avløpsanlegg

Tilknytning til kommunalt vann- og avløpsnett med rørdimensjoner 32 mm PES for vannledning, 110 mm PVC for spillvannsledning

Vann- og avløpsinstallasjoner tilknyttet kommunalt nett

VVS Slukkeinstallasjoner

Brannslukkeinstallasjoner i tilbygget

Slukkeinstallasjoner for brannsikkerhet

Hendelser

10.04.2026 22/06395-16 25/1526/0/0 Birger Hatlebakks veg 30, utvidelse av Molde brannstasjon - søknad om midlertidig brukstillatelse
10.12.2025 22/06395-15 25/1526/0/0 Birger Hatlebakks veg 30, utvidelse av Molde brannstasjon - supplering av søknad
06.11.2025 22/06395-14 25/1526/0/0 Birger Hatlebakks veg 30, utvidelse av Molde brannstasjon - supplering av søknad
08.10.2025 22/06395-13 Birger Hatlebakks veg 30 Supplering av søknad 25/1526
29.09.2025 22/06395-12 25/1526/0/0 Birger Hatlebakks veg 30, utvidelse av Molde brannstasjon - godkjenning av søknad om tillatelse til tilknytning til kommunalt vann- og avløpsanlegg
03.09.2025 22/06395-11 25/1526 Birger Hatlebakks veg 30, igangsettingstillatelse
21.08.2025 22/06395-10 25/1526/0/0 Birger Hatlebakks veg 30, utvidelse av Molde brannstasjon - søknad om igangsettingstillatelse
30.03.2023 22/06395-8 Fakturagrunnlag
22.02.2023 22/06395-7 25/1526 Birger Hatlebakks veg 30, godkjent dispensasjon og rammetillatelse til tilbygg
29.12.2022 22/06395-5 Birger Hatlebakks veg 30, søknad om rammetillatelse