Extension Ferdigattest Offentlig

Tilbygg til barnehage på Forfangs veg 32, Kolvereid

📍 Forfangs veg 32 , 7970 KOLVEREID

Nøkkelinfo

Sakstype
Tilbygg
Bygningstype
Offentlig
Bruksareal
58 m²
Kommune
Nærøysund
Fylke
Trøndelag - Trööndelage
Gnr / Bnr
28 / 24
Saksnummer
2025/2138
Fase
Ferdigattest

Om byggesaken

Ny tilbygg i én etasje på 58 m² bruksareal og 79 m² bebygd areal til eksisterende barnehage på Forfangs veg 32. Tilbygget inkluderer rom som kontor, pause/spiserom, lekerom og garderober, med lydvegger og lydisolasjon for å ivareta akustikk. Bygget har trevegger i tre og pulttak, og er tilknyttet kommunalt vann og privat avløpsanlegg. Prosjektet omfatter grunnarbeider, plasstøpte betongkonstruksjoner, ventilasjon, brannalarmanlegg og ledelys, samt tekniske installasjoner. Det er én trapp i bygget, og fasadene er i tre med pulttak.

Produkter og materialer

Betong Plasstøpte betongkonstruksjoner

🧱 Betong

Utførende: Aksnes Byggservice AS, tiltaksklasse 1

Plasstøpte betongkonstruksjoner for tilbygg

Tømrer Oppføring av bygg - hele tiltaket

🧱 Tre

Utførende: Kent-Are Andreassen, tiltaksklasse 1

Tømrerarbeid for oppføring av tilbygg i tre med pulttak

Dører Ytterdører

🧱 Tre

Antall: 4

Ytterdører i tre på østfasade

Ytterdører til tilbygg

Fasade Trepanel

🧱 Tre

Trepanel på fasader med pulttak

Fasadebekledning i tre

Grunnarbeid Grunnarbeider

Ansvarlig prosjekterende og utførende: Jonny Leirvik, tiltaksklasse 1

Grunnarbeider for tilbygg

Brannvern Brannalarmanlegg og ledelys

Ansvarlig prosjekterende og utførende: Elman Namdal AS, tiltaksklasse 1

Installasjon av brannalarmanlegg og ledelys i tilbygg

Tak Pulttak

Pulttak på tilbygg

Taktekking med pulttak

Ventilasjon Ventilasjonsanlegg

Ansvarlig prosjekterende og utførende: Ventilasjon og Inneklima AS, tiltaksklasse 1

Prosjektering og montering av ventilasjon i tilbygg

Elektro Brannalarm og ledelys

Installasjon av brannalarmanlegg og ledelys

Elektroinstallasjoner for brannalarm og ledelys

Trapper Innvendig trapp

Antall: 1

Én trapp i bygget

Innvendig trapp i tilbygg

Vinduer Fasadevindu

🧱 Tre

Antall: 6

Fasade vinduer i tre, pulttak bygg

Fasadevindu i tilbygg

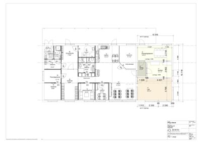
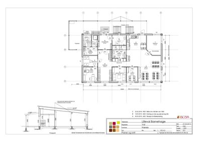
Plantegning

Lilleval Barnehage 293.7 m²

Etasje 1 293.7 m²

Rom Areal Vinduer Dører
Dusj/wc 01 5.8 m² 0 1
Dusj/wc 02 2.7 m² 0 1
Ansatte Garderobe 03 4.9 m² 0 1
Spiserom 04 6.7 m² 0 1
Møter/Kontor 05 8.6 m² 0 1
Grovgarderobe 06 8.4 m² 0 1
Wc 07 1.3 m² 0 1
Wc 08 1.3 m² 0 1
Garderobe 09 18.8 m² 0 1
Stellerom 10 4.8 m² 0 1
Buldrerom 11 11.4 m² 1 1
Lekerom 12 6.7 m² 1 1
Lekerom/lese/hvile 13 8.4 m² 1 1
Kjøkken 13 12.0 m² 1 1
Allrom 14 41.8 m² 2 1
Skaperist V8 0.0 m² 0 0
Bøttekott/Tekn. rom ED3 3.8 m² 0 1
Lek 15 23.0 m² 0 1
Gang 16 3.7 m² 0 1
Kontor 17 12.1 m² 0 1
Pause/spiserom 18 15.8 m² 0 1

Fasader

Enebolig

Vest
Materiale
Tre
Taktype
Pulttak
Vinduer
6
Dører
0
Synlige etasjer
1
Sør
Materiale
Tre
Taktype
Pulttak
Vinduer
2
Dører
0
Synlige etasjer
1
Nord
Materiale
Tre
Taktype
Pulttak
Vinduer
1
Dører
0
Synlige etasjer
1
Øst
Materiale
Tre
Taktype
Pulttak
Vinduer
6
Dører
4
Synlige etasjer
1

Hendelser

14.04.2026 28/24 - Preg Barnehager Lilleval AS - Søknad om ferdigattest - gnr 28 bnr 24
20.10.2025 28/24 - Preg Barnehager Lilleval AS - bekreftelse på nabovarsel - Forfangs veg 32
20.10.2025 28/24 Preg Barnehager Lilleval AS - Tillatelse til tiltak, tilbygg barnehage - Forfangs veg 32
08.10.2025 28/24 - Preg Barnehager Lilleval AS - Søknad om tillatelse i ett trinn - Barnehage - Forfansg veg 32 . gnr 28 bnr 24
23.06.2025 Arbeidstilsynet - Kopi av brev til Preg Barnehager Lilleval AS - Vi innvilger søknaden om samtykke
27.05.2025 Arbeidstilsynet - Kopi av brev til Preg Barnehager Lilleval AS - Behov for flere opplysninger