Extension Igangsettingstillatelse Offentlig

Tilbygg og teknisk installasjon på Molde friskole, Ingebriktvegen 11

📍 Ingebriktvegen 11 , 6410 MOLDE

Nøkkelinfo

Sakstype
Tilbygg
Bygningstype
Offentlig
Bruksareal
252 m²
Kommune
Molde
Fylke
Møre og Romsdal
Gnr / Bnr
23 / 940
Saksnummer
25/13613
Fase
Igangsettingstillatelse

Om byggesaken

To nye tilbygg i to etasjer etableres på Molde friskole, plassert på nord- og østsiden av eksisterende skolebygg. Tilbyggene har samlet areal på 141 m² og inneholder elevarealer i første etasje og kontorer og personalrom i andre etasje. Det gjøres også mindre innvendige ombygginger, utvidelse og tilpasning av platting og svalgang med nødvendig tilkomst og overdekning. Utvendig tilkomst til andre etasje justeres for universell utforming, og det etableres opphevet gangveg for bedre trafikksikkerhet. Bygget får trekledning og kombinasjon av flatt tak og saltak, med gesimshøyde på 6 meter og mønehøyde på 8,5 meter. Prosjektet omfatter også tekniske installasjoner, ventilasjon, sanitær og brannalarm. Arealet for tiltaket er 252 m² BRA. Skolen disponerer tilstrekkelig uteareal for elevene, og tiltaket påvirker ikke eksisterende parkeringsforhold vesentlig.

Produkter og materialer

Vinduer Fasadevindu

Antall: 48

Vinduer i fasader, totalt 48 fordelt på 2 etasjer og alle fasader

Nye fasadevinduer til tilbygg og ombygging

Dører Ytterdører

Antall: 6

Ytterdører i fasader, inkludert rømningsdører og ansattinngang

Nye ytterdører til tilbygg og ombygging

Elektro Brannalarmanlegg

Installasjon av brannalarmanlegg i tilbygg og ombygging

Brannalarmanlegg for nye og ombygde arealer

Tømrer Tømrerarbeid og montering av trekonstruksjoner

🧱 Tre

Tømrerarbeid for tilbygg og ombygging

VVS Sanitærinstallasjoner

Nye sanitærinstallasjoner i tilbygg og ombygging

Sanitærinstallasjoner for nye og ombygde arealer

Maling Utvendig maling

Maling av fasader og overflater

Elektro Ledesystem

Installasjon av ledesystem i tilbygg og ombygging

Ledesystem for brannsikkerhet

Ventilasjon Ventilasjonsanlegg

Nytt teknisk rom for ventilasjon i tilbygg

Ventilasjonsanlegg for tilbygg og ombygging

Grunnarbeid Riving og miljøsanering

Riving av deler av svalgang og eksisterende overbygg, miljøsanering iht. plan

Riving og miljøsanering i forbindelse med tilbygg

Grunnarbeid Innmåling og utstikking

Oppmålingsteknisk prosjektering og utstikking av tiltak

Oppmåling og utstikking for byggearbeider

Ventilasjon Teknisk rom for ventilasjon

Antall: 1

Etablering av teknisk rom for ventilasjon i tilbygg

Teknisk rom for ventilasjonsanlegg

Trapper Utvendig trapp

Antall: 2

Ny utvendig trapp for bedret brannsikkerhet og ansattinngang i 2. etasje

Trapper for utvendig adkomst og brannsikkerhet

Rekkverk Rekkverk på ramper og trapper

Rekkverk for universell utforming og sikkerhet

Grunnarbeid Veg- og grunnarbeider

Opparbeiding av uteareal, ramper, gangveier og justering av uteområder

Grunnarbeider for uteområder og tilkomst

Gulv Innvendige gulv

Innvendige gulv i tilbygg og ombygging, ikke spesifisert materiale

Fasade Trepanel

🧱 Tre

Fasader i tre med blågrå farge, stående panel på tilbygg

Kledning av tilbygg i tre med tilpasset farge og materialbruk til eksisterende bygg

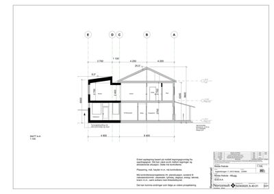
Tak Saltak og flatt tak

Saltak på øst- og vestfasade, flatt tak på nord- og sørfasade, gesimshøyde 6 m, mønehøyde 8,5 m

Taktekking for tilbygg med kombinasjon av saltak og flatt tak

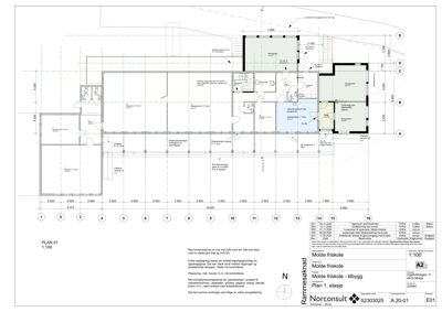
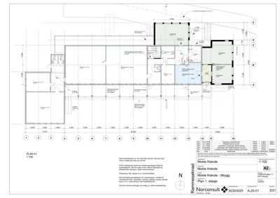
Plantegning

Molde friskole 1,347.1 m²

Etasje 1 688.5 m²

Rom Areal Vinduer Dører
Klasserom 10. trinn 4 51.9 m² 2 1
Grupperom 8.-10. trinn 5 18.7 m² 1 1
Gang 6 16.3 m² 0 2
Klasserom 8.-10. trinn 11 67.5 m² 2 1
Klasserom 5.-7. trinn 12 88.3 m² 2 1
Gang 14 25.0 m² 0 2
Vaskerom 15 8.8 m² 0 1
Gang 16 11.0 m² 0 2
Gjennomgang til nye grupperom 17 22.8 m² 0 2
Garderobe 5.-7. trinn 18 7.6 m² 0 1
Gang 19 7.8 m² 0 2
Grupperom 20 16.4 m² 1 1
Grupperom 21 38.2 m² 1 1
Klasserom 22 31.4 m² 1 1
WC 23 1.7 m² 0 1
WC 24 2.0 m² 0 1
WC 7 2.1 m² 0 1
WC 8 2.0 m² 0 1
Gang 13 7.0 m² 0 2

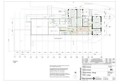
Etasje 2 658.6 m²

Rom Areal Vinduer Dører
Klasserom 23 68.2 m² 1 1
Grupperom 24 20.5 m² 1 1
Gang 25 9.1 m² 0 1
Gang 27 5.3 m² 0 1
WC 28 6.9 m² 0 1
Møterom 42 5.9 m² 0 1
Gang 63 1.8 m² 0 1
Gang 86 12.7 m² 0 1
Kontorgang 101 16.8 m² 0 1
Kopi/servierom 102 4.6 m² 0 1
Kontor 103 10.9 m² 0 1
Kontor 104 9.9 m² 0 1
Kontor 105 24.0 m² 0 1
Kontor 106 30.0 m² 0 1
Kontor 107 9.9 m² 0 1
Kontorgang 108 16.4 m² 0 1
Kontor 109 24.2 m² 0 1
Rektor møterom 110 12.6 m² 0 1
Kjøkken 111 16.4 m² 0 1
Pauseom 112 21.8 m² 0 1
Kontorgang 90 16.8 m² 0 2
Kopi/servierom 91 4.6 m² 0 1
Kontor 92 10.9 m² 0 1
Kontor 93 9.9 m² 0 1
Kontor 94 24.0 m² 0 1
Kontor 95 30.0 m² 0 1
Kontor 96 9.9 m² 0 1
Kontorgang 97 16.4 m² 0 2
Kontor 98 24.2 m² 0 1
Rektor møterom 99 12.6 m² 0 1
Kjøkken 100 12.0 m² 0 1

Fasader

Friskole

Sør
Materiale
Tre
Taktype
Flatt tak
Høyde
6.0 m
Vinduer
18
Dører
1
Synlige etasjer
2
Øst
Materiale
Tre
Taktype
Saltak
Høyde
6.0 m
Mønehøyde
8.5 m
Vinduer
6
Dører
1
Synlige etasjer
2
Nord
Materiale
Tre
Taktype
Flatt tak
Høyde
6.0 m
Vinduer
18
Dører
1
Synlige etasjer
2
Vest
Materiale
Tre
Taktype
Saltak
Høyde
6.0 m
Mønehøyde
8.5 m
Vinduer
6
Dører
1
Synlige etasjer
2

Hendelser

09.04.2026 25/13613-8 23/940/0/0 Ingebriktvegen 11, Vi innvilger søknaden om samtykke etter automatisk saksbehandling
09.04.2026 25/13613-6 23/940 Ingebriktvegen 11, igangsettelsestillatelse for riving og grunnarbeid
27.03.2026 25/13613-5 23/940/0/0 Ingebriktvegen 11, tilbygg Molde friskole - teknisk installasjon i bygg - søknad om igangsettingstillatelse
30.01.2026 25/13613-4 23/940 Ingebriktvegen 11, rammetillatelse til tilbygg Molde friskole - teknisk installasjon i bygg
19.12.2025 25/13613-1 23/940/0/0 1506-23/940/0/0, tilbygg Molde friskole - teknisk installasjon i bygg - søknad om rammetillatelse