Extension Soeknad Offentlig

Tilbygg og heisinstallasjon på kulturhus, Kong Oscars gate 15

📍 Kong Oscars gate 15 , 5017 BERGEN

Nøkkelinfo

Sakstype
Tilbygg
Bygningstype
Offentlig
Bruksareal
500 m²
Kommune
Bergen
Fylke
Vestland
Gnr / Bnr
166 / 516
Saksnummer
BYGG-2026/12507
Fase
Søknad

Om byggesaken

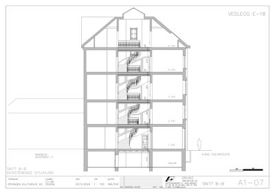
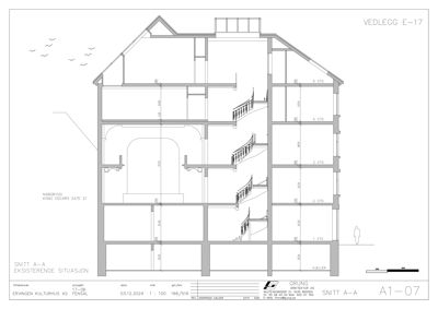
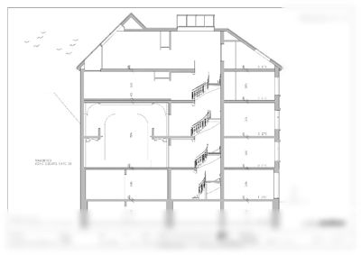
Prosjektet omfatter et tilbygg til eksisterende kulturhus i Kong Oscars gate 15 i Bergen, med flere nye etasjer og romfunksjoner som kontorer, møterom, vaskerom, galleri, verksted og storsal. Det installeres en ny heis med dimensjon 1100x1350 mm i eksisterende trapperom for å bedre tilgjengeligheten, tilpasset rullestolbruk. Bygget får nye bærekonstruksjoner over kjeller og første etasje, inkludert nye søyler og dragere, mens øvrige etasjer i bæresystemet forblir uendret. Trapper tilpasses for å oppfylle brann- og rømningskrav. Arbeidene inkluderer innvendige endringer uten behov for terrengarbeider, og heissjakten og maskinrommet prosjekteres i henhold til TEK17 og relevante standarder.

Produkter og materialer

Grunnarbeid Fundamentering under kjeller

Fundamentering og nye søyler i kjeller under tilbygg

Grunnarbeider for nye bæresøyler og fundamenter i kjeller

Maling Innvendig maling og overflatebehandling

Innvendig maling og overflatebehandling i tilbygg og tilpassede områder

Elektro El-installasjoner for heis og bygg

Elektriske installasjoner for drift av heis og tekniske anlegg i tilbygg

El-installasjoner for ny heis og tilbyggets tekniske behov

Fasade Tilbygg vegger og vinduer

Nye vegger og vinduer i tilbyggets flere etasjer, inkludert kontorer, møterom, galleri og verksted

Byggets fasade utvides med tilbygg i flere etasjer med nye vinduer og vegger

Ventilasjon Ventilasjonsrom og kanaler

Nye ventilasjonsrom og kanaler i tilbygg og eksisterende bygg

Ventilasjonssystem oppgraderes og tilpasses tilbygg og heisinstallasjon

Betong Nye søyler og dragere

🧱 Betong og stål

Nye bæresøyler og dragere over kjeller og første etasje for å understøtte tilbygg og heis

Bærekonstruksjon tilpasses for å bære nytt tilbygg og heisinstallasjon

VVS Rørinstallasjoner og sanitær

Rørinstallasjoner til vaskerom og sanitær i tilbygg

VVS-installasjoner for nye vaskerom og sanitæranlegg i tilbygg

Gulv Nye gulvflater i tilbygg

Gulv i kontorer, møterom, galleri, verksted og storsal i tilbygg

Nye gulvflater legges i tilbyggets ulike rom

Tømrer Innvendige trapper og tilpasninger

Tilpasning av eksisterende trapper for å oppfylle brann- og rømningskrav

Trapper tilpasses og deler fjernes for å gi plass til heis og sikre rømningsveier

Heis Personheis 1100x1350 mm

Antall: 1

Heis med dimensjon 1100 mm bredde og 1350 mm dybde, tilpasset rullestolbruk, i henhold til TEK17 og NS-EN 81-70

Ny personheis installeres i eksisterende trapperom for tilgjengelighet og universell utforming

Hendelser

14.04.2026 Kong Oscars gate 15 Søknad om tillatelse i ett trinn 166/516