Extension UnderBehandling Offentlig

Tilbygg og perimetersikring ved LCMC, Nordmelaveien 366

📍 Nordmelaveien 366 , 8489 NORDMELA

Nøkkelinfo

Sakstype
Tilbygg
Bygningstype
Offentlig
Bruksareal
652 m²
Kommune
Andøy
Fylke
Nordland - Nordlánnda
Gnr / Bnr
34 / 90
Saksnummer
2024/2851
Fase
Under behandling

Om byggesaken

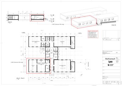
Ny fjerde fløy som tilbygg til eksisterende midlertidig brakkerigg for kontrollromfasiliteter på totalt 652 m² med flatt tretak, plassert på Nordmelaveien 366 i Andøy kommune. Bygget består av kontor- og tekniske rom som møterom, kontorplasser, serverrom, kontrollrom og tekniske installasjoner. Tilbygget har en gesimshøyde på 3,8 meter og er utført i tre med flatt tak. Prosjektet inkluderer også utvidelse av perimetersikring med gjerde og innsynsskjerm rundt anlegget. Bygget er midlertidig med dispensasjon for inntil 5 år, og tiltaket er tilpasset eksisterende bebyggelse og virksomhet på eiendommen. Det er gitt dispensasjoner fra kommuneplanens arealdel, byggegrense mot fylkesvei og 100-metersbeltet, samt fra enkelte tekniske krav i TEK17.

Produkter og materialer

Dører Ytterdør

Antall: 2

1 dør på sørøstfasade, 1 dør i byggets rom

Ytterdører til tilbygg

Tømrer Montering av brakker

Montering av modulbasert brakkerigg som tilbygg

Tømrerarbeid for modulbygg

Gjerde Perimetersikring med gjerde og innsynsskjerm

Utvidet perimetersikring rundt anlegget med gjerde og innsynsskjerm

Sikkerhetsgjerde og innsynsskjerm rundt kontrollromfasilitetene

Betong Ringmur og fundamenter

🧱 Betong

Plasstøpte betongkonstruksjoner under moduler

Fundamentering for modulbasert brakkerigg

Tak Flatt tak

Taktekking på flatt tak

Taktekking for tilbyggets flate tak

Fasade Tre fasade med flatt tak

🧱 Tre

Flatt tak, gesimshøyde 3,8 m, fasader nordvest, nordøst, sørvest og sørøst

Fasade i tre med flatt tak på tilbygg til brakkerigg

Vinduer Fasadevindu

Antall: 9

4 vinduer på nordvestfasade, 5 vinduer på sørøstfasade

Fasadevinduer i tilbygg

Elektro Brannalarmanlegg og ledesystem

Brannalarmanlegg ihht. NS3960:2019 og ledesystem ihht. NS18382

Brannalarm og ledesystem i tilbygg

Trapper Innvendig trapp

Antall: 1

1 trapp i bygget

Innvendig trapp i tilbygg

VVS Ventilasjon og klimainstallasjoner

Ventilasjon og klimainstallasjoner i tilbygg

Ventilasjon og klima for midlertidig kontorbygg

Plantegning

LCMC Extension (4th wing) 652.0 m²

Etasje 1 652.0 m²

Rom Areal Vinduer Dører
Dining Room/Meeting room 101 58.0 m² 0 1
GARD 102 7.0 m² 0 1
WC 103 2.0 m² 0 1
WC 104 2.0 m² 0 1
WC 105 2.0 m² 0 1
WC 106 2.0 m² 0 1
GARD 107 4.0 m² 0 1
BK 108 2.0 m² 0 1
HCWC 109 9.0 m² 0 1
TEK 110 7.0 m² 0 1
UPS 111 7.0 m² 0 1
Batteri 112 5.0 m² 0 1
Gang 113 52.0 m² 0 0
Tavlerom 114 5.0 m² 0 1
Uninett 115 10.0 m² 0 1
Uninett 116 10.0 m² 0 1
OPS room 117 45.0 m² 0 1
Office space 118 12.0 m² 0 1
Lager 119 5.0 m² 0 1
Shared office space 120 33.0 m² 0 1
Lager 121 11.0 m² 0 1
Pad A Mission Control 122 91.0 m² 0 1
Server room A 123 17.0 m² 0 1
Launch Control 124 78.0 m² 0 1
LO server room 125 24.0 m² 0 1

Fasader

LCMC Extension (4th wing)

Nordvest
Materiale
Tre
Taktype
Flatt tak
Høyde
3.8 m
Vinduer
4
Dører
0
Synlige etasjer
1
Nordøst
Materiale
Tre
Taktype
Flatt tak
Høyde
3.8 m
Vinduer
0
Dører
0
Synlige etasjer
1
Sørvest
Materiale
Tre
Taktype
Flatt tak
Høyde
3.8 m
Vinduer
0
Dører
0
Synlige etasjer
1
Sørøst
Materiale
Tre
Taktype
Flatt tak
Høyde
3.8 m
Vinduer
5
Dører
1
Synlige etasjer
1

Hendelser

15.04.2026 Nordmelaveien 366 Søknad om tillatelse i ett trinn 34/90