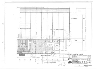
Facade
Fasadetegning av en bygning (Lyehallen) med to utsnitt: mot øst og mot nord. Tegningen viser fasadens utseende, materialer, vinduer og innganger.
1 / 14
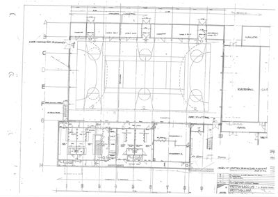
Extension
Unknown
Offentlig
Tilbygg til idrettshall
📍 Sentervollen 29 , 4347 LYE
Nøkkelinfo
- Sakstype
- Tilbygg
- Bygningstype
- Offentlig
- Kommune
- Time
- Fylke
- Rogaland
- Gnr / Bnr
- 23 / 2
- Saksnummer
- 2026/1154
- Fase
- Unknown
Om byggesaken
Søknad om tillatelse til oppføring av tilbygg til eksisterende idrettshall (Lyehallen) med tilhørende vann- og avløpsarbeid.
Fasader
Lyehallen
Vest
- Materiale
- Glass
- Taktype
- Saltak
- Vinduer
- 0
- Dører
- 1
- Synlige etasjer
- 1
Sør
- Materiale
- Glass
- Taktype
- Saltak
- Vinduer
- 0
- Dører
- 2
- Synlige etasjer
- 1
Øst
- Materiale
- Glass
- Taktype
- Flatt tak
- Vinduer
- 1
- Dører
- 1
- Synlige etasjer
- 2
Nord
- Materiale
- Tre
- Taktype
- Flatt tak
- Vinduer
- 5
- Dører
- 1
- Synlige etasjer
- 1
Hendelser
15.04.2026
Tilbakemelding om behov for endra teikningar ved flytting av rømningsdør og trapp
20.03.2026
Trinnvis igangsettingsløyve til oppføring av idrettshall. Gnr. 23 bnr. 2, Kvartsvegen 7
18.03.2026
Søknad om igangsettingstillatelse
12.03.2026
Rammeløyve til oppføring av tilbygg til idrettshall. Gnr. 23 bnr. 2, Kvartsvegen 7
12.03.2026
Gebyr for behandling av søknad om tilbygg til idrettshall
12.03.2026
Tilbakemelding om krav til utdanning og praksis for tiltaksklasse 2
12.03.2026
Innsending av ansvarsrett og gjennomføringsplan for arkitekturprosjektering i tiltaksklasse 2
11.03.2026
Tilbakemelding om manglar ved søknad om tilbygg til idrettshall. Gnr. 23 bnr. 2, Kvartsvegen 7
11.03.2026
Tilleggsopplysninger
09.03.2026
Søknad om tilbygg til Lyehallen