FloorPlan
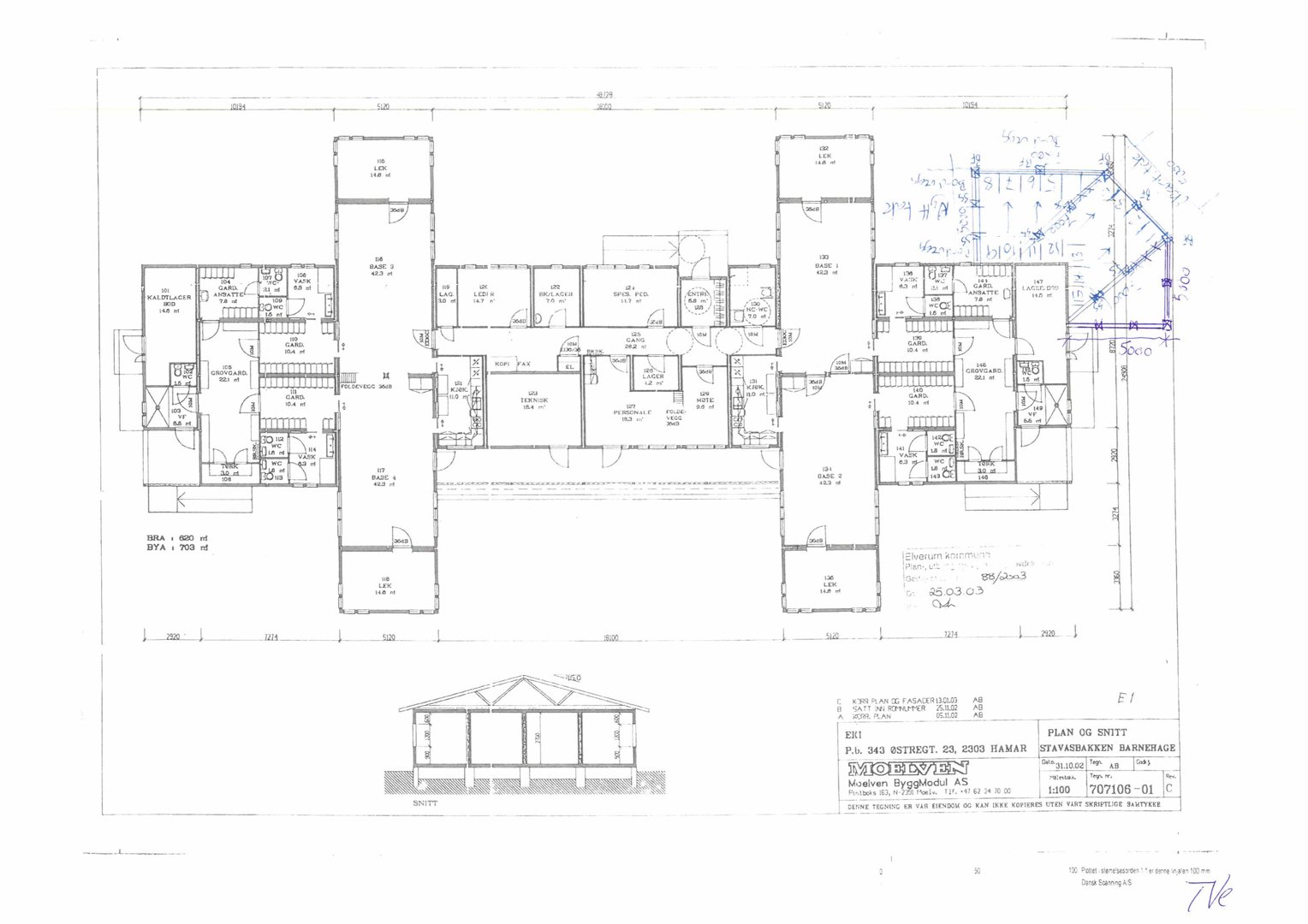
Etasjeplan (plan og snitt) som viser romfordeling, dører, vinduer og mål for en bygning.
1 / 2
Extension
Soeknad
Offentlig
Utvidelse av tak og utesoveplass ved Stavåsbakken barnehage, Solbærvegen 88
📍 Solbærvegen 88 , 2409 ELVERUM
Nøkkelinfo
- Sakstype
- Tilbygg
- Bygningstype
- Offentlig
- Bruksareal
- 12 m²
- Kommune
- Elverum
- Fylke
- Innlandet
- Gnr / Bnr
- 30 / 1096
- Saksnummer
- 2026/2067
- Fase
- Søknad
Om byggesaken
Utvidelse av eksisterende tak over utesoveplass ved Stavåsbakken barnehage med ca. 7,2 meter mot vest og ca. 5,0 meter mot sør. Taket skal ikke isoleres og vil ha åpning i begge ender, begrenset av skjermvegger. Prosjektet omfatter en frittliggende konstruksjon som forlenger takets dekning for utesoveplassen, tilpasset barnehagens behov for utendørs opphold. Bygget er en offentlig barnehage med et samlet areal på 620 m², og tiltaket er et mindre tilbygg under 50 m².
Produkter og materialer
Grunnarbeid
Fundamentering for takutvidelse
Grunnarbeid og fundamentering for ny takutvidelse og utesoveplass
Fasade
Skjermvegger
Skjermvegger som begrenser takutvidelsen
Skjermvegger for avgrensning av takutvidelsen
Tømrer
Konstruksjon av takutvidelse og utesoveplass
Tømrerarbeid for oppføring av takutvidelse og utesoveplass
Tak
Utvidelse av tak over utesoveplass
Takutvidelse ca. 7,2 m mot vest og 5,0 m mot sør, ikke isolert, åpning i begge ender, begrenset av skjermvegger
Takmaterialer og konstruksjon for utvidelse av tak over utesoveplass uten isolasjon
Plantegning
Barnehage 620.0 m²
Etasje 1 620.0 m²
| Rom | Areal | Vinduer | Dører |
|---|---|---|---|
| Kaldt lager 101 | 14.6 m² | 0 | 1 |
| WC 102 | 1.6 m² | 0 | 1 |
| Vf 103 | 6.6 m² | 0 | 1 |
| Gard. ansatte 104 | 7.8 m² | 0 | 1 |
| Grovgard 105 | 22.1 m² | 0 | 1 |
| Vask 106 | 6.8 m² | 0 | 1 |
| WC 107 | 2.1 m² | 0 | 1 |
| Gard 108 | 10.4 m² | 0 | 1 |
| Vf 109 | 6.6 m² | 0 | 1 |
| Lek 110 | 14.6 m² | 0 | 1 |
| Gard 111 | 10.4 m² | 0 | 1 |
| WC 112 | 1.8 m² | 0 | 1 |
| Vask 113 | 6.9 m² | 0 | 1 |
| WC 114 | 1.8 m² | 0 | 1 |
| Gang 115 | 26.2 m² | 0 | 0 |
| Base 3 116 | 42.3 m² | 0 | 1 |
| Base 4 117 | 42.3 m² | 0 | 1 |
| Lek 118 | 14.6 m² | 0 | 1 |
| Lag 119 | 3.0 m² | 0 | 1 |
| Ledik 120 | 14.7 m² | 0 | 1 |
| Bk/lager 121 | 7.0 m² | 0 | 1 |
| Spec. ped 122 | 11.7 m² | 0 | 1 |
| Teknisk 123 | 18.4 m² | 0 | 1 |
| Lager 124 | 1.2 m² | 0 | 1 |
| Gang 125 | 26.2 m² | 0 | 0 |
| Personale 126 | 18.3 m² | 0 | 1 |
| Foldevegg 127 | 9.9 m² | 0 | 1 |
| Kjøkk 128 | 11.0 m² | 0 | 1 |
| Mote 129 | 11.0 m² | 0 | 1 |
| Hc/Wc 130 | 7.0 m² | 0 | 1 |
| Kjøkk 131 | 11.0 m² | 0 | 1 |
| Lek 132 | 14.6 m² | 0 | 1 |
| Base 1 133 | 42.3 m² | 0 | 1 |
| Vask 134 | 6.0 m² | 0 | 1 |
| WC 135 | 3.1 m² | 0 | 1 |
| Gard 136 | 10.4 m² | 0 | 1 |
| Gard 137 | 7.8 m² | 0 | 1 |
| WC 138 | 7.0 m² | 0 | 1 |
| Base 2 139 | 42.3 m² | 0 | 1 |
| Grovgard 140 | 22.1 m² | 0 | 1 |
| Vask 141 | 6.3 m² | 0 | 1 |
| WC 142 | 1.8 m² | 0 | 1 |
| Lag 143 | 3.0 m² | 0 | 1 |
| Gard 144 | 10.4 m² | 0 | 1 |
| Vf 145 | 6.6 m² | 0 | 1 |
| Grovgard 146 | 22.1 m² | 0 | 1 |
| Lager 147 | 14.0 m² | 0 | 1 |
| Vf 148 | 6.6 m² | 0 | 1 |
| Vf 149 | 6.6 m² | 0 | 1 |
Hendelser
20.04.2026
Byggesøknad Stavåsbakken barnehage - utvidelse tak utesoveplass