Extension UnderBehandling Offentlig

Tilbygg og midlertidig modulbygg ved Espira Karmsund barnehage, Spannavegen 320

📍 Spannavegen 320 , 5542 KARMSUND

Nøkkelinfo

Sakstype
Tilbygg
Bygningstype
Offentlig
Bruksareal
567 m²
Kommune
Karmøy
Fylke
Rogaland
Gnr / Bnr
148 / 89
Saksnummer
2025/9541
Fase
Under behandling

Om byggesaken

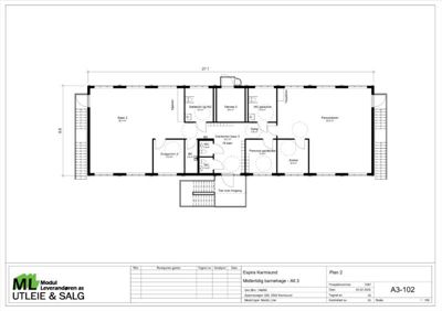
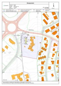
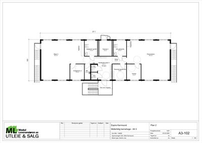
Prosjektet omfatter oppføring av et midlertidig modulbygg på ca. 566,6 m² BRA i to etasjer med 3 trapper, som skal fungere som utvidelse av Espira Karmsund barnehage. Modulbygget har 3 avdelinger og personalarealer, og plasseres på eksisterende parkeringsareal med tilhørende ombygging og utvidelse av parkeringsplassen mot vest. Parkeringsplassen utvides for å oppfylle krav til antall plasser ved økt kapasitet. Modulbygget har gesimshøyde på ca. 7 m (7,5 m fra gjennomsnittlig terreng) og fasader med flere vinduer og dører. Det planlegges også innsnevring av eksisterende avkjørsel og opparbeidelse av ny trafikksikker adkomst. Prosjektet inkluderer landskapsplaner, brannkonsept, VVS, elektro, ventilasjon og grunnarbeider. Tiltaket er midlertidig i inntil 2 år, i påvente av permanent tilbygg som skal erstatte modulbygget. Det er søkt om flere dispensasjoner knyttet til byggegrenser mot vei, avkjørsel og parkeringsplassers plassering i forhold til vei og gangvei. Det foreligger merknader fra naboer og foresatte, særlig knyttet til trafikksikkerhet ved avkjørsel og universell utforming av 2. etasje i modulbygget.

Produkter og materialer

VVS Varme- og kuldeinstallasjoner

Varme- og kuldeinstallasjoner i modulbygg

Varme- og kuldeinstallasjoner for modulbygg

Bygningskomponenter Trapper

Antall: 3

Innvendige trapper i modulbygg for adkomst til 2. etasje

Trapper for modulbygg i to etasjer

Maling Innvendig og utvendig maling

Maling av fasader og innvendige overflater i modulbygg

Overflatebehandling

Tømrer Modulbygg konstruksjon

Prefabrikkert modulbygg i to etasjer med tilhørende konstruksjoner

Byggematerialer og konstruksjoner for modulbygg

Elektro Brannalarmanlegg og ledesystem

Installasjon av brannalarmanlegg og ledesystem i modulbygg

Brann- og sikkerhetssystemer

Bygningskomponenter Vinduer

Antall: 22

Vinduer i modulbygg, fasader øst og vest med 10 vinduer hver, samt 1 vindu i fasade sør og nord

Vinduer for modulbygg i to etasjer

VVS Sanitærinstallasjoner

Sanitærinstallasjoner i modulbygg, inkl. stellerom, WC og personaltoaletter

Sanitærinstallasjoner for modulbygg

Annet Brannsikkerhet

Brannkonsept og uavhengig kontroll av brannsikkerhet for modulbygg

Brannsikkerhetstiltak

Fasade Fasade kledning

Fasader med gesimshøyde ca. 6-6,5 m, fasade øst, vest, sør og nord

Fasadeelementer for modulbygg

Grunnarbeid Parkeringsplass og vei

🧱 Asfalt

Utvidelse og ombygging av parkeringsplass med ca. 30 plasser, inkl. innlemming av privat vei i parkeringsareal

Grunnarbeid og asfaltering for parkeringsplass og adkomst

Bygningskomponenter Dører

Antall: 15

Ytterdører og innerdører i modulbygg, inkludert dører til tekniske rom, garderober og personalrom

Dører for modulbygg i to etasjer

Gulv Gulvbelegg og fliser

Gulvbelegg i grupperom, base, personalrom og tekniske rom

Innvendige gulvbelegg

Ventilasjon Ventilasjons- og klimainstallasjoner

Ventilasjons- og klimainstallasjoner i modulbygg

Ventilasjon og klima for modulbygg

Betong Fundamenter og støttemurer

Fundamentering for modulbygg og støttemur mellom parkeringsplass og utelekeplass

Betongfundamenter og støttemurer

Rekkverk Innvendig trapperekkverk

Antall: 3

Rekkverk i trappene i modulbygget i henhold til TEK-17

Sikkerhetsrekkverk i trapper

Fasader

Midlertidig barnehage

Vest
Høyde
6.0 m
Vinduer
10
Dører
1
Balkonger
1
Synlige etasjer
2
Øst
Høyde
6.0 m
Vinduer
10
Dører
1
Balkonger
1
Synlige etasjer
2
Sør
Høyde
6.5 m
Vinduer
1
Dører
0
Balkonger
3
Synlige etasjer
2
Nord
Høyde
6.5 m
Vinduer
1
Dører
0
Balkonger
3
Synlige etasjer
2

Hendelser

20.04.2026 Gnr. 148, bnr. 89 - Anmodning om ulovlighetsoppfølging – eksisterende avkjørsel ved Espira Karmsund
20.04.2026 Gnr. 148, bnr. 89 - Merknad til tiltakshavers ettersendte kommentarer
13.04.2026 Gnr. 148, bnr. 89 - Supplering av nabomerknader
13.04.2026 Til orientering - supplering til merknad - gnr. 148, bnr. 89
09.04.2026 Gnr. 148, bnr. 89 - Merknad til ettersendt dokumentasjon
09.04.2026 Tilbakemelding om mangler - gnr. 148, bnr. 89
30.03.2026 Gnr. 148, bnr. 89 - (Kopimottaker) Arbeidstilsynet - Vi innvilger søknaden om samtykke etter automatisk saksbehandling
30.03.2026 Gnr. 148, bnr. 89 - Informasjon angående dagens avkjørsel, og Arbeidstilsynets samtykke
27.03.2026 Gnr. 148, bnr. 89 - Supplerende merknad
26.03.2026 Gnr. 148, bnr. 89 - Supplerende merknad
23.03.2026 Gnr. 148, bnr. 89 - Tilbygg, midlertidig bygg og parkeringsplass - Spannavegen 320
16.03.2026 Gnr. 148, bnr. 89 - Merknad til søknader om dispensasjon og omsøkt utvidelse
09.03.2026 Gnr. 148, bnr. 89 - (Kopimottaker) Rogaland fylkeskommune - Svar på nabovarsel
29.01.2026 Gnr. 148, bnr. 89 - (Kopimottaker) Rogaland fylkeskommune - Tilbakemelding
19.12.2025 Referat forhåndskonferanse - utvidelse barnehage, midlertidig og permanent - gnr. 148, bnr. 89 - Spannavegen 320
11.12.2025 Gnr. 148, bnr. 89 - Forhåndskonferanse - Tilbygg, midlertidig bygg og parkeringsplass - Spannavegen 320