Extension Ferdigattest Offentlig

Tilbygg på barnehage i Støveien 8, Myre

📍 Støveien 8B , 8430 MYRE

Nøkkelinfo

Sakstype
Tilbygg
Bygningstype
Offentlig
Bruksareal
14 m²
Kommune
Øksnes
Fylke
Nordland - Nordlánnda
Gnr / Bnr
65 / 772
Saksnummer
2026/322
Fase
Ferdigattest

Om byggesaken

Ny tilbygg på eksisterende barnehage i Støveien 8 med et samlet bruksareal på 14 m² og bebygd areal på 7 m². Tilbygget omfatter et nytt kontor, utvidet garderobe med ekstra WC, og innbygging av et overbygd inngangsparti. Byggeteknisk løsning og takkonstruksjon er tilpasset eksisterende bygg, uten endring av takhøyde over 1,9 meter. Det er installert ventilasjon tilpasset de nye rommene, som inkluderer arbeidsrom, grupperom, kjøkken og lekerom. Tilbygget har ett trappetrinn og flere vinduer og dører fordelt på rommene.

Produkter og materialer

Dører Innvendige og ytterdører

Antall: 10

Dører til kontor, garderobe, lekerom, grupperom, kjøkken og gang

Innvendige og ytterdører i tilbygget for romadskillelse og adkomst

Vinduer Fasadevindu

Antall: 7

Vinduer i kontor, arbeidsrom, grupperom, kjøkken og lekerom

Fasadevindu i tilbygget fordelt på flere rom for naturlig lysinnslipp

Sanitær WC og garderobeutvidelse

Antall: 1

Ekstra WC og utvidet garderobe under eksisterende tak

Sanitærinstallasjoner for nytt WC og garderobe i tilbygget

Ventilasjon Ventilasjonsanlegg tilpasset nytt romoppsett

Antall: 1

Nye rom koblet til eksisterende ventilasjonsanlegg for tilpasset luftmengde

Ventilasjonsanlegg som sikrer tilstrekkelig luftmengde i tilbygget og eksisterende bygg

Tømrer Bygningskonstruksjon og innvendige arbeider

Bygningstekniske arbeider utført av RM Byggservice

Tømrerarbeid for oppføring av tilbygg, inkludert vegger, tak og innvendige rom

Fasade Overbygd inngangsparti

Antall: 1

Innbygging av overbygd inngangsparti som del av tilbygg

Overbygd inngangsparti som er innbygget i tilbygget for bedre adkomst og værbeskyttelse

Tak Takkonstruksjon under eksisterende tak

Antall: 1

Tilbygg under eksisterende tak uten endring av takhøyde over 1,9 m

Takkonstruksjon som følger eksisterende byggs takprofil uten økning i høyde

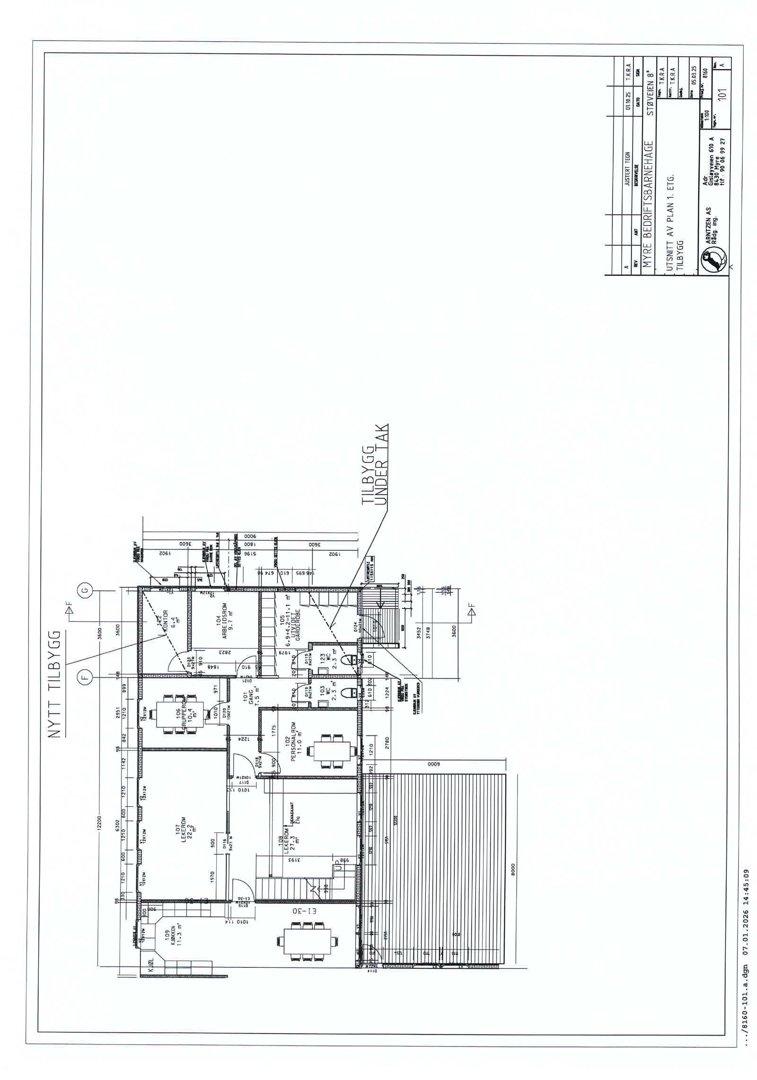
Plantegning

Tilbygg 120.5 m²

Etasje 1 120.5 m²

Rom Areal Vinduer Dører
Kjøkken 109 11.3 m² 1 1
Lekesrom 107 22.2 m² 1 1
Grupperom 105 10.4 m² 1 1
Arbeidsrom 104 9.7 m² 1 1
Garderobe 103 2.3 m² 0 1
Personarom 102 11.0 m² 1 1
Gang 101 7.5 m² 0 2
Kontor 106 6.4 m² 1 1
Lekesrom 108 27.9 m² 1 1

Hendelser

10.04.2026 Svar melding om tilbygg, G/bnr. 65/772 - Støveien 8
30.03.2026 Melding om avsluttet byggearbeid på gbnr 65/772 Myre Bedriftsbarnehage AS
10.03.2026 Melding om avsluttet byggearbeid