Extension Soeknad Offentlig

Tilbygg og fasadeendring på Rendalen sykehjem, Søstuveien 25

📍 Strandveien 3 , 2485 RENDALEN

Nøkkelinfo

Sakstype
Tilbygg
Bygningstype
Offentlig
Bruksareal
180 m²
Kommune
Rendalen
Fylke
Innlandet
Gnr / Bnr
15 / 1
Saksnummer
2026/755
Fase
Søknad

Om byggesaken

Nybygg av tilbygg til Rendalen sykehjem på Søstuveien 25 med et bebygd areal på 180 m² og bruksareal på 173 m² i én etasje. Tilbygget inneholder spisestue, rapportrom, aktivitetsrom, vinterhage, stue, rom for lintøy, toalett og gang. Det omfatter også ombygging av 11 m² av eksisterende kjøkken/stue for sammenkobling med tilbygget. Fasaden endres med nye større vinduer og tilpasning til eksisterende saltak i betong. Det etableres ny gangsti for myke trafikanter som erstatter eksisterende gangsti. Tiltaket inkluderer riving av deler av eksisterende bebyggelse for sammenkobling med tilbygget. Materialer inkluderer betongfasade og saltak. Prosjektet krever dispensasjon fra arealformål LNF og veg i reguleringsplanen, og tiltaket er planlagt med fokus på god bokvalitet og tilgjengelighet for beboere.

Produkter og materialer

Tak Saltak

Antall: 1

Saltak tilpasset eksisterende mønehøyde ca. 5,7 m

Taktekking for tilbygget med saltak som matcher eksisterende bygg

Maling Innvendig maling

Maling av innvendige vegger og tak i tilbygget

Overflatebehandling innvendig

Gulv Innvendige gulv

Gulv i nye fellesrom som spisestue, aktivitetsrom, stue og vinterhage

Innvendige gulv i tilbygget

Elektro Elektriske installasjoner

Elektriske installasjoner for belysning, varme og tekniske systemer i tilbygget

Elektroarbeid for nytt tilbygg

Tømrer Trekonstruksjoner

🧱 Tre

Tømrerarbeid for oppføring av tilbygget i én etasje

Trekonstruksjoner for tilbygget

Grunnarbeid Ny gangsti

Opparbeidelse av ny gangsti for myke trafikanter som erstatter eksisterende gangsti

Grunnarbeid for ny gangsti rundt tilbygget

VVS Sanitærinstallasjoner

Sanitærinstallasjoner for toalett og bad i tilbygget

VVS-installasjoner for nye sanitærrom

Dører Ytterdører

Antall: 10

Dører i fasade nord (4), vest (3) og øst (2) samt dører i tilbygget for rom som spisestue, aktivitetsrom, vinterhage etc.

Ytterdører til nye og eksisterende rom i tilbygget

Riving Delvis riving av eksisterende bygg

Riving av deler av eksisterende kjøkken og tak over overbygd uteplass for sammenkobling med tilbygget

Riving for å tilrettelegge for nytt tilbygg og sammenkobling

Ventilasjon Ventilasjonsanlegg

Ventilasjonsanlegg for nye fellesrom og oppholdsrom i tilbygget

Ventilasjon for å sikre godt inneklima i tilbygget

Fasade Betongfasade

🧱 Betong

Fasade i betong med saltak, nye større vinduer i fasade nord, vest og øst

Fasadeendring med nye vinduer og tilpasning til eksisterende betongfasade og saltak

Isolasjon Bygningsisolasjon

Isolasjon i vegger, tak og gulv for å oppnå TEK-krav

Isolasjon for energieffektivitet og komfort

Vinduer Fasadevindu

Antall: 22

Nye større vinduer i fasade nord (10), vest (6) og øst (6) på fløy D

Nye fasadevinduer for tilbygget og fasadeendring

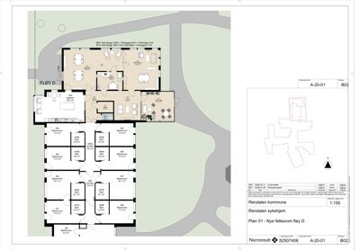
Plantegning

Rendalen sykehjem 668.5 m²

Etasje 1 668.5 m²

Rom Areal Vinduer Dører
Kjøkken 400 40.3 m² 0 2
Beboerrom 401 17.4 m² 1 1
Bad 401B 5.0 m² 0 1
Beboerrom 402 22.1 m² 1 1
Bad 402B 6.1 m² 0 1
Beboerrom 403 17.4 m² 1 1
Bad 403B 5.0 m² 0 1
Beboerrom 404 17.4 m² 1 1
Bad 404B 5.0 m² 0 1
Beboerrom 405 17.4 m² 1 1
Bad 405B 5.0 m² 0 1
Beboerrom 406 17.4 m² 1 1
Bad 406B 5.0 m² 0 1
Beboerrom 407 22.1 m² 1 1
Bad 407B 6.1 m² 0 1
Beboerrom 408 17.4 m² 1 1
Bad 408B 4.9 m² 0 1
Korridor 409 10.6 m² 0 0
Korridor 409A 18.3 m² 0 0
Gang 410 15.7 m² 0 0
Spisestue 411 52.6 m² 1 1
Aktivitetsrom 412 40.1 m² 1 1
Stue 413 22.4 m² 1 1
Rapport 414 12.9 m² 0 1
Lager 415 4.7 m² 0 1
WC 416 2.2 m² 0 1
Vinterhage 417 27.1 m² 1 1
Medisinsrom 169 9.4 m² 0 1

Fasader

Fløy D

Nord
Materiale
Betong
Taktype
Saltak
Høyde
5.8 m
Vinduer
10
Dører
4
Synlige etasjer
1
Vest
Materiale
Betong
Taktype
Saltak
Høyde
6.0 m
Vinduer
6
Dører
3
Synlige etasjer
1
Øst
Materiale
Betong
Taktype
Saltak
Høyde
6.0 m
Vinduer
6
Dører
2
Synlige etasjer
1
Sør
Materiale
Tre
Taktype
Saltak
Høyde
6.0 m
Vinduer
0
Dører
0
Synlige etasjer
1

Hendelser

17.04.2026 Søknad om rammetillatelse - Søstuveien 25 - gbnr. 15/1 - Endring av bygg utvendig