Extension Igangsettingstillatelse Offentlig

Tilbygg og ombygging av Hjelmeland barnehage, Ramsbu 35

📍 Vågavegen 34 , 4130 HJELMELAND

Nøkkelinfo

Sakstype
Tilbygg
Bygningstype
Offentlig
Bruksareal
659 m²
Kommune
Hjelmeland
Fylke
Rogaland
Gnr / Bnr
62 / 4
Saksnummer
2025/1476
Fase
Igangsettingstillatelse

Om byggesaken

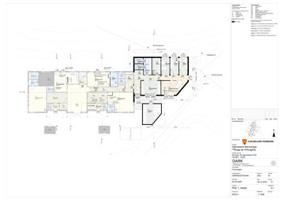
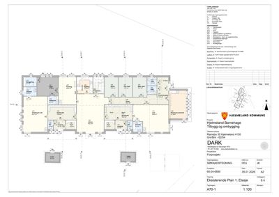
Prosjektet omfatter tilbygg og ombygging av Hjelmeland barnehage på Ramsbu 35. Det bygges et nytt tilbygg på ca. 236 m² BYA med administrasjonsdel, personalrom, garderober og toaletter, samt et teknisk loft på ca. 98 m². Eksisterende tilbygg på 25 m² rives. Bygget får universell utforming med ny utvendig gangadkomst til 2. etasje. Ombyggingen inkluderer endringer i brann- og lydskiller, ventilasjonsanlegg, brannalarm, nødlys og VA-anlegg. Uteområdene oppgraderes med ny gangsti, støttemurer, flettverksgjerde og lekeapparater. Bygningen har to etasjer med flere avdelinger for barn, tekniske rom, garderober og kontorer. Prosjektet er i igangsettingsfase med godkjente igangsettingstillatelser for riving, grunnarbeid og påbygg.

Produkter og materialer

Vinduer Fasadevindu og takvindu

🧱 Tre/Aluminium

Antall: 53

Vinduer i fasade og takvinduer i tilbygg og eksisterende bygg, inkludert gjenbruk av enkelte vinduer

Nye og gjenbrukte vinduer for fasade og tak i tilbygg og ombygde deler

Tak Saltak med taktekking

🧱 Takstein eller tilsvarende

Saltak på eksisterende bygg og tilbygg med tilhørende taktekking

Taktekking og konstruksjon for tilbygg og eksisterende bygg

Kjøkken Kjøkkeninnredning

Innredning i kjøkken og stellerom i tilbygg og ombygde arealer

Kjøkkeninnredning og tilhørende utstyr

Betong Støttemurer

🧱 Betong

Nye støttemurer i betong i forbindelse med omlegging av gangsti og uteområder

Betongarbeid for støttemurer

Elektro Brannalarm og nødlys

Nytt brannalarmanlegg kategori 2 med direktevarsling til brannvesenet, samt nødlys i tilbygg og ombygde arealer

Elektriske installasjoner for brannalarm og nødlys

Fasade Trepanel

🧱 Tre

Trepanelkledning på fasader i tilbygg og eksisterende bygg

Fasadebekledning for tilbygg og ombygde deler

Ventilasjon Ventilasjonsanlegg

Nytt ventilasjonsaggregat i teknisk rom i 2. etasje for administrasjonsdel, tilpasning av eksisterende ventilasjonsanlegg

Ventilasjonsanlegg for tilbygg og eksisterende bygg

Bad Sanitæranlegg og dusj

Toaletter, dusjer og garderober med krav til privatliv og tilgjengelighet

Sanitæranlegg i tilbygg og ombygde arealer

VVS Sanitærinstallasjoner og VA-anlegg

Endring og nyanlegg av VA, nye sanitæranlegg i tilbygg og ombygde arealer, inkludert toaletter og garderober

VVS-installasjoner for sanitær og vann/avløp

Annet Vognskur

Antall: 1

Nytt vognskur på 28,2 m² med ventilasjon og beskyttelse mot støy, vind og forurensning, tilrettelagt for tilsyn

Frittstående vognskur for barnevogner

Terrasse Uteområder og gangstier

🧱 Asfalt, gress, stein

Ny gangsti i asfalt, oppgradering av uteområder med gjenbruk og nye lekeapparater, sandkasser, benker og gjerder

Utomhusanlegg og terrengarbeid

Dører Ytterdører og innvendige dører

🧱 Tre/Glass

Antall: 40

Nye ytterdører og innvendige dører, inkludert gjenbruk av enkelte dører

Dører for innganger, avdelinger og tekniske rom i tilbygg og eksisterende bygg

Rekkverk Flettverksgjerde og rekkverk

🧱 Metall

Nytt flettverksgjerde tilpasset eksisterende gjerde, rekkverk rundt loftsluke og støttemurer

Sikring og avgrensning av uteområder

Grunnarbeid Riving, grunnarbeid og støttemurer

🧱 Betong, jord, asfalt

Riving av eksisterende tilbygg på 25 m², grunnarbeid for nytt tilbygg, nye støttemurer og omlegging av gangsti

Grunnarbeid, riving og støttemurer i forbindelse med tilbygg og uteområder

Gulv Gulvbelegg og overflater

Gulvbelegg valgt for tilfredsstillende renhold, med oppbrettskant på vegg, tilpasset barnehagemiljø

Gulvbelegg og overflatebehandling i tilbygg og ombygde arealer

Fasader

Barnehage

Vest
Materiale
Tre
Taktype
Saltak
Vinduer
11
Dører
1
Synlige etasjer
2
Øst
Materiale
Tre
Taktype
Saltak
Vinduer
10
Dører
2
Balkonger
2
Synlige etasjer
2
Nord
Materiale
Tre
Taktype
Saltak
Vinduer
2
Dører
1
Synlige etasjer
2
Sør
Materiale
Tre
Taktype
Saltak
Vinduer
4
Dører
0
Synlige etasjer
2

Hendelser

16.04.2026 Endelig godkjent UAK Geoteknisk prosjektering | Sv: UAK geoteknisk prosjektering Hjelmeland BArnehagen
25.03.2026 KOPI - Hjelmeland barnehage tiltaksklasser PRO og UTF GEO
23.03.2026 Godkjent betalingsplan | SV: Hjelmeland barnehage
19.03.2026 Avklaring fjerning av trær | SV: Treer i Barnehagen.
19.03.2026 Endelig kontrollrapport og godkjent brannkonsept - UAK RIBr - Tilbygg og ombygging Hjelmeland barnehage
17.03.2026 Svar: Hjelmeland Bhg - Forhåndsmelding
12.03.2026 Igangsettingstillatelse - 62/54, - Påbygg Hjelmeland barnehage
16.02.2026 Svar - Slokkevatn - avklaring frå ROGBR vedr tilbygg, påbygg Hjelmeland barnehage
10.02.2026 62/54 - Igangsettingstillatelse, riving og grunnarbeid
06.02.2026 Bekreftelse TE - SV: Hjelmeland barnehage lagringsplass
23.01.2026 RAMSBU 9 - HJELMELAND BARNEHAGE - INNSPILL PLANER
21.01.2026 62/54 - Delegert vedtak - Rammesøknad
21.01.2026 62/54 - KOPI - Ramsbu 35 Søknad om rammetillatelse
10.06.2025 RAMSBU 9 - HJELMELAND BARNEHAGE - UTTALE TIL PÅBYGG IFBM SAMLOKALISERING AV BARNEHAGENE
21.03.2025 SV: Revidert prisoverslag PE200mm