Extension Rammetillatelse Offentlig

Oppføring av heisbygg og utskifting av heis på Stryn Hotel, Visnesvegen 1

📍 Visnesvegen 1 , 6783 STRYN

Nøkkelinfo

Sakstype
Tilbygg
Bygningstype
Offentlig
Bruksareal
9 m²
Kommune
Stryn
Fylke
Vestland
Gnr / Bnr
45 / 55
Saksnummer
2026/55
Fase
Rammetillatelse

Om byggesaken

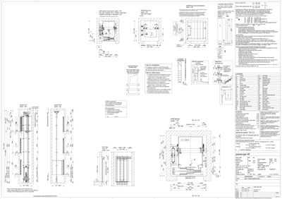
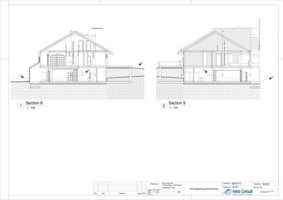
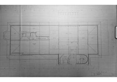
Ny heisbygg på ca. 9 m² oppføres ved Stryn Hotel med samme plassering og høyde som eksisterende heis. Eksisterende heis demonteres og erstattes med en ny Fermator Premium heis med tekniske spesifikasjoner for passasjerløft, inkludert ny heissjakt med gjenbruk av eksisterende sjakt. Bygget har mønehøyde ca. 9,2 meter og gesimshøyde ca. 8,3 meter over gjennomsnittlig planert terreng. Tiltaket inkluderer tekniske installasjoner som elektrisk system, styringsskap, ventilasjon i sjakt, og nødvendige fundamenter og lydisoleringstiltak. Arbeidet utføres i henhold til gjeldende tekniske forskrifter og geotekniske vurderinger for området.

Produkter og materialer

Grunnarbeid Fundamentering for heisbygg

🧱 Betong C20/25

Antall: 1

Fundament tilpasset ny heis og eksisterende grunnforhold, iht. geoteknisk rapport

Grunnarbeid og fundamentering for heisbygg

Ventilasjon Shaft ventilasjon og røykventilasjon

Ventilasjon i heissjakt i henhold til EN81-20/50 og lokale forskrifter

Ventilasjon og røykventilasjon i heissjakt

Maling Innvendig og utvendig maling

Overflatebehandling av heisbygg og sjakt

Maling av nye konstruksjoner og overflater

Elektro Elektrisk installasjon for heis

400 V, 50 Hz strømforsyning, separat belysningskrets, EMC-tilpasset kabling, kontrollskap med mål 500x700x2100 mm

Elektrisk installasjon for drift og styring av heis

Bygningskonstruksjon Heissjakt med fundament og lydisolering

🧱 Betong og lydisolerende materialer

Antall: 1

Gjenbruk av eksisterende sjakt, fundament tilpasset ny heis, lydisolering iht. DIN 8989 og TEK17

Bygging av heissjakt og fundament for ny heis

Heis Passasjerheis Fermator Premium

Antall: 1

Fermator Premium heis med 4000 kg løftekapasitet, 1 m/s hastighet, 2 stopp, 1,48 m² kabin, med elektrisk styringsskap og ventilasjon i sjakt

Ny passasjerheis med tilhørende tekniske komponenter for utskifting av eksisterende heis

Tømrer Bygging av heisbyggets yttervegger og tak

🧱 Tre og isolasjon

Antall: 1

Yttervegger og tak i samsvar med tekniske krav og geoteknisk vurdering

Oppføring av heisbyggets bygningskonstruksjoner

Hendelser

16.04.2026 Vedtak: Løyve til utskifting av heis på Stryn Hotel - gbnr. 45/55
01.04.2026 Vi innvilger søknaden om samtykke etter automatisk saksbehandling
01.04.2026 Gbnr. 45/55 - supplering av søknad
31.03.2026 Vedkomande søknad om utskiftning av heis - gbnr. 45/55 (Stryn Hotel)
10.02.2026 Gbnr. 45/55 - søknad om løyve til tiltak i eitt trinn
07.01.2026 Uttale til nabovarsel om oppføring av heisbygg - Visnesvegen 1 - gbnr. 45/55