ChangeOfUse UnderBehandling Other

Bruksendring og veggoppføring i driftsbygg, Flyplassveien 41, Svolvær

📍 Flyplassveien 41 , 8300 SVOLVÆR

Nøkkelinfo

Sakstype
Bruksendring
Bygningstype
Other
Bruksareal
103 m²
Kommune
Vågan
Fylke
Nordland - Nordlánnda
Gnr / Bnr
19 / 66
Saksnummer
25/3150
Fase
Under behandling

Om byggesaken

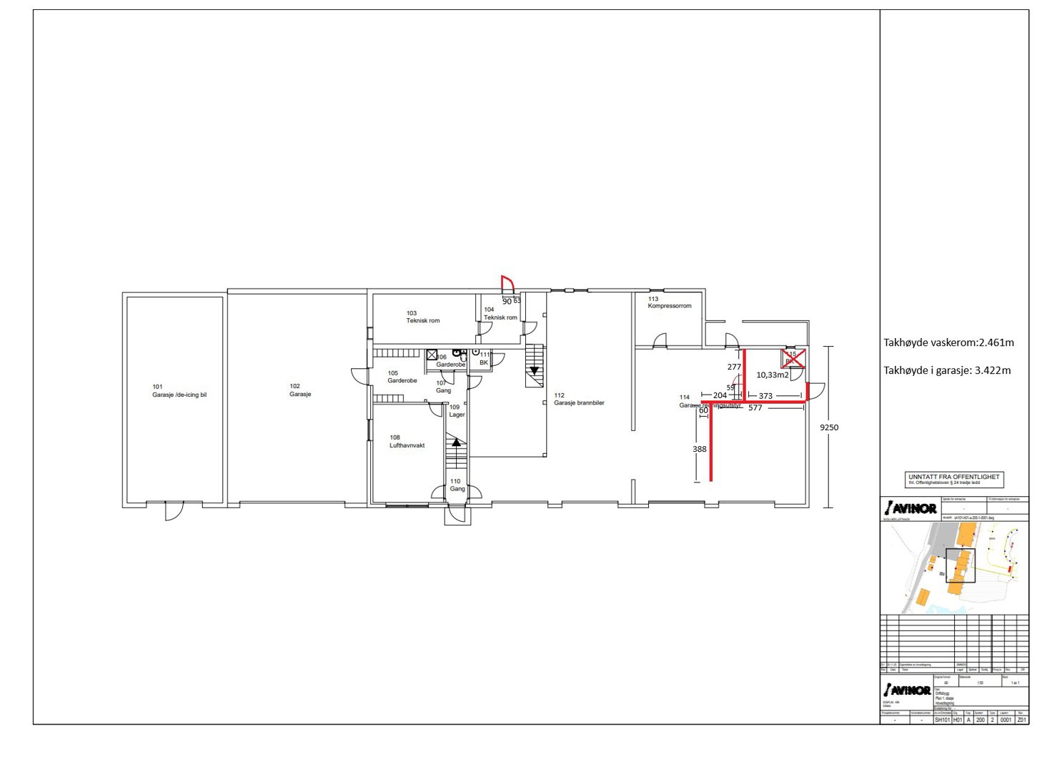
Bruksendring av rom i driftsbygget ved Svolvær Lufthavn Helle, inkludert oppføring av et nytt vaskerom med fast himling og baderomsplater, samt en ny vegg som deler garasjeløpene. Vaskerommet har betongdekke med limt baderomsbelegg, en Swedor trefyllingsdør (90x210 cm) og et vindu på 60x60 cm med brystningshøyde 1,5 m. Endringene omfatter også justeringer i kompressorrom og hovedinngang med vindfang, samt mindre justeringer i garasjeareal og portplassering. Totalt areal for garasje er 103,33 m² med flere romfunksjoner som garderobe, teknisk rom, lager og vaskerom. Det er to trapper i bygget. Endringene har ikke påvirket branncelleinndeling eller brannløsninger.

Produkter og materialer

Dører Ytterdør i tre

🧱 Swedor trefyllingsdør

Antall: 1

Dør 90x210 cm i vaskerom

Trefyllingsdør til vaskerom

Tak Himling vaskerom

🧱 Sponplater, fast himling, CC60 inndeling

Antall: 1

Fast himling i vaskerommet

Himling i vaskerom med sponplater og CC60 inndeling

Vinduer Fasadevindu

Antall: 1

Vindu 60x60 cm med brystningshøyde 1,5 m

Vindu i vaskerom som tidligere

Tømrer Innvendige vegger og himling

🧱 Treverk, sponplater, baderomsplater

Oppføring av vegg og himling i vaskerom og deling av garasjeløp

Tømrerarbeid for vegger og himling i driftsbygget

Gulv Betongdekke med baderomsbelegg

🧱 Betong, limt baderomsbelegg

Antall: 1

Betongdekke med limt baderomsbelegg i vaskerom

Gulv i vaskerom med betong og baderomsbelegg

Grunnarbeid Betongdekke

🧱 Betong

Betongdekke i vaskerom og garasje

Betonggulv i vaskerom og garasjeområder

Fasade Innvendig vegg

🧱 CC60, 36x98 treverk, Fibo trespo baderomsplater

Antall: 1

Ikke bærende vegg som deler garasjeløpene

Ny vegg som deler garasjeløpene i driftsbygget

Brannvern Brannkonsept og rømningsveier

Oppdatert brannkonsept kreves pga endringer som påvirker rømningsveier

Dokumentasjon og tiltak for brannsikkerhet og rømningsveier

Plantegning

Garasje 103.3 m²

Etasje 1 103.3 m²

Rom Areal Vinduer Dører
Garasje /de-icing bil 101 0.0 m² 0 1
Garasje 102 0.0 m² 0 1
Teknisk rom 103 0.0 m² 0 1
Teknisk rom 104 0.0 m² 0 1
Garderobe 105 0.0 m² 0 1
Garderobe 106 0.0 m² 0 1
Gang 107 0.0 m² 0 2
Lufthavnvakt 108 0.0 m² 0 1
Lager 109 0.0 m² 0 1
Gang 110 0.0 m² 0 1
BK 111 0.0 m² 0 1
Garasje brannbiler 112 0.0 m² 0 1
Kompressorrom 113 0.0 m² 0 1
Garasje 114 10.3 m² 0 1
Vaskerom 115 0.0 m² 0 1
Garasje elektro 116 0.0 m² 0 1

Hendelser

20.04.2026 Gbn 19/66 - Forespørsel om tilleggsopplysninger
11.02.2026 Oppdatert tegninger - Bruksendring - Flyplassveien 41, Svolvær
31.12.2025 Foreløpig svar på søknad - Bruksendring - gbn 19/66 Flyplassveien 41
03.12.2025 Søknad om bruksendring gbn 19/66, Svolvær Luftavn Helle