ChangeOfUse Soeknad Other

Bruksendring og fasadeendring av uthus i Gamle Songevei 352

📍 Gamle Songevei 352 , 4909 SONGE

Nøkkelinfo

Sakstype
Bruksendring
Bygningstype
Other
Bruksareal
23 m²
Boenheter
2
Kommune
Tvedestrand
Fylke
Agder
Gnr / Bnr
73 / 23
Saksnummer
2026/1334
Fase
Søknad

Om byggesaken

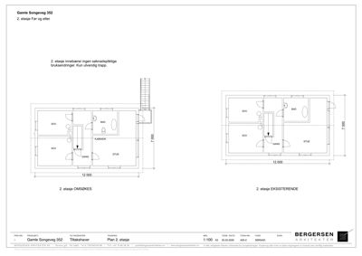
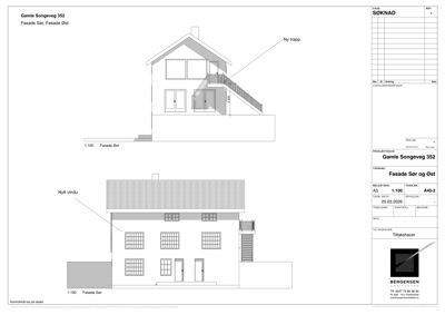
Eksisterende uthus i Gamle Songevei 352 endres til en selvstendig boenhet med varig opphold i 1. etasje, inkludert rom for bad, stue, soverom og kontor. Bygget har store, opprinnelige vinduer som gir godt lys og utsyn. Fasadeendringer inkluderer fjerning av boddør, innsetting av nytt vindu, ny brannstige og utvendig trapp. Bygget oppgraderes med isolasjon, ventilasjon og radonmålinger for å sikre godt inneklima og brannsikkerhet. Det er bodplass i kjeller, og bygget ligger ca. 16 meter fra hovedboligen. Tiltaket øker antall boenheter på eiendommen fra en til to.

Produkter og materialer

Dører Boddør fjernes, panel settes opp

🧱 Trepanel

Antall: 1

Fjerning av boddør i 1. etasje, erstattes med panel

Fasadeendring for å lukke boddøråpning

Vinduer Store opprinnelige vinduer

Store, åpningsbare vinduer med godt utsyn, opprinnelige fra før 1962

Vinduer for varig opphold i stue, soverom og kontor i 1. etasje

Dører Ny utvendig trapp med dør

Antall: 1

Ny utvendig trapp til 2. etasje med dør

Trapp for utvendig adkomst til 2. etasje

VVS Bad med sanitærutstyr

Antall: 1

Badekar, toalett og vask i 1. etasje

Sanitærinstallasjoner for bad i ny boenhet

Tømrer Oppgradering av fasade og innvendige overflater

🧱 Trepanel, gips

Fjerning av dør, montering av panel, innvendig oppgradering

Bygningsmessige arbeider for bruksendring og fasadeendring

Ventilasjon Mekanisk ventilasjon med uteluft

Lufting med ventil, god uteluft

Ventilasjon for oppholdsrom

Grunnarbeid Radonmålinger og tiltak

Radonmålinger og tiltak ved høye verdier over 100 Bq/m3

Sikring mot radon i bygget

Isolasjon Isolering av rom for varig opphold

Isolerte vegger og tak for godt inneklima

Isolasjon for oppvarmede rom i 1. etasje

Elektro Elektrisk installasjon for ny boenhet

Elektrisk anlegg for belysning, ovner og utstyr i boenhet

Elektrisk installasjon i uthus for varig opphold

Rekkverk Brannstige fasademontert

🧱 Metall

Antall: 1

Ny brannstige montert på fasade for rømningsvei

Brannsikkerhet og rømningsmulighet fra 2. etasje

Fasader

Enebolig

Sør
Taktype
Saltak
Takmat.
Tegl
Vinduer
6
Dører
2
Balkonger
1
Synlige etasjer
2
Øst
Taktype
Saltak
Vinduer
3
Dører
2
Balkonger
1
Synlige etasjer
2
Nord
Taktype
Saltak
Vinduer
4
Dører
2
Synlige etasjer
2
Vest
Taktype
Saltak
Vinduer
4
Dører
0
Balkonger
1
Synlige etasjer
2

Hendelser

16.04.2026 Mangelbrev, 73/23, bruksendring og fasadeendring
09.04.2026 Oversendes for uttalelse, utvidet bruk av avkjøring
27.03.2026 Søknad om bruksendring og fasadeendring