ChangeOfUse Soeknad Other

Bruksendring til bolig med fasadeendring i Nygårdsgaten 6, Bergen

📍 Nygårdsgaten 6 , 5015 BERGEN

Nøkkelinfo

Sakstype
Bruksendring
Bygningstype
Other
Bruksareal
1,503 m²
Boenheter
19
Kommune
Bergen
Fylke
Vestland
Gnr / Bnr
164 / 797
Saksnummer
BYGG-2026/12653
Fase
Søknad

Om byggesaken

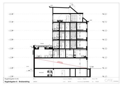
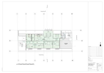
Bruksendring av eksisterende kontorbygg i Nygårdsgaten 6, Bergen, til boligformål med totalt 19 nye boenheter fordelt på 2. til 6. etasje. Bygningen er en eldre murbygning i nybarokk stil med 6 etasjer og kjeller, som oppgraderes med nye fasadevindu i 2. etasje, glasskupler i tak på tilbygg, og utvidelse av takterrasse som felles uteoppholdsareal. Leilighetene er romslige, med flere familieboliger over 80 m², og bygningen får oppgradert teknisk standard, inkludert brannsikkerhet og ventilasjon. Det etableres ikke bilparkeringsplasser, men det er krav om sykkelparkering i kjeller. Tiltaket inkluderer dispensasjoner for trinnfri adkomst, støy, utearealtilgang, plankrav, byggegrenser mot veg og nabo. Bygningen ligger i gul støysone, men tiltaket sikrer tilfredsstillende støyforhold innendørs. Eiendommen har god tilgang til offentlig uteoppholdsareal i gangavstand. Bygningen har heis og oppgraderes i tråd med TEK17.

Produkter og materialer

VVS Vannmåler og sanitæranlegg

Separering av overvann og spillvann, tilpasning av vannmåler for boligdel

Oppgradering av vann- og avløpsinstallasjoner i forbindelse med bruksendring

Elektro Balansert ventilasjon

Antall: 19

Balansert ventilasjon i alle boenheter for å oppfylle støy- og inneklimakrav

Ventilasjonsanlegg for boligene

Trapper Innvendig trapp og trapperom

Antall: 1

Eksisterende trapperom opprettholdes, tilpasset boligbruk

Trapperom for etasjetilgang

VVS Sprinkleranlegg

Sprinkleranlegg planlegges for brannsikkerhet, krever forhåndsuttalelse fra Bergen Vann ved etablering

Brannsikkerhetstiltak med sprinkleranlegg

Annet Brannsikkerhetstiltak

Oppgradering til TEK17 brannkrav, inkludert sprinkleranlegg og rømningsveier

Brannsikkerhet i boligbygg

Vinduer Fasadevindu

🧱 tre/alu med lydisolasjon

Antall: 46

Vinduer i 2. etasje endres til oppdelt fasadeuttrykk, lydisolerende vinduer for støyreduksjon

Nye fasadevindu i 2. etasje med lydisolasjon for å oppfylle støykrav

Maling Innvendig og utvendig maling

Oppgradering av overflater i leiligheter og fasade etter fasadeendringer

Maling og overflatebehandling

Tak Takterrasse

🧱 eksisterende takflate med terrasseoppbygging

Antall: 1

Utvidelse av eksisterende takterrasse på tilbygg i 2. etasje som felles uteoppholdsareal

Felles takterrasse for boenheter i 3. etasje

Gulv Innvendige gulvflater

Oppgradering av gulv i boenheter i tråd med TEK17 krav

Nye gulvflater i leiligheter

Heis Personheis

Antall: 1

Heis med innvendig størrelse minimum 1,1 x 2,1 m i henhold til TEK17

Heis for tilgjengelighet til boligetasjer

Dører Ytterdører og leilighetsdører

Antall: 19

Dører til boenheter og fellesarealer, inkludert heisdør

Nye dører i boligseksjoner og fellesarealer

Fasade Fasadeendring

🧱 betong og tegl

Endring av vindusrekkene i 2. etasje, fasadeuttrykk tilpasses eksisterende arkitektur

Fasadeendring for å harmonisere fasadeuttrykk

Grunnarbeid Ingen nye grunnarbeider

Ingen endring i bygningens grunnflate eller fundamentering

Ingen nye grunnarbeider da det er bruksendring

Vinduer Takvindu/Glasskupler

🧱 glass med innsynsbeskyttelse

Antall: 2

Glasskupler i tak på tilbygg i 2. etasje for lysinnslipp, med materiale som forhindrer innsyn

Glasskupler for økt lysinnslipp i tak på tilbygg

Sykkelparkering Sykkelparkering i kjeller

Antall: 31

Særskilt tyverisikker sykkelparkering i felles underetasje med låst adgang

Sykkelparkering for beboere

Fasader

Hovedbygg

Øst
Taktype
Saltak
Høyde
6.8 m
Mønehøyde
25.2 m
Vinduer
1
Dører
0
Balkonger
1
Synlige etasjer
2

Bruksendring

Sør
Materiale
Betong
Taktype
Flatt tak
Takmat.
Tegl
Høyde
11.5 m
Mønehøyde
20.0 m
Vinduer
23
Dører
2
Synlige etasjer
4

Nygårdsgaten 6

Nord
Materiale
Betong
Taktype
Saltak
Takmat.
Tegl
Høyde
11.0 m
Mønehøyde
25.4 m
Vinduer
23
Dører
2
Balkonger
1
Synlige etasjer
4

Hendelser

17.04.2026 Nygårdsgaten 6 Søknad om rammetillatelse 164/797