ChangeOfUse UnderBehandling Other

Ombygging og bruksendring av Gammelbrygga i Sildpollveien 44

📍 Sildpollveien 44 , 8415 SORTLAND

Nøkkelinfo

Sakstype
Bruksendring
Bygningstype
Other
Bruksareal
1,125 m²
Kommune
Sortland - Suortá
Fylke
Nordland - Nordlánnda
Gnr / Bnr
43 / 12
Saksnummer
2025/5684
Fase
Under behandling

Om byggesaken

Gammelbrygga i Sildpollveien 44 er en eksisterende lagerbygning på totalt 1125 m² fordelt på tre etasjer som ombygges og bruksendres til forsamlingslokale med møterom, kafé, selskapslokale og personallokaler. Bygningen får isolerte yttervegger, nye vinduer og inngangsdører i gavlfasadene, samt en ny utvendig sirkulær rømningstrapp. Det etableres et enkelt kjøkken, heis/løfteplattform og tekniske installasjoner som ventilasjon, brannalarmanlegg, sprinkleranlegg og vann- og avløpsanlegg med ny slamavskiller. Fasadeendringene er mindre og bevarer byggets opprinnelige karakter. Brannkonseptet er grundig analysert med simuleringer og tiltaket oppfyller kravene i TEK17. Bygget skal brukes til interne arrangementer og sosiale aktiviteter for Holmøy-konsernet og deres gjester.

Produkter og materialer

VVS Sprinkleranlegg

Automatisk sprinkleranlegg i hele gammelbrygga, brannskille EI60 mot øvrige deler

Sprinkleranlegg for brannslokking og sikkerhet

Trapper Intern trapp mellom etasjer

Antall: 1

Intern trapp forbinder alle plan, fri bredde 160 cm, brannmotstand R30

Intern trapp for vertikal kommunikasjon og rømningsvei

VVS Ventilasjon og klimainstallasjoner

Ventilasjonsanlegg med steng-inn strategi, plassert i eksisterende lagerbygg

Ventilasjons- og klimainstallasjoner for bygget

Kjøkken Enkelt kjøkken med oppvask

Antall: 1

Enkelt kjøkken for sporadisk kafévirksomhet, 32-37 m², med oppvask

Kjøkken for servering i forsamlingslokalet

Maling Brannhemmende overflatebehandling

Overflater i trapper og himlinger med brannklasse B-s1,d0

Brannhemmende maling og overflatebehandling

Heis Løfteplattform/heis

Antall: 1

Heis/løfteplattform i bygget, utformet i henhold til heisdirektivet og maskindirektivet

Løfteinnretning for tilgjengelighet og universell utforming

VVS Vannforsynings- og avløpsanlegg

Ny 16,5 m³ slamavskiller erstatter eksisterende, tilknytning til offentlig vann og avløp ikke tilgjengelig, privat vannverk og utslippstillatelse foreligger

Vann- og avløpsløsning med slamavskiller i henhold til utslippstillatelse

Isolasjon Ubrennbar isolasjon

🧱 A2-s1,d0

Ubrennbar isolasjon i yttervegger og bygningsdeler

Isolasjon for brannsikkerhet og energieffektivitet

Betong Plasstøpte betongkonstruksjoner

Plasstøpte betongkonstruksjoner i bygget

Betongkonstruksjoner for bærekraft og stabilitet

Trapper Utvendig sirkulær rømningstrapp

Antall: 1

Utvendig sirkulær rømningstrapp med fri bredde 150 cm, skjermet 5 meter på hver side, plassert 3 meter fra fasade

Ny utvendig rømningstrapp for sikker rømningsvei fra plan 2 og 3

Fasade Vinduer og inngangsdører i gavlfasader

Nye vinduer og inngangsdører i gavlfasader, mindre fasadeendringer som bevarer byggets opprinnelige karakter

Nye vinduer og dører i gavlfasader for ombygging og fasadeendring

Elektro Brannalarmanlegg og ledesystem

Heldekkende brannalarmanlegg kategori 2 med optiske røykdetektorer, elektriske markeringsskilt og ledelys, ikke lavt montert linjeledesystem

Brannalarmanlegg og ledesystem for sikker rømningsvei

Tømrer Tømrerarbeid og montering av trekonstruksjoner

Tømrerarbeid, montering av trekonstruksjoner, fasadekledning og taktekking

Tømrerarbeid for ombygging og fasadeendring

Fasade Isolering av yttervegger

🧱 Isolasjon klasse A2-s1,d0 (ubrennbar)

Yttervegger isoleres med ubrennbar isolasjon i henhold til brannkrav

Isolasjon av yttervegger for bedre termisk ytelse og brannsikkerhet

Plantegning

Eksisterende Lagerbygg 428.0 m²

Etasje 1 428.0 m²

Rom Areal Vinduer Dører
Lager Lager 209.0 m² 0 1
Gang Gang 39.0 m² 0 2
Varmt lager Varmt lager 64.0 m² 0 1
Vask Gard Vask Gard 14.0 m² 0 1
VG-Dusj VG-Dusj 3.0 m² 0 1
Opphold Opphold 20.0 m² 0 1
Kontor Kontor 20.0 m² 0 1
Rekv Rekv 5.0 m² 0 1

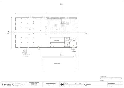
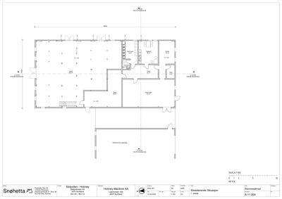
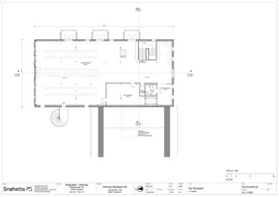
Hovedbygg 495.0 m²

Etasje 1 495.0 m²

Rom Areal Vinduer Dører
Brygga 101 209.0 m² 4 1
Kafe 102 128.0 m² 2 2
Kjøkken/Oppvask 103 35.0 m² 0 1
HC WC 104 5.0 m² 0 1
Heis 105 4.0 m² 0 1
Inngang 106 14.0 m² 0 1

Gammelbrygga 614.0 m²

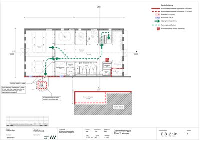
Etasje 2 614.0 m²

Rom Areal Vinduer Dører
Materom 1 Materom 1 115.0 m² 0 1
Materom 2 Materom 2 24.0 m² 0 1
Materom 3 Materom 3 13.0 m² 0 1
Bibliotek Bibliotek 13.0 m² 0 1
Peis Peis 0.0 m² 0 0
Vitrimleareal Vitrimleareal 124.0 m² 0 0
Entré/Garderobe Entré/Garderobe 8.0 m² 0 1
Løfteplattform Løfteplattform 4.0 m² 0 1
EL - rom EL - rom 7.0 m² 0 1
Personallrom/kontor Personallrom/kontor 13.0 m² 0 1
Garderobe Garderobe 4.0 m² 0 1
BK BK 0.0 m² 0 0
Toalett Toalett 0.0 m² 0 0
HC WC HC WC 4.0 m² 0 1

Fasader

Eksisterende Lagerbygg

Nord
Taktype
Flatt tak
Høyde
9.3 m
Mønehøyde
13.6 m
Vinduer
4
Dører
0
Synlige etasjer
1
Øst
Taktype
Flatt tak
Høyde
7.4 m
Mønehøyde
11.8 m
Vinduer
0
Dører
0
Synlige etasjer
1

Eksisterende Fasad - Nord

Nord
Taktype
Saltak
Høyde
9.3 m
Mønehøyde
13.6 m
Vinduer
10
Dører
3
Balkonger
2
Synlige etasjer
3

Eksisterende Fasad - Øst

Øst
Taktype
Saltak
Høyde
9.3 m
Mønehøyde
13.6 m
Vinduer
12
Dører
3
Balkonger
3
Synlige etasjer
3

Hendelser

20.04.2026 Gnr. 43, bnr. 12 - endret fasade vedr. balkonger
20.04.2026 Gnr. 43, bnr. 12 - rammetillatelse til ombygging, bruksendring og fasadeendring, Sildpollveien 44
20.04.2026 Uttalelse kommunearkitekt - ingen merknader
20.04.2026 Søknad om igangsettingstillatelse
15.04.2026 Forslag til veiendring
09.02.2026 Supplering av søknad
19.12.2025 Gnr. 43, bnr. 12 - Sildpollveien 44 - Søknaden må suppleres med flere opplysninger
09.10.2025 Etterkontroll – planene oppfyller nå kravene i regelverket
08.10.2025 Vi har foretatt etterkontroll av planene for tiltaket
06.10.2025 Supplering av søknad
23.09.2025 Søknad om rammetillatelse