ChangeOfUse UnderBehandling Other

Bruksendring til bolig i Skulevegen 23, Bergen

📍 Skulevegen 23 , 5265 YTRE ARNA

Nøkkelinfo

Sakstype
Bruksendring
Bygningstype
Other
Bruksareal
48 m²
Boenheter
1
Kommune
Bergen
Fylke
Vestland
Gnr / Bnr
307 / 19
Saksnummer
BYGG-2026/00137
Fase
Under behandling

Om byggesaken

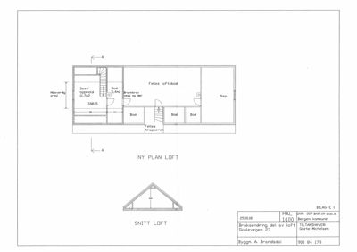
Bruksendring av deler av underetasjen i en eksisterende flermannsbolig i Skulevegen 23, Ytre Arna, Bergen, fra næringslokale til boligformål. Det etableres en ny boenhet på ca. 48 m² med 3 rom (stue/kjøkken, soverom og et ekstra rom som kan brukes som soverom eller kontor). Det gjøres mindre fasadeendringer på byggets nordside, inkludert utskifting av vinduer med åpningsfelt og et lite takoverbygg ved inngangspartiet. Eksisterende verksted i kjelleretasjen opprettholdes uendret. Utearealet foran boenheten opparbeides som grønt og skjermende fellesareal på ca. 12 m², med tilgang til større felles utearealer og veranda. Det søkes dispensasjon fra krav til uteoppholdsareal, parkering og byggegrense mot kommunal vei. Tiltaket innebærer ingen økning i bygningsvolum eller endring i plassering, og har begrenset trafikkpåvirkning. Det er etablert avtaler om bruk av eksisterende parkeringsplasser på eiendommen.

Produkter og materialer

Fasade Mindre fasadeendringer

🧱 tre

Oppgradering og justering av fasade på nordsiden, opprettholder byggets arkitektoniske helhet

Mindre fasadeendringer i forbindelse med bruksendring

Grunnarbeid Opparbeidelse av uteareal

🧱 grøntareal, rekkverk

Antall: 12

Opparbeidelse av ca. 12 m² grønt og skjermende uteareal foran boenheten

Opparbeidelse av uteareal som erstatter tidligere uregulert parkering

Parkering Eksisterende parkeringsplasser

Antall: 3

Tre utendørs parkeringsplasser og én garasje med to plasser på eiendommen, tilgjengelig for tiltakshaver via avtale

Bruk av eksisterende parkeringsplasser for ny boenhet, dispensasjon fra krav om egen parkeringsplass

Maling Innvendig maling

Innvendig maling og overflatebehandling i boenheten

Oppgradering av overflater i boenheten

Tømrer Innvendig ombygging

Innvendig ombygging av ca. 48 m² fra næringslokale til bolig med 3 rom og bod

Ombygging av planløsning for boligformål med plassbygde løsninger

Elektro Oppgradering elektro for bolig

Oppgradering av elektriske installasjoner til boligstandard

Tilpasning av elektroinstallasjoner i forbindelse med bruksendring

Vinduer Fasadevindu med åpningsfelt

🧱 tre/alu eller tilsvarende

Antall: 4

Nye vinduer med åpningsfelt på nordsiden, samme type og størrelse som naboleilighet

Utskifting av eksisterende faste vinduer til vinduer med åpningsfelt for bedre ventilasjon og lys

VVS Sanitærinstallasjoner

Nye våtrom og sanitærinstallasjoner i boenheten

Oppgradering og tilpasning av VVS for boligformål

Tak Takoverbygg ved inngang

Antall: 1

Lite takoverbygg ved inngangspartiet på nordsiden

Nytt lite takoverbygg for værbeskyttelse ved inngang

Brannvern Brannkonsept

Brannkonsept utarbeidet av Firesafe AS, tiltaksklasse 1 midlertidig vurdert

Brannprosjektering og uavhengig kontroll for tiltaket

Gulv Innvendige gulv

Oppgradering av gulv i boenheten til boligstandard

Nye gulvflater i boenheten

Plantegning

Enebolig 0.0 m²

Etasje 0 0.0 m²

Rom Areal Vinduer Dører
Felles inngang 001 26.7 m² 0 1
Felles trapp 002 9.0 m² 0 0
Bod 003 2.5 m² 0 1
Kontor 004 7.0 m² 1 1
Toalett 005 3.6 m² 0 1
Stue kjøkken 006 21.4 m² 2 1
Sov 007 11.0 m² 1 1

Etasje 1 0.0 m²

Rom Areal Vinduer Dører
Sov 101 11.0 m² 1 1
Stue kjøkken 102 21.4 m² 1 1
Toalett 103 3.6 m² 0 1
Bod 104 2.5 m² 0 1
Kontor 105 7.0 m² 0 1
Soverom Sov 11.0 m² 1 1
Stue kjøkken Stue kjøkken 21.4 m² 1 1
Toalett Toalett 3.6 m² 0 1
Bod Bod 2.5 m² 0 1
Kontor Kontor 7.0 m² 0 1

Etasje 2 0.0 m²

Rom Areal Vinduer Dører
Sov./opphold SNR:5 11.7 m² 0 1
Bod U01 5.4 m² 0 1
Felles loftsbod U02 0.0 m² 0 0
Bod U03 0.0 m² 0 1
Bod U04 0.0 m² 0 1
Bod U05 0.0 m² 0 1
Disp. U06 0.0 m² 0 1
Gang 201 15.0 m² 0 6
Soverom 202 12.0 m² 1 1
Soverom 203 12.0 m² 1 1
Soverom 204 12.0 m² 1 1
Soverom 205 12.0 m² 1 1
Spise-arbeidskrok 206 18.0 m² 1 1
Kjøkken 207 10.0 m² 1 1
Bad 208 6.0 m² 0 1
Kjeller 209 10.0 m² 0 1
Spise-arbeidskrok 210 18.0 m² 1 1
Kjøkken 211 10.0 m² 1 1
Bad 212 6.0 m² 0 1
Kjeller 213 10.0 m² 0 1

Fasader

Enebolig

Øst
Materiale
Tre
Taktype
Saltak
Takmat.
Tegl
Høyde
6.5 m
Mønehøyde
15.4 m
Vinduer
16
Dører
1
Balkonger
4
Synlige etasjer
3
Vest
Materiale
Tre
Taktype
Saltak
Høyde
6.7 m
Mønehøyde
15.4 m
Vinduer
5
Dører
2
Balkonger
1
Synlige etasjer
2

Hendelser

13.04.2026 Ber om status i sak
17.02.2026 Ettersendt dokumentasjon, uttalelse fra bymiljøetaten
11.02.2026 Skulevegen Supplering av søknad 307/19
10.02.2026 Skulevegen Gjennomføringsplan 307/19
05.02.2026 Vedrørende godkjenning
13.01.2026 Behov for tilleggsopplysninger 307/19 Skulevegen , søknad om bruksendring
08.01.2026 Bekreftelse på mottatt søknad
07.01.2026 Skulevegen Søknad om rammetillatelse 307/19