ChangeOfUse Rammetillatelse Other

Varig bruksendring til kafé/restaurant i Torvgaten 7, Arendal

📍 Torvgaten 7 , 4836 ARENDAL

Nøkkelinfo

Sakstype
Bruksendring
Bygningstype
Other
Bruksareal
150 m²
Kommune
Arendal
Fylke
Agder
Gnr / Bnr
501 / 83
Saksnummer
2026/5970
Fase
Rammetillatelse

Om byggesaken

Bruksendring av ca. 150 m² i 1. etasje og underetasje i en eldre bygård i Arendal sentrum fra butikk/forretningslokale til kafé/restaurant med ca. 40 sitteplasser og 3 ansatte. Bygningen er SEFRAK-registrert og ligger i et område med bevaringshensyn, noe som medfører fravik fra flere TEK17-krav som energi, ventilasjon, radonsikring og universell utforming. Det er etablert brannkonsept med tiltak som brannalarmanlegg kategori 2, manuelle brannslanger og tilrettelegging for rømningsveier, inkludert vurdering av fravik på dørbredde til rømningsvei. Lokalet har utvendig rampe for rullestol, men HC-toalett er på et halvplan med begrenset tilgjengelighet. Ventilasjon og tekniske installasjoner er tidligere oppgradert for kafédrift. Det foreligger samtykke fra Arbeidstilsynet, men etterkontroll har avdekket mangler i dokumentasjon av arbeidsmiljøkrav som må utbedres.

Produkter og materialer

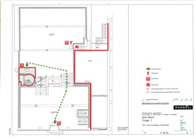
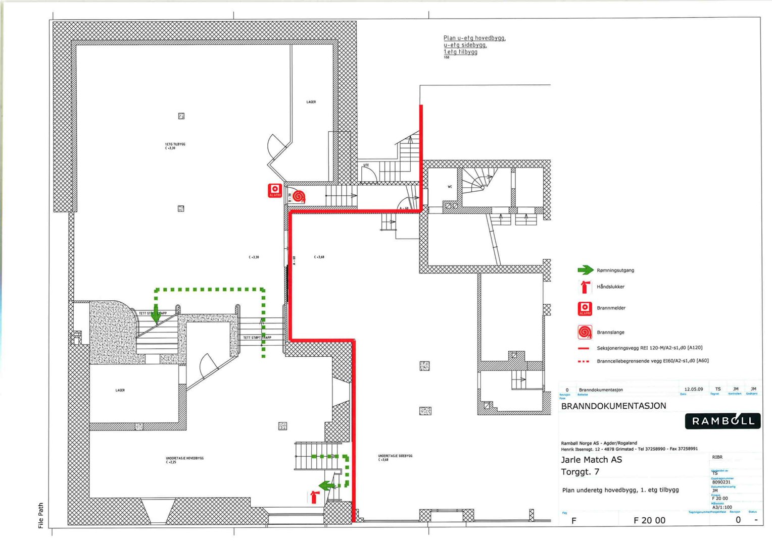
Brannvern Branncellebegrensende vegger og dører

🧱 Gips, ubrennbare materialer

Branncellebegrensende vegger EI60, dører B30 S, branngips og stålplate bak kullgrill

Branncellebegrensning i kaféområdet med kullgrill

Tømrer Oppgradering av dør til rømningsvei

Antall: 1

Dør med fri bredde ca 1 meter, slår mot rømningsretning, kompenserende tiltak med brannalarm

Rømningsdør tilpasset funksjonskrav med fravik fra TEK17

Annet Oppdatert plantegning og dokumentasjon

Oppdatert plantegning, snitt og fasadetegninger, dokumentasjon av personalfasiliteter, ventilasjon og universell utforming

Dokumentasjon som må ettersendes for å oppfylle krav til arbeidsmiljø

Brannvern Manuelt slokkeutstyr

Brannslanger installert i bygget, årlig kontroll kreves

Manuelt slokkeutstyr for brannsikkerhet

Sanitær HC-toalett

Antall: 1

HC-toalett på halvplan opp fra inngangsplanet, tilgjengelig med assistanse

Toalett tilrettelagt for funksjonshemmede med begrenset tilgjengelighet

Fasade Rullestolrampe utvendig

Antall: 1

Utvendig rampe for rullestoladkomst til inngang

Tilrettelegging for tilgjengelighet ved inngang

Brannvern Frityrslokkeanlegg

Anbefalt installasjon av slokkeanlegg for frityrgryter

Slokkeanlegg for frityr anbefales av forsikringsselskap

Brannvern Brannalarmanlegg kategori 2

Antall: 1

Brannalarmanlegg kategori 2 installert og tilpasses ombygging

Brannalarmanlegg for tidlig varsling og sikker rømning

Ventilasjon Ventilasjonsanlegg

Antall: 1

Eksisterende ventilasjonsanlegg oppgradert for kafédrift, med planlagt gjennomgang og forbedringer

Ventilasjon tilpasset kafé og kjøkkendrift

Plantegning

Hovedbygg 0.0 m²

Etasje 0 0.0 m²

Rom Areal Vinduer Dører
Lager 0 0.0 m² 0 0
Lager 0 0.0 m² 0 0

Etasje 2 0.0 m²

Rom Areal Vinduer Dører
Gang 0 0.0 m² 0 1
Trapp 0 0.0 m² 0 0

Etasje 3 0.0 m²

Rom Areal Vinduer Dører
Garderobe 301 0.0 m² 0 1
Systue 302 0.0 m² 0 1
Lager 303 0.0 m² 0 1
Trapp 304 0.0 m² 0 0
Spiserom 305 0.0 m² 0 1
Dekorasjonsrom 306 0.0 m² 0 1
Lager 307 0.0 m² 0 1
Kontor 308 0.0 m² 0 1

Enebolig 0.0 m²

Etasje 1 0.0 m²

Rom Areal Vinduer Dører
Gang 101 0.0 m² 0 0

Etasje 2 0.0 m²

Rom Areal Vinduer Dører
Gang 201 0.0 m² 0 0

Hendelser

17.04.2026 501/83 - Foretatt etterkontroll av planene for tiltaket
30.03.2026 Vedtak - Torvgata 7 - bruksendring
30.03.2026 Fakturagrunnlag
27.03.2026 Torvgaten 7 Supplering av søknad 501/83
26.03.2026 501/83 - Innvilger søknad om samtykke etter automatisk saksbehandling
25.02.2026 Sentral godkjenning
18.02.2026 Torvgaten 7, melding om mottatt søknad
17.02.2026 Torvgaten 7 Søknad om tillatelse i ett trinn 501/83