NewConstruction Soeknad Other

Oppføring av pumpestasjon og pumpeledning i Vestre Jakobselv

📍 2/1 , 9802 VESTRE JAKOBSELV

Nøkkelinfo

Sakstype
Nybygg
Bygningstype
Other
Bruksareal
7 m²
Kommune
Vadsø
Fylke
Finnmark - Finnmárku - Finmarkku
Gnr / Bnr
2 / 1
Saksnummer
2026/1497
Fase
Søknad

Om byggesaken

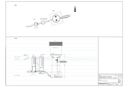
Ny pumpestasjon (PS2) med overbygg på ca. 7,2 m² og pumpeledning for spillvann etableres i Vestre Jakobselv. Pumpestasjonen bygges på Finnmarkseiendommens grunn med en pumpesump på 6,3 meters dybde og et overbygg i tre med saltak og flatt tak, ca. 2,4 x 3,0 m i grunnflate og 3,54 m gesimshøyde. Pumpeledningen med diameter 175 mm legges i grøft langs vei og henges opp i brua over Jakobselva. Tiltaket inkluderer også nødoverløp for avlastning ved pumpestans. Prosjektet er del av et større VA-rehabiliteringsprosjekt for å forbedre avløpsrensing og redusere utslipp til sjø.

Produkter og materialer

Annet Nødoverløp

Antall: 1

Overløpssystem tilknyttet pumpestasjon for avlastning ved pumpestans

Nødoverløp for å hindre tilbakeslag og overløp ved pumpestans

VVS Pumpeledning spillvann

🧱 PVC eller tilsvarende rørmateriale

Diameter 175 mm, legges i grøft 50-100 cm dybde, oppheng i bru over Jakobselva

Pumpeledning for spillvann fra pumpestasjon over elva til østsiden

Elektro Elektronisk styringsenhet

Antall: 1

Plassert over sikkerhetsgrense på kote +3,4 moh

Styringsenhet for pumpene i pumpestasjonen

Bygningskomponenter Pumpestasjon med overbygg

🧱 Tre

Antall: 1

Overbygg ca. 2,4 x 3,0 m, høyde 3,54 m, saltak og flatt tak, gesimshøyde 3,54 m, mønehøyde 6,5 m

Pumpestasjon med overbygg i tre, inkludert pumpekum på 6,3 m dybde

Grunnarbeid Grøft for pumpeledning

Grøft 50-100 cm dybde langs vei og bru

Grøft for nedlegging av pumpeledning

Betong Pumpesump/kum

🧱 Betong

Antall: 1

Pumpesump på 6,3 meters dybde

Betongkum for pumpestasjonens pumpeanlegg

Tømrer Bygningskledning og taktekking

🧱 Tre, saltak og flatt tak

Trefasader, saltak på nord og øst, flatt tak på sør og vest

Kledning og taktekking for pumpestasjonens overbygg

Dører Ytterdør til pumpestasjon

🧱 Tre eller annet egnet materiale

Antall: 1

Dør på nordfasade, inngang til pumpestasjon

Ytterdør for tilgang til pumpestasjonens tekniske rom

Fasader

Pumpestasjon

Nord
Materiale
Tre
Taktype
Saltak
Høyde
3.5 m
Mønehøyde
6.5 m
Vinduer
0
Dører
1
Synlige etasjer
2
Sør
Materiale
Tre
Taktype
Flatt tak
Høyde
3.5 m
Mønehøyde
6.5 m
Vinduer
0
Dører
0
Synlige etasjer
2
Øst
Materiale
Tre
Taktype
Saltak
Høyde
3.5 m
Mønehøyde
6.5 m
Vinduer
0
Dører
0
Synlige etasjer
2
Vest
Materiale
Tre
Taktype
Flatt tak
Høyde
3.5 m
Mønehøyde
6.5 m
Vinduer
0
Dører
0
Synlige etasjer
2

Hendelser

17.04.2026 Søknad om dispensasjon etter plan- og bygningsloven § 19-1 GBNR 2/1 og 5/7