NewConstruction Soeknad Other

Oppføring av flytebrygge og vei i Brattland, Rødøy

📍 44/17 , 8187 JEKTVIK

Nøkkelinfo

Sakstype
Nybygg
Bygningstype
Other
Bruksareal
90 m²
Kommune
Rødøy
Fylke
Nordland - Nordlánnda
Gnr / Bnr
44 / 17
Saksnummer
2026/264
Fase
Søknad

Om byggesaken

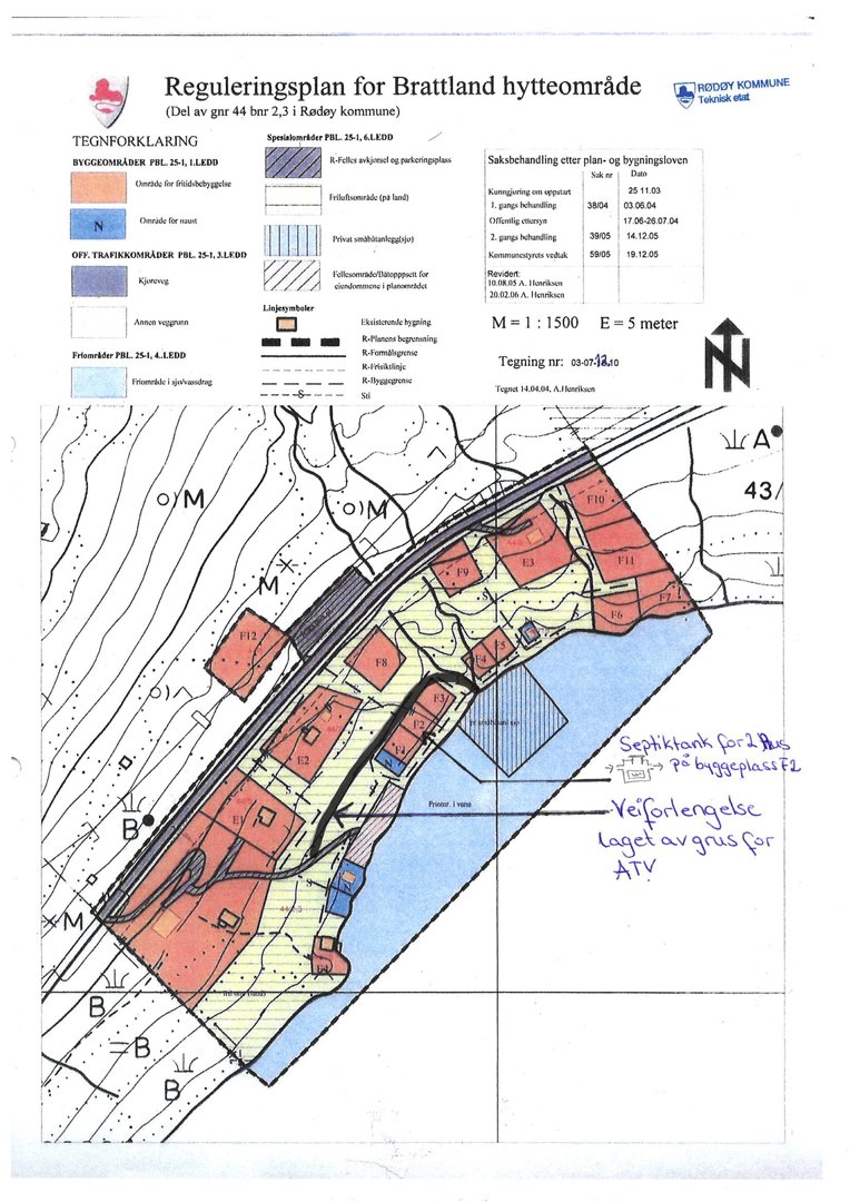
Prosjektet omfatter bygging av en flytebrygge i sjø på 15 x 2,5 meter med ankerfester og landgang på 10 x 1 meter, samt en betongbrygge på 20,4 x 3,5 meter for privat småbåtanlegg. I tillegg inngår forlengelse av eksisterende vei med grusdekke, grøfter og stikkrenner for adkomst til bryggeområdet. Landkaien bygges som en trekai med landfeste og ankring. Tiltaket er plassert innenfor regulert område for småbåtanlegg og friluftsområde i Brattland hytteområde. Prosjektet inkluderer grunnarbeider, vegbygging og konstruksjon av bryggeanlegg for privat bruk tilknyttet hyttefeltet.

Produkter og materialer

Tømrer Trebrygge konstruksjon

🧱 tre

Trebrygge konstruksjon for landkai og flytebrygge

Tømrerarbeid for bygging av trekai og flytebrygge

Fasade Flytebrygge

🧱 tre

Antall: 1

Flytebrygge 15 x 2,5 m med ankerfester, lodd eller bolt, anker på 750 kg eller mer, kjetting 25 mm eller mer

Flytebrygge i tre med nødvendig ankring og landfeste for småbåtanlegg

Annet Ankring og landfeste

🧱 anker, kjetting, lodd

Anker på 750 kg eller mer, kjetting 25 mm eller mer, lodd eller bolt for flytebrygge

Ankring og landfeste for flytebrygge og landkai

Grunnarbeid Veibygging

🧱 grus, bærelag, grøfter, stikkrenner

Forlengelse av vei med grusing, grøfter og stikkrenner

Grunnarbeid og veiutvidelse for adkomst til bryggeanlegg

Fasade Landkai / trekai

🧱 tre og betong

Antall: 1

Landkai/trekai med landfeste og ankring, betongbrygge 20,4 x 3,5 m

Landkai i tre og betong for adkomst til flytebrygge

Hendelser

23.03.2026 Søknad om tillatelse i ett trinn, brygger - gnr. 44 bnr. 17