NewConstruction UnderBehandling Other

Nybygg klubbhus med riving av takoverbygg i Blakerveien 1549

📍 Blakerveien 1545 , 1930 AURSKOG

Nøkkelinfo

Sakstype
Nybygg
Bygningstype
Other
Bruksareal
664 m²
Kommune
Aurskog-Høland
Fylke
Akershus
Gnr / Bnr
193 / 1
Saksnummer
25/02065
Fase
Under behandling

Om byggesaken

Nybygg klubbhus for Romerike Golfklubb på totalt 664 m² fordelt på to etasjer. Bygget inneholder blant annet kontorer, garderober, kjøkken, storsal, møterom, café og tekniske rom. Bygget har to trapper og er planlagt med funksjoner tilpasset klubbens drift, inkludert varemottak, golfsimulatorer og sosial sone. Det skal rives et eksisterende takoverbygg i forbindelse med nybygget. Prosjektet inkluderer også kryssing av fylkesvei for VA-ledninger med nødvendig gravetillatelse. Arbeidstilsynet har gjennomført etterkontroll og påpekt behov for dokumentasjon på personalrom, garderober, ventilasjon og medvirkning. Gjennomføringsplan og ansvarsfordeling er etablert med flere ansvarlige foretak innen arkitektur, elektro, bygg, VVS og grunnarbeider.

Produkter og materialer

Elektro Brannalarmanlegg og ledesystem

Installasjon av brannalarmanlegg og ledesystem

Annet Heis/Platform

Antall: 2

Heis eller plattformheis for tilgjengelighet mellom etasjer

Fasade Kledning og tak

Fasade og takkonstruksjoner for nytt klubbhus

Vinduer Fasadevindu

Antall: 2

Vinduer i kontor og hovedkontor, 1 vindu hver

Fasadevindu i kontor og hovedkontor

Maling Innvendig og utvendig maling

Maling av innvendige og utvendige flater

Gulv Gulvbelegg og overflater

Gulvbelegg i ulike rom, tilpasset funksjon

Betong Plasstøpte betongkonstruksjoner

Betongarbeider for fundamenter og konstruksjoner

Kjøkken Kjøkkeninnredning

Kjøkkeninnredning i klubbhusets kjøkken

Grunnarbeid Veg- og grunnarbeider

Kryssing av fylkesvei for VA-ledninger med gravetillatelse og arbeidsvarsling

Grunnarbeider for nybygg og VA-ledninger, inkludert kryssing under fylkesvei

Ventilasjon Mekanisk ventilasjon

Ventilasjonsanlegg for tilfredsstillende inneklima i arbeids- og personalrom

Ventilasjonsanlegg med balansert mekanisk ventilasjon og prosesstilpasset avsug

Dører Innvendige dører

Antall: 18

Dører til rom som WC, garderober, kontorer, kjøkken, storsal, møterom

Innvendige dører i klubbhusets ulike rom

Bad WC og dusjrom

WC og dusjrom for ansatte og besøkende

Tømrer Montering av trekonstruksjoner

🧱 Trekonstruksjoner

Tømrerarbeid for bygging av klubbhusets trekonstruksjoner

VVS Sanitærinstallasjoner

Sanitærinstallasjoner for WC, vaskerom og kjøkken

Trapper Innvendige trapper

Antall: 2

To innvendige trapper mellom etasjene

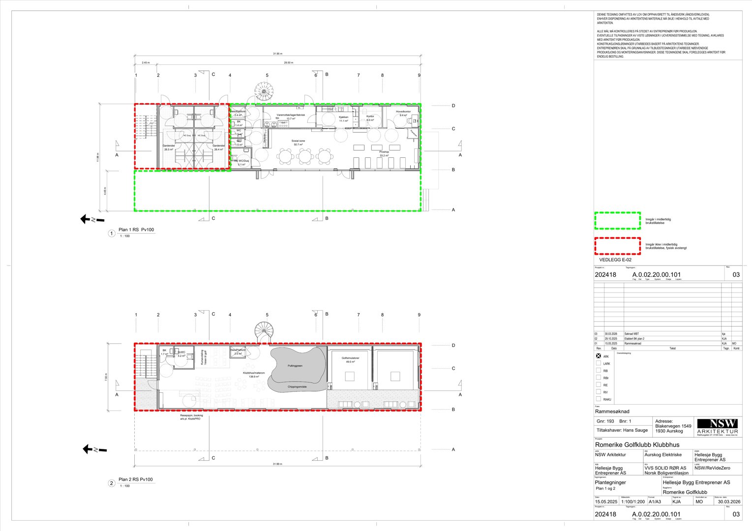
Plantegning

Romerike Golfklubb Klubbhus 663.8 m²

Etasje 1 428.8 m²

Rom Areal Vinduer Dører
Gang 101 11.1 m² 0 2
WC 102 1.0 m² 0 1
WC 103 1.0 m² 0 1
Garderobe 104 28.5 m² 0 1
Garderobe 105 28.4 m² 0 1
Vaskerom 106 12.7 m² 0 1
Kjøkken 107 11.1 m² 0 1
Kontor 108 4.6 m² 1 1
Hovedkontor 109 9.4 m² 1 1
Storsal 110 50.7 m² 0 1
Picnic 111 33.2 m² 0 0

Etasje 2 235.0 m²

Rom Areal Vinduer Dører
Gang 201 11.1 m² 0 2
WC 202 5.2 m² 0 1
Klubbhusmøterom 203 138.0 m² 0 1
Påleggsplass 204 49.0 m² 0 0
Choppingområde 205 0.0 m² 0 0
Café/Restauranter 206 29.0 m² 0 0

Hendelser

09.04.2026 25/02065-34 193/1/5 Mangelbrev
09.04.2026 25/02065-33 193/1 Oversender avklaring fra fylkeskommunen
08.04.2026 25/02065-36 193/1 Gjennomføringsplan
08.04.2026 25/02065-35 193/1 Gjennomføringsplan
08.04.2026 25/02065-37 193/1 Gjennomføringsplan
30.03.2026 25/02065-31 193/1 Søknad om midlertidig brukstillatelse for deler av tiltaket
06.11.2025 25/02065-30 193/1/5 Etterkontroll – planene oppfyller nå kravene i regelverket
21.10.2025 25/02065-29 193/1/5 Gjennomført etterkontroll av planene for tiltaket
10.10.2025 25/02065-28 193/1/5 Bekrefter tidligere avklaring
10.10.2025 25/02065-25 193/1/5 Bekrefter å ha mottatt forhåndstilsagn om tillatelse til krysning av fylkesveien
10.10.2025 25/02065-26 193/1/5 Bekrefter kommunens vurdering
10.10.2025 25/02065-24 193/1/5 Bekrefter at tillatelse til krysning av fylkesvei vil bli gitt og orienterer om søknadsprosesser til fylkeskommunen før krysning kan iverksettes