NewConstruction Soeknad Other

Flere byggeprosjekter i Bodø kommune, bl.a. Nedre Bjørkåsen og Parkveien 61

Nøkkelinfo

Sakstype
Nybygg
Bygningstype
Other
Bruksareal
4,000 m²
Boenheter
18
Kommune
Bodø
Fylke
Nordland - Nordlánnda
Saksnummer
2026/1
Fase
Søknad

Om byggesaken

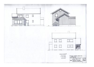
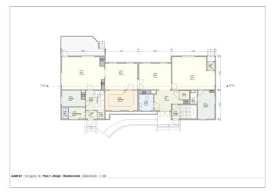
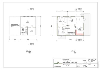
Prosjektet omfatter flere byggeprosjekter i Bodø kommune med totalt ca. 4000 m² bygningsareal. Det inkluderer oppføring av tre eneboliger i rekke med carporter og sportsboder i Nedre Bjørkåsen, omfattende ombygging og fasadeendringer i Parkveien 61 sameie med to seksjoner, samt ny hangar for redningshelikoptertjenesten med tilhørende tekniske bygg. Andre tiltak inkluderer ny garasje i Åsveien 9, ombygging av eksisterende bygg i Rauds gate 8, og flere næringsbygg og tekniske anlegg som oljeutskillere og renseanlegg. Byggene varierer i størrelse og funksjon, med materialbruk som trekledning, tegl, betong og stål, og inkluderer tekniske installasjoner som ventilasjon, VVS, elektro og avløpsrenseanlegg. Prosjektene er i søknadsfasen med nabovarsler sendt ut og dispensasjonssøknader for enkelte tiltak.

Produkter og materialer

VVS Minirenseanlegg

🧱 Polypropylen (PP), plast

Votec minirenseanlegg for sanitært avløpsvann, kapasitet 5-10 personekvivalenter, SBR-prosess, med fellingskjemikalium

Avløpsrenseanlegg for boligområder

VVS Oljeutskiller

🧱 Overflatebehandlet stål, rustfritt stål

Odin SUK-H liggende oljeutskiller med koalesensfilter, sandfang, alarm og magnesium offeranoder, klasse I etter EN 858-1

Oljeutskiller for verksted og industri

Grunnarbeid Drenering, grunnarbeid

Grunnarbeid for nye bygg, etablering av oljeutskiller og minirenseanlegg

Grunnarbeid og drenering for byggeprosjekter

Bygningskomponenter Vinduer

🧱 Tre, aluminium, sikkerhetsglass

Antall: 100

Vinduer i boligprosjekter med sikkerhetsglass der brystningshøyde < 0,8 m, takvindu i Parkveien 61, fasadevindu i tre og aluminium

Vinduer til bolig- og næringsbygg, inkludert takvinduer og fasadevindu

Gulv Parkett, fliser

🧱 Eikeparkett, fliser

Eikeparkett i boligprosjekter, fliser i våtrom

Gulvbelegg for boligbygg

Terrasse Terrasse og platting

🧱 Tre

Terrasser i boligprosjekter, platting i strandsonen Larsvika

Utendørs terrasse- og plattingløsninger

Varmepumpe Varmepumpe

Varmepumpe nevnt som mulig oppvarmingsløsning i boligprosjekter

Oppvarmingsløsning for boligbygg

Bygningskomponenter Trapper

🧱 Tre, stål

Antall: 10

Innvendige trapper i boligprosjekter, trapp fra kjeller til 1. etasje i Parkveien 61, trapper i hangarbygg

Innvendige trapper i bolig- og næringsbygg

Elektro Lavspent tavlerom, EL-tavler

Lavspent tavlerom i hangarbygg, EL-tavler i teknisk bygg

Elektroinstallasjoner for næringsbygg

Rekkverk Rekkverk i flatt stål

🧱 Stål

Rekkverk på balkonger og takterrasse i hangarbygg

Rekkverk for balkonger og takterrasser

Annet Solskjerming, skilting

LED-skilt og skilting for Kiwi Alstad Bodø prosjekt

Skilting og reklame for næringsbygg

Ventilasjon Ventilasjonsanlegg

Ventilasjonsanlegg med inntak og utkast, røykluker i vindusbånd i hangarbygg

Ventilasjonsløsninger for næringsbygg

Mur Stabbesteinsmur

🧱 Stein

Stabbesteinsmur for terrengtilpasning i Drivhusbakken 2

Murer for terrengtilpasning

Garasjeport Port til hangar og garasje

🧱 Stål, glassfelt

Porter med glassfelt i hangarbygg, garasjeporter i boligprosjekter

Porter for garasje og næringsbygg

Tak Saltak, valmtak

🧱 Tegl, stål, sandwichelementer

Saltak med tegl i boligprosjekter, valmtak i hangar og industribygg, stål sandwichelementer i hangar

Takmaterialer for bolig- og næringsbygg

Bygningskomponenter Dører

🧱 Tre, glass, stål

Antall: 50

Ytterdører, balkongdører, verandadører, dobbeltdører og porter i hangarbygg

Dører til bolig- og næringsbygg, inkludert porter til hangar

Fasade Trekledning, fibersementplater, aluminiumspanel

🧱 Tre, fibersement, aluminium

Trekledning i boligprosjekter, fibersementplater i inntrukne inngangspartier, aluminiumspanel i hangarbygg

Fasadematerialer for bolig- og næringsbygg

Betong Ringmur, betongplate

🧱 Betong

Ringmur for tilbygg i Nedre Bjørkåsen, betongplate for oljeutskiller

Betongkonstruksjoner for fundamentering

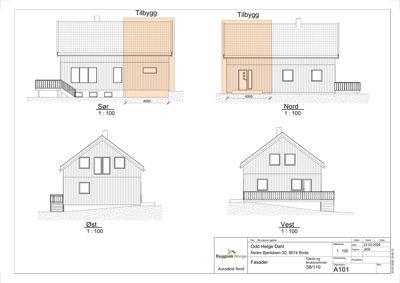
Fasader

Enebolig

Nordøst
Materiale
Tre
Taktype
Saltak
Vinduer
6
Dører
0
Synlige etasjer
1
Sørøst
Materiale
Tre
Taktype
Saltak
Vinduer
1
Dører
1
Synlige etasjer
1
Nordvest
Materiale
Tre
Taktype
Valmtak
Vinduer
0
Dører
0
Synlige etasjer
1
Sørvest
Materiale
Tre
Taktype
Saltak
Vinduer
4
Dører
1
Synlige etasjer
1
Øst
Materiale
Tre
Taktype
Saltak
Takmat.
Tegl
Høyde
3.5 m
Mønehøyde
6.5 m
Vinduer
5
Dører
1
Synlige etasjer
1
Nord
Materiale
Tre
Taktype
Saltak
Takmat.
Tegl
Høyde
3.5 m
Mønehøyde
6.5 m
Vinduer
1
Dører
1
Synlige etasjer
1
Vest
Materiale
Tre
Taktype
Saltak
Takmat.
Tegl
Høyde
3.5 m
Mønehøyde
6.5 m
Vinduer
4
Dører
1
Synlige etasjer
1
Sør
Materiale
Tre
Taktype
Saltak
Takmat.
Tegl
Høyde
3.5 m
Mønehøyde
6.5 m
Vinduer
2
Dører
1
Synlige etasjer
1

HALL - MultiPitch 25-7

Ukjent
Vinduer
0
Dører
2
Synlige etasjer
1

HALL - MultiPitch

Ukjent
Taktype
Saltak
Vinduer
0
Dører
0
Synlige etasjer
0

BEKO-hallen

Ukjent
Materiale
Betong
Taktype
Valmtak
Vinduer
2
Dører
1
Synlige etasjer
1

Nordlysbyen 17A (VENSTRE)

Sør
Materiale
Tre
Taktype
Saltak
Takmat.
Tegl
Høyde
16.6 m
Mønehøyde
17.8 m
Vinduer
13
Dører
1
Synlige etasjer
3

Nordlysbyen 17B (HØYRE)

Sør
Materiale
Tre
Taktype
Saltak
Takmat.
Tegl
Høyde
16.6 m
Mønehøyde
17.8 m
Vinduer
13
Dører
1
Synlige etasjer
3

Hendelser

22.04.2026 Olav V gate 107B, gbnr 138/3903 - varsel til gbnr 138/4276 seksjon 1 og 2
22.04.2026 Kvittering på mottatt nabovarsel - Nordlysbuen 17a og 17b
21.04.2026 Åsveien 9, gbnr 31/856 - varsel til gbnr 31/1308 og 30/341
21.04.2026 Plassmyrveien 15, gbnr 138/4153 - varsel til gbnr 138/4154 og 4769
21.04.2026 Nabovarsel fra 138/4253 - varsel til gbnr 138/700, 4486, 4187, 4210 og 4253
21.04.2026 Jernbaneveien 96, gbnr 138/700 - varsel til gbnr 138/1790 og 700
21.04.2026 Fridtjof Nansens vei 5, gbnr 138/4472 - varsel til gbnr 138/2348, 2765, 4443, 756 og 2633
21.04.2026 Vollveien 33, gbnr 30/346 - varsel til gbnr 30/309 og 92
21.04.2026 Nabovarsel fra 138/4775 - varsel til gbnr 138/4722, 4305 og 4775
21.04.2026 Plassmyrveien 15, gbnr138/4153 - varsel til gbnr 138/4154, 4327 og 4802
17.04.2026 Kvitberget 6, gbnr 138/184 - varsel til gbnr 138/1809
17.04.2026 Rauds gate 8, gbnr 138/4589 - varsel til gbnr 138/4758
16.04.2026 Drivhusbakken 2, gbnr 138/3273 - varsel til gbnr 138/3671
15.04.2026 Larsvika, Kjerringøy gbnr 124/80 - varsel til gbnr 124/1, fnr 0,1, 3, 7, 9, 13, 17 og 36
15.04.2026 Nordlysbuen 17A og 17B, gbnr 138/2325 og 2326 - varsel til gbnr 138/4719
14.04.2026 Gnr 28/4 - varsel til 28/8, 29/18, 29/28 og 29/91
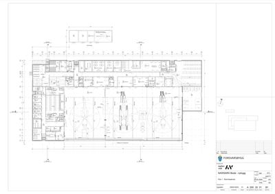
13.04.2026 Nabovarsel - Ny hangar for redningshelikoptertjenesten 138/4791
13.04.2026 Per Helgesens vei 99, gbnr 39/299 - varsel til gbnr 39/349, 40/8, 40/72 og 40/199
13.04.2026 Parkveien 61, gbnr 138/661 - varsel til gbnr 138/644, 138/678 og 138/679
13.04.2026 Parkveien 61, gbnr 138/661 - varsel til gbnr 138/644, 138/678 og 138/679
10.04.2026 Baggliveien 17, gbnr 43/91- varsel til gbnr 43/916
10.04.2026 Haakon VII gate 22B, gbnr 138/1326 - varsel til gbnr 138/4736
31.03.2026 Sjøgata 57, gbnr 138/3583 - varsel til gbnr 138/700
27.03.2026 Breivikveien 19, gbnr 138/810 - varsel til 138/1411, 138/4726 og 138/4729
27.03.2026 Aspmyra, gbnr 138/2633 - varsel til gbnr 138/2581, 138/2633, 138/2635, 138/2765, 138/4190
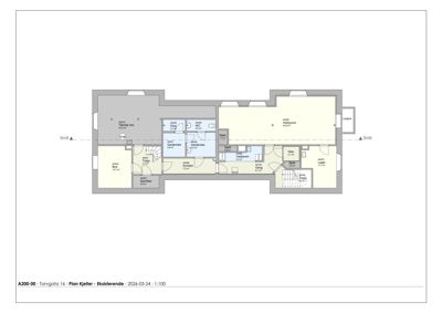
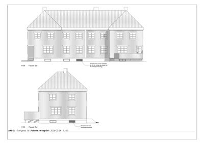
26.03.2026 Torvgata 16, gbnr 138/300 - varsel til gbnr 138/4722
26.03.2026 Elias Blix vei 1B, gbnr 138/1467 - varsel til gbnr 138/4737
24.03.2026 Nedre Bjørkåsen 20, gbnr 38/10 - varsel til gbnr 40/54, 38/379, 38/114, 40/231 og 38/357
24.03.2026 Hestehovveien, gbnr 138/4788 - varsel til gbnr 145/9 og 138/3759
24.03.2026 Nedre Bjørkåsen, gbnr 38/114 - varsel til gbnr 40/54, 40/231, 38/379 og 38/357
23.03.2026 Langstranda 3, gbnr 138/2514 - varsel til gbnr 138/2499 og 138/2496
23.03.2026 Teglverkveien 1, gbnr 138/4221 - varsel til gbnr 138/2408 og 145/58
20.03.2026 Mølnhågen 2, gbnr 238/65 - varsel til gbnr 238/44
20.03.2026 Louise Engens vei 7 , gbnr 40/444 - varsel til gbnr 40/580 og 145/66
18.03.2026 Klokkerveien 21, gbnr 38/542 - varsel til gbnr 38/775
17.03.2026 Burøyveien 138/4762 - vasel til 138/4557 og 138/700
17.03.2026 General Fleischers gate 16A, 138/1596 - varsel til 138/2886
13.03.2026 Naustberget 1, gnr 29/208 - varsel til gnr 29/180, 29/70 og 145/41