NewConstruction UnderBehandling Other

Oppføring av Tesla hurtigladeanlegg i Brugata, Ringebu

📍 Brugata 1 , 2630 RINGEBU

Nøkkelinfo

Sakstype
Nybygg
Bygningstype
Other
Kommune
Ringebu
Fylke
Innlandet
Gnr / Bnr
46 / 10
Saksnummer
2025/4876
Fase
Under behandling

Om byggesaken

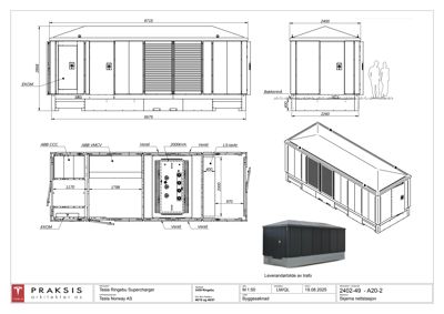
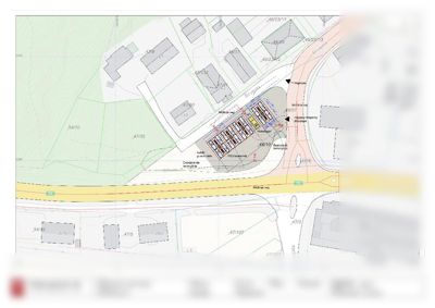
Ny Tesla Supercharger ladestasjon med 16 hurtigladere og tilhørende nettstasjon etableres på et flatt, gruset parkeringsområde i Brugata, Ringebu. Anlegget inkluderer ladestolper med inntil 250 kW ladefart, tekniske installasjoner som strømkabinetter og nettstasjon, samt tilrettelegging av uteområder med grøntarealer, sittegrupper, avfallsbeholdere og infoskjerm. Ladeanlegget plasseres nærmere enn gjeldende byggegrenser mot E6, fylkesveg og kommunal veg, og det er gitt dispensasjon med vilkår om sikkerhetssoner, snøopplag og siktlinjer. Adkomst skjer via kommunal veg Brugata, etter avslag på avkjørsel direkte fra fylkesveg. Tiltaket er i tråd med ny områderegulering for Vålebru og støtter det grønne skiftet ved å tilby infrastruktur for elbiler.

Produkter og materialer

Grunnarbeid Asfalt og grusdekke

🧱 asfalt, grus

Asfalt- og grusdekke på parkerings- og kjørearealer

Opparbeidelse av parkeringsplass og kjøreareal for ladestasjon

Elektro Hurtiglader

Antall: 16

Tesla V4 hurtigladere med opptil 250 kW ladefart, innbygget betalingsterminal, åpen for alle elbiler med Type2/CCS

16 hurtigladere for elbiler med tilhørende ladestolper og betalingsterminaler

Elektro Nettstasjon

Antall: 1

ABB CMV ABB CCC 2000 kVA nettstasjon med ventilasjon, trafo og LS-tavle

Nettstasjon for strømforsyning til ladestasjonene

Fasade Grøntareal

🧱 lett buskbeplantning, plen

Grøntrabatt med lett buskbeplantning rundt nettstasjon og strømmast, grøntareal ved innkjøring

Grøntarealer og beplantning for å gi et lunere preg og bedre utnyttelse av området

Betong Betongheller

🧱 betong

Betongheller i utemøbleringsområdet

Hellelagt sone for utemøblering

Grunnarbeid Fundamentering og grunnarbeid

Grunnarbeid og fundamentering for ladestasjoner

Grunnarbeid og fundamentering for ladestolper og nettstasjon

Fasade Utemøblering

Sittegrupper, avfallsbeholdere på stativ, infoskjerm installert av kommunen

Utemøblering for ladekunder med sittegrupper, avfallsbeholdere og infoskjerm

Hendelser

21.04.2026 46/10 Endringer av situasjonsplan og nabovarsling
09.04.2026 Avslag på endret eller utvidet bruk av avkjørsel FV 2578 Brugata - 3439-45/57 i Ringebu kommune
11.03.2026 Svar- 46/10 Etablering av ladesstasjon
19.02.2026 Grunneieravtaler
16.01.2026 Avslag på endret eller utvidet bruk av avkjørsel - FV 2578
18.12.2025 46/10 - Melding om vedtak
16.12.2025 46/10 - Vedtak tesla ladestasjoner
15.12.2025 46/10 - Melding om vedtak
02.12.2025 46/10 - Spørsmål om høringsuttalelse
02.12.2025 46/10 - Angående innsendt klage på vedtak
27.11.2025 46/10 - Dispensasjon for oppføring av tesla-ladestasjoner
27.11.2025 Ny situasjonstegning i tråd med SVV
21.11.2025 Svar på Klage på dispensasjonsbehandling av Tesla-ladestasjoner
21.11.2025 46/10 - Dispensasjon for oppføring av el-ladestasjoner
20.11.2025 46/10 Svar på dispensasjon - reguleringsplan - el-ladestasjoner
17.11.2025 46/10 Uttalelse til - Søknad om dispensasjon for el-ladestasjon
14.11.2025 46/10 Klage og høringsuttalelse
13.11.2025 46/10 og 46/57 Svar på uttalelse til - dispensasjon - reguleringsplan - el-ladestasjon
11.11.2025 46/10 Klage på vedtak
10.11.2025 46/10 - Ber om uttalelse til dispensasjon for el-ladestasjon
10.11.2025 46/57 Vedrørende søknad om dispensasjon
29.10.2025 46/10 - Melding om vedtak
08.10.2025 Svar- Tesla SCH Ringebu - tilleggskrav fra kommunen
07.10.2025 Dispensasjon for oppføring av hurtigladestasjoner i Ringebu
06.10.2025 46/10 - Angående innsendt dispensasjonssøknad
09.09.2025 46/10 Søknad om tillatelse i ett trinn