Facade
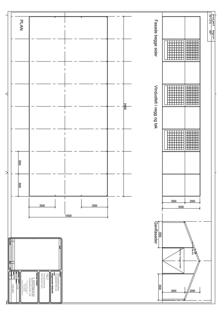
Fasadetegning som viser oppriss av gavelfasaden og vindusfelt i vegg og tak.
1 / 5
NewConstruction
Soeknad
Other
Oppføring av sesongbasert salgstelt for hagesenter i Eidsvollvegen 2
📍 Eidsvollvegen 2 , 2080 EIDSVOLL
Nøkkelinfo
- Sakstype
- Nybygg
- Bygningstype
- Other
- Bruksareal
- 252 m²
- Kommune
- Eidsvoll
- Fylke
- Akershus
- Gnr / Bnr
- 158 / 54
- Saksnummer
- 2026/2231
- Fase
- Søknad
Om byggesaken
Ny sesongbasert salgstelt på 24 x 10,5 meter med pulttak og fire vinduer, plassert på parkeringsareal ved Eidsvollvegen 2. Teltet har åpning i begge gavlender og vindusfelt i vegger og tak, og skal benyttes i perioden april til september årlig. Området avgrenses med nettinggjerde som er åpent for gjennomsyn. Teltet fungerer som midlertidig handelsareal for hagesenterets salg av planter og hagerelaterte produkter. Parkeringsplassen vil være åpen resten av året, og tiltaket inkluderer også plassering av containere og utstyr i tilknytning til teltet.
Produkter og materialer
Fasade
Vindusfelt i vegg og tak
Antall: 4
Vindusfelt i vegg og tak i salgstelt
Vindusfelt for naturlig lys i salgsteltets vegger og tak
Tømrer
Montering av telt og gjerde
Antall: 1
Montering av telt og nettinggjerde
Utførelse av montering av salgstelt og gjerde rundt området
Grunnarbeid
Oppsetting av telt på parkeringsareal
Antall: 1
Oppsetting på asfaltert parkeringsareal
Grunnarbeid for oppsetting av salgstelt på parkeringsplass
Tak
Pulttak
Antall: 1
Pulttak på salgstelt
Pulttak på salgsteltet for avrenning og beskyttelse
Fasade
Nettinggjerde
🧱 Netting
Antall: 1
Nettinggjerde rundt avgrenset område
Nettinggjerde for avgrensning av salgsteltets område, åpent for gjennomsyn
Annet
Containere
Antall: 2
Container 2,5m x 12,2m
Containere tilknyttet hagesenterets drift ved salgsteltet
Fasader
Salgstelt
Ukjent
- Taktype
- Pulttak
- Vinduer
- 4
- Dører
- 0
- Synlige etasjer
- 1
Hendelser
21.04.2026
Gbnr. 158/54 -Blomsterkroken Eidsvoll - Tegning av salgstelt
15.04.2026
Gbnr. 158/54 - Søknad om tiltak - sesongbasert hagesenter