NewConstruction Rammetillatelse Other

Oppføring av svømmebasseng og pergola på Fagerbakken 15

📍 Fagerbakken 15 , 1813 ASKIM

Nøkkelinfo

Sakstype
Nybygg
Bygningstype
Other
Bruksareal
24 m²
Kommune
Indre Østfold
Fylke
Østfold
Gnr / Bnr
53 / 98
Saksnummer
2025/9024
Fase
Rammetillatelse

Om byggesaken

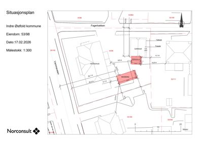
Nedgravd svømmebasseng på 8,5 x 3,6 meter med ca. 1,5 meters dybde og ca. 30 cm over terreng oppføres sørøst på tomten. Bassenget har lukket vannsystem med saltbehandling og planlagt oppvarming for helårsbruk. Mellom garasjen og bassenget bygges en pergola i tre med fast tak, ca. 15,5-16 m² og ca. 2,5 meters høyde. Pergolaen er åpen mellom taksperrene og har lav visuell profil. Begge tiltakene plasseres minimum 4 meter fra nabogrense, uten å inngå i bebygd areal. Området rundt bassenget og pergolaen opparbeides med vegetasjon som skjermer mot innsyn. Tiltaket krever dispensasjon fra regulert byggegrense, som er innvilget. Prosjektet inkluderer landskapsutforming, grunnarbeider, tømrerarbeid og montering av basseng og utstyr.

Produkter og materialer

Grunnarbeid Graving og grunnarbeider for basseng og pergola

Antall: 1

Grunnarbeid iht. geoteknisk vurdering, stabilitet og sikkerhet mot kvikkleireskred

Grunnarbeider for nedgravd basseng og pergola, inkludert sikring av byggegrunn

Betong Bassengkonstruksjon

🧱 Betong og bassengmaterialer

Antall: 1

Svømmebasseng 8,5 x 3,6 m, dybde ca. 1,5 m, med lukket vannsystem og saltbehandling

Nedgravd svømmebasseng med tilhørende bassengutstyr og vannbehandling

Sikring Sikring mot drukningsfare

Antall: 1

Sikring i henhold til pbl § 28-6

Sikringstiltak for svømmebasseng for å forhindre drukningsfare

Landskapsutforming Vegetasjon og utearealer

🧱 Stauder, busker, trær, kantstein, belegningsstein, skiferdekke, gressplen

Vegetasjonsskjerming mot naboer og biloppstillingsplass, opparbeidelse av utearealer

Landskapsplan med vegetasjon og uteplasser rundt basseng og pergola

Fasade Pergola i tre med fast tak

🧱 Trekonstruksjon, malmfuru

Antall: 1

Pergola ca. 15,5-16 m², høyde ca. 2,5 m, åpent mellom taksperrer, lav visuell profil

Pergola mellom garasje og basseng som loungeområde med fast tak i treverk

VVS Bassengteknisk utstyr

Antall: 1

Filter, desinfiseringsenhet, pH- og vannverdikontroll, varmeinstallasjon

Teknisk utstyr for vannbehandling og oppvarming av svømmebasseng

Tømrer Montering av trekonstruksjoner

🧱 Trekonstruksjoner for pergola

Antall: 1

Oppføring av pergola i malmfuru med fast tak, montering av trekonstruksjoner

Tømrerarbeid for pergolaens konstruksjon og montering

Dører Dør i pergola

🧱 Tre

Antall: 1

Dør i pergolaens trekonstruksjon

Dør for adkomst til pergola

Garasjeport Garasjeport i eksisterende garasje

🧱 Tre

Antall: 1

Eksisterende garasje med saltak og garasjeport

Eksisterende garasje på eiendommen

Fasader

Garasje

Ukjent
Materiale
Tre
Taktype
Saltak
Høyde
2.6 m
Vinduer
0
Dører
1
Synlige etasjer
1

Pergola

Ukjent
Materiale
Tre
Taktype
Saltak
Høyde
2.6 m
Vinduer
0
Dører
1
Synlige etasjer
1

Hendelser

17.04.2026 Gbnr 53/98 - Fagerbakken 15 - Svømmebasseng og pergola - Klage på byggesaksgebyr
08.04.2026 Gbnr 53/98 - Fagerbakken 15 - Gjennomføringsplan
25.03.2026 Gbnr 53/98 - Fagerbakken 15 - Svømmebasseng og pergola - Tillatelse til tiltak og dispensasjon
03.03.2026 Gbnr 53/98 - Fagerbakken 15 - Svømmebasseng og pergola - Uttalelse
18.02.2026 Gbnr 53/98 - Fagerbakken 15 - Svømmebasseng og pergola - Supplering av søknad
03.02.2026 Gbnr 53/98 - Fagerbakken 15 - Svømmebasseng og pergola - Ber om uttalelse - Bevaring kulturmiljø
03.02.2026 Gbnr 53/98 - Fagerbakken 15 - Svømmebasseng og pergola - Tilbakemelding om mangler
17.11.2025 Gbnr 53/98 - Søknad om oppføring av svømmebasseng og pergola