NewConstruction Igangsettingstillatelse Other

Etablering av dykdalber og nytt kaianlegg i Føresvikvegen 40, Bokn

📍 Føresvikvegen 40 , 5561 BOKN

Nøkkelinfo

Sakstype
Nybygg
Bygningstype
Other
Bruksareal
84,000 m²
Kommune
Bokn
Fylke
Rogaland
Gnr / Bnr
9 / 158
Saksnummer
2026/167
Fase
Igangsettingstillatelse

Om byggesaken

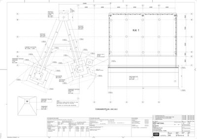
Prosjektet omfatter etablering av dykdalber i forbindelse med nytt kaianlegg ved Føresvikvegen 40 i Bokn kommune. Tiltaket inkluderer utfylling i sjø ved områdene Holmen og HighComp, med bruk av sprengstein fra Rogfast-prosjektet. Utfyllingen ved Holmen dekker ca. 73 000 m² sjøbunnareal med inntil 740 000 m³ stein, planert til kote +2,0 til +2,5, og inkluderer plastring og mur mot småbåthavn samt badeplass. Utfyllingen ved HighComp dekker ca. 11 000 m² med inntil 65 000 m³ stein, planert til kote +2,0, og skal benyttes til lagring uten større bygg. Det er etablert fundamenter for dykdalber med høyde ca. kote +2,25. Prosjektet er underlagt miljømessige vurderinger, inkludert sedimentprøver som viser lav forurensning, og tiltak for å begrense spredning av finstoff under utfylling. Arbeidene skal ikke utføres i torskens gyteperiode (februar-mai). Det foreligger godkjente ansvarsrettserklæringer for prosjektering, utførelse og kontroll, og igangsettingstillatelse er gitt.

Produkter og materialer

Stål Dykdalb konstruksjon

🧱 Stål S355J0

Bærende metallkonstruksjoner for dykdalber, sveise- og kontrollklasse II

Stålkonstruksjoner for dykdalber montert på fundamenter

Betong Fundamenter for dykdalber

🧱 Betong B45, armering B500NC

Fundamenter 6000x6000 mm, tykkelse 500 mm, utført etter NS-EN standarder

Betongfundamenter for dykdalber med armering og korrosjonsbeskyttelse

Miljøtiltak Siltgardin og turbiditetsmålinger

Tiltak for å begrense spredning av finstoff under utfylling, turbiditetsmålinger med grenseverdi 10 FTU/NTU

Miljøovervåking og tiltak for å beskytte gyteområder og marint liv

Geoteknikk Geoteknisk prosjektering og kontroll

Geotekniske rapporter og kontroll av stabilitet og utførelse

Geoteknisk prosjektering og uavhengig kontroll av utfylling og fundamenter

Grunnarbeid Sjøfylling

🧱 Sprengstein fra Rogfast-prosjektet

Antall: 805000

Ca. 740 000 m3 til Holmen og 65 000 m3 til HighComp, utfylling til kote +2,0 til +2,5

Utfylling i sjø for kaianlegg og industriområde, inkludert plastring og mur

Oppmåling Innmåling og utstikking

Nøyaktig innmåling og utstikking av fundamenter og dykdalber

Oppmålingstjenester for plassering av konstruksjoner

Teknisk Peling

🧱 43 peler i sjø

Antall: 43

Hydraulisk pelelodd fra lekter, utført utenom gyteperiode for torsk

Peling for nytt kaianlegg

Hendelser

20.04.2026 Igangsettingstillatelse - Dykdalb - gnr. 9, bnr. 158 - Føresvikvegen 40
15.04.2026 Søknad om igangsettingstillatelse - Bokn kun dykdalb
13.04.2026 Tilbakemelding - Søknad om flytting av dykdalb - Gnr 9 bnr 158 - Føresvik - Bokn kommune - Rogaland fylke
30.03.2026 Bokn kommune - gnr 9 bnr 158 - etablering av dykdalber - kulturminner i sjø - søknad til uttalelse
23.03.2026 Uttale - Søknad om etablering av dykdalber gnr. 9 bnr. 158 - Bokn kommune
20.03.2026 Uttalelse - Tiltak i sjø - Bokn 9/158 - Føresvikvegen 40 - etablering av dykdalber for nytt kaianlegg
20.03.2026 Rammetillatelse - dykdalber - Gnr. 9, bnr.158 - Føresvikvegen 40, Bokn
19.03.2026 Uttalelse - søknad om etablering av dykdalber i forbindelse med nytt kaianlegg gnr9 bnr158 -Fiskeridirektoratet - Bokn kommune
11.03.2026 Uttalelse - Søknad om etablering av dykdalber gnr. 9 bnr. 158 - Føresvikvegen 40 - Bokn kommune - Rogaland fylke
03.03.2026 Oversender søknad til uttalelse - dykdalber – Gnr. 9, bnr.158 - Føresvikvegen 40
25.02.2026 Føresvikvegen 40 Søknad om rammetillatelse 9/158